
坚持行动,让想法变成现实!质疑很难消失,唯有努力!
每日一族 I 导读
详图搭建建筑设计和实际建筑之间的桥梁,并将有关如何实现设计的信息传递给承包人及施工人员。
Revit 是一款建筑信息建模程序。 可以将项目构造为现实世界中物理对象的数字表示形式。但是,不是每一个构件都需要进行三维建模。建筑师和工程师可创建标准详图,以说明如何构造较大项目中的材质。 详图是对项目的重要补充,因为它们显示了材质应该如何相互连接。

通常,详图项目被应用于楼层平面、立面、剖面、详图视图或者绘图视图等视图环境下;不可以在图纸界面中插入;和详图项目有关的族样板主要有两类:普通详图项目和基于线的详图项目。
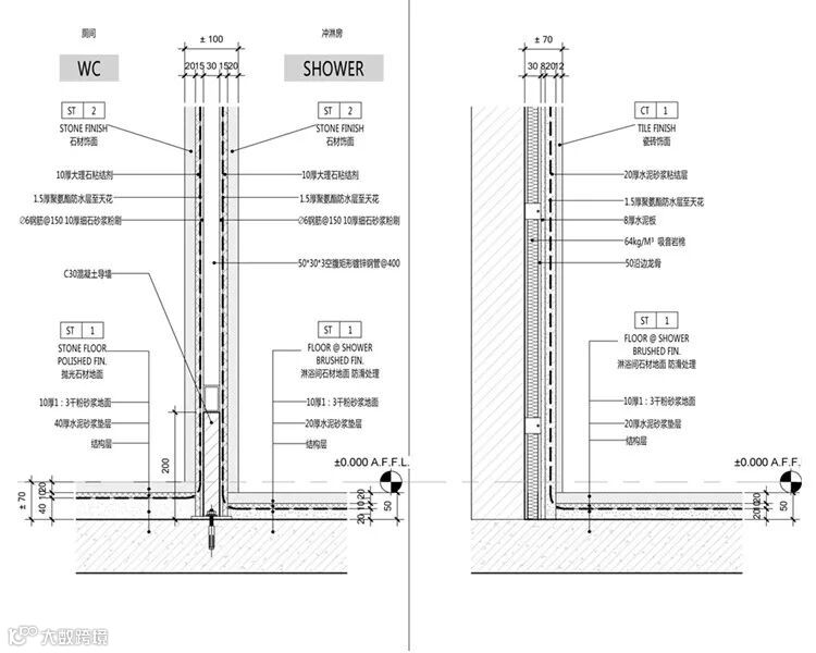
在“翻模”阶段谈及Revit出图大多都是直接链接套用现有CAD图纸,使得BIM三维模型辅助二维图纸表达。

但若直接采用三维设计,也就是所谓的BIM正向设计时,必要用到大量的详图,用以后期二维出图。
小编非设计专业,尝试着制作了一个详图族,也从中领悟到BIM在设计阶段逐步被设计院所抛弃的缘由。原来《设计装BIM消亡录》就是这么产生的。
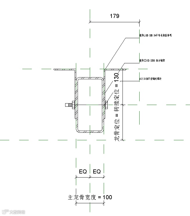
每日一族 I 一种幕墙龙骨通用节点详图
族样板:公制详图项目
族类别:建筑—详图项目

族:楼层平面视图
本族为二维族,因此无其他立面及三维视图。该族也是由其他详图族嵌套组装而成,包括:
1、不等边角钢(转接角码,采用槽钢类型另行选择匹配详图项目)

2、矩形方钢管(主龙骨,采用其他型钢类型另行选择匹配详图项目)

3、自建不锈钢螺栓组,对螺栓的直径和螺杆长度进行了参数设定,以适应未来项目实际需求。

Revit中提供的项目项目确实不够丰富,且表达方式未必符合国内出图标准与规范,需要使用者自行创建。
4、注释标签,为充分将构造表达清楚,必须进行必要的注释表达。

每日一族 I 族参数

族:参数列表
对图纸中所要表达的设计信息均进行了参数设置,并将嵌套详图项目参数与之关联。
每日一族 I 族测试

不同的龙骨安装节点配置, 不同的详图表达,可参数化。该族又可嵌套到实际常规模型中使用,需要注意的是注释标签均需要在本族设置。
如果您喜欢,请关注本公众号并转发。
识别二维码,关注我们


