
点击上方“BIM酷族”支持我们,坚持行动,让想法变成现实!质疑很难消失,唯有努力!
每日一族 I 导读
幕墙工程工业化程度相对较高,实际工程中对构造节点的表达要求越来越精细。CAD需要更多版面表达的复杂安装节点,在BIM模型中用一个三维节点即可非常直观的进行表达。更重要的是,若三维实体构件族中带有二维表达的信息,则该节点在各平面视图中也可以完成平面表达。
BIM非常重要的特性就是关联性。当局部发生变更时,例如更换下图中的自攻自钻螺钉的规格,则其在平面、立面、三维、剖面、明细表中的信息同步变更。CAD却不具备这样的特性。

因此,这也是制作幕墙构件族的实际意义。
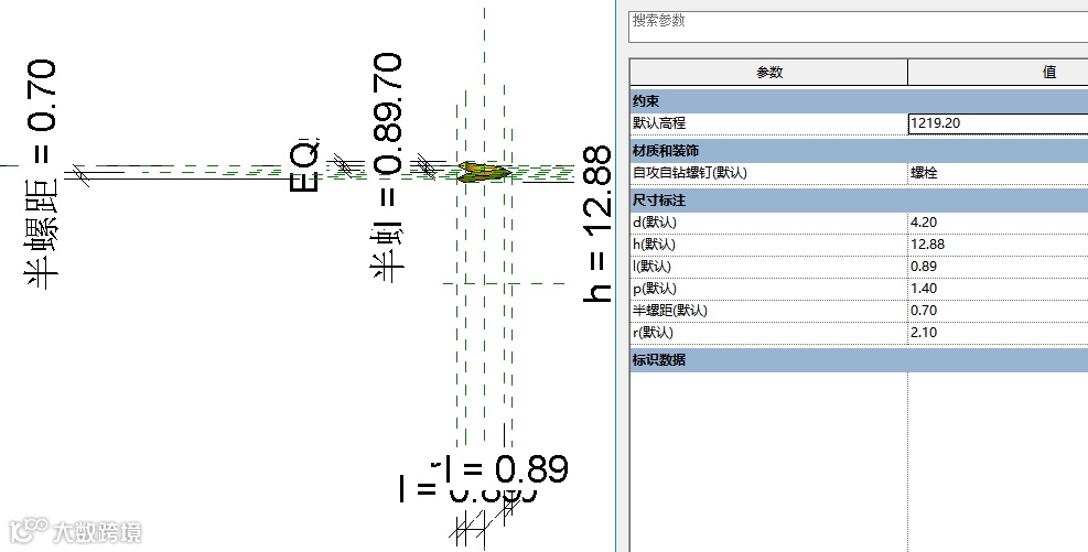
昨天分享了《一种六角头自攻自钻螺钉的俯视详图》(点击链接,查看相关内容),是今天分享的该族的一个嵌套的俯视详图。是该族在正视图二维表达的详图项目。
让我们想看看这个族,到底是什么样子?
通过以上视频可以看出,我们除了创建了该族外,还根据国标产品的相关参数对族的类型进行了设置。为实现幕墙正向设计创造了基础构件族条件。
每日一族 I 一种六角头自攻自钻螺钉
step1 首先对该族的制作进行了策划。通过查找GB/T 15856.4-2002 六角法兰面自钻自攻螺钉的规格型号,研究参数设置。最终确定采用螺钉直径和长度二个主要参数对族参数进行控制。

step2 研究族的形体创建方法。考虑到需要加载详图项目及该零件的应用特性。该族采用多级嵌套参数关联的方法进行创建。分别创建六角法兰(含)丝杆、螺纹、详图等,然后在基于面的公制常规模型族样板中进行创建。

可以看出一个族包含有模型形体、详图等内容。本族并未设置遮罩区域,采用模型形体除在三维视图中外其他视图均不可见的方式。
step3 创建模型形体。形体创建的方法无非就是拉伸、旋转、放样融合、空心等。而参数关联则是通过读取表格的方式进行赋值。

每日一族 I 总结
看似简单的一个零件族,但其中有如下难点:
1、螺丝的创建及如何实现参数控制。先通过放样融合创建一个螺旋。然后嵌套到基于面的母族中进行阵列。

2、详图也是通过分节点详图项目进行绘制,并在公制详图项目中进行总装,嵌套到母族中。

3、考虑了各视图在粗略、中等及精细程度下的显示。以满足在墙身大样、剖面、装配大样中的出图显示。正如导读中视频所示的那样。
关注我们,更多精彩分享。如您有实际需求,或许我们能协助您!
识别二维码,关注我们


