大数跨境
0
0

公共租赁住房适老化设计实践——北京众美光合原筑项目

公共租赁住房适老化设计实践——北京众美光合原筑项目 中国建筑标准设计研究院
2015-07-24
1
导读:开发单位:北京众美房地产开发有限公司设计单位:中国建筑标准设计研究院有限公司、(日) 市浦设计 主体结构
开发单位:北京众美房地产开发有限公司
设计单位:中国建筑标准设计研究院有限公司、(日) 市浦设计
主体结构:剪力墙
设计/竣工时间: 2010-2014年/ 2015年
建设地点: 北京大兴区
用地面积 :1.58 hm2
总建筑面积: 1.69 万m2
其中地上建筑面积: 1.21万m2
地下建筑面积: 4810m2
容积率: 1.2
总户数: 149户
建筑密度: 30%
绿化率: 30%
停车数: 81 辆


图1 住区入口

图2 住宅外观

图3 内庭院、楼栋入口无垂直型高差


图4 总平面

图5-1 4号楼首层平面图
图5-2 4号楼标准层平面图

  随着社会老龄化进程的加快,我国把发展老龄事业和产业提到前所未有的关乎国家民生和经济社会发展的新高度,老龄事业成为伴随人口老龄化而兴起的一个朝阳产业。发展养老产业,不仅是解决我国“未富先老”现状下社会养老负担沉重的必由之路,还将是推动未来经济增长的重要引擎。在这一宏观发展方向指引下,住宅适老化设计成为了近些年建筑领域的焦点。从最早仅将适老化设计定位在老年住宅项目中,到现在很多普通住宅、公共建筑中都在逐步提高适老化设计程度,由此可以预见,适老化设计必将逐步发展成通用设计作为普通住宅建设的基本标准——这与发达国家对于适老化设计的界定高度是一致的。

  光合原筑(又名众美光合雅苑)住宅项目位于北京市大兴区黄村镇,其中1、2号楼为经济适用房,3号楼为外廊式公共租赁住房,4号楼为单元式公共租赁住房(图1~5)。项目被列为我国“十二五”国家科技支撑计划对保障性住房开展课题研究的示范工程。  

  基于SI住宅体系(S:Skeleton支撑体;I:Infill填充体),项目在方案设计之初就将适老化设计作为基本的设计思想,实现空间一体化和集约化,并创造灵活性与适应性。项目的建筑与套型设计在充分体现保障性住房特有的租赁性、耐久性、经济性的基础上,以实施功能空间适老化设计集成解决方案,较好地解决了保障性住房固有的小面积与高品质、单一性供给与多样化需求之间的矛盾,集中反映了适老化设计核心价值,即为现在的长者和每一个逐步变老的人们创造了一个真正适老的居住环境。项目于2015年竣工,这也标志着将适老化设计的科研攻关在工程实践中成功落地转换。


1
适老化通用设计

1.1空间一体化与集约化

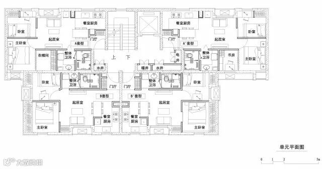
  为了更好地实现适老化设计,项目突破传统套型功能空间划分和布局形式,创新性地提出了空间一体化与集约化的适老化设计原则。基于SI住宅体系,通过大空间结构体系+管线集成+轻质隔墙,使得居住空间更完整、集中地呈现。之后再将集中的使用空间作为可变居住空间的被分隔主体提供给居住者,供其依据自身的居住需求、生活方式和行为习惯进行人性化设计和使用(图6)。

图6  单元平面


1.2空间灵活性与适应性
  项目提出的另一适老化设计原则是空间的灵活性与适应性,即在住宅结构主体不变的前提下,充分考虑到家庭结构发生变化时对居住产生的新需求,并结合未来可能的居住需求与建筑功能变化实现可持续性设计。通常情况下,一套住宅会陪伴居住者从年轻到年老,同时人体功能会随着时间的推移逐步衰退,需要对居住空间进行调整以适应这种衰退,才能尽可能降低发生危险的可能性(图7)。


图7 系列化套型分析


功能空间适老化设计

2.1交流性LDK空间

  交流性LDK指将起居室(L:Living room)、餐厅(D:Dining room)与厨房(K:Kitchen)构成一体化空间(图8)。老年人在实际生活中对起居室的利用率是最高的,而在中小套型设计中往往因为面积有限,造成起居室空间设计局促、面积狭小。LDK以“交流”作为出发点,从老年人的行为习惯出发,力求提供一个全家共享视线、语言与情感的交流与生活空间。在项目中,没有明确空间界限的起居室与开放的餐厨相结合,延长了老年人间的交流视线,也扩宽了交流视域范围,有限的空间变得更加舒展、完整。即便是老年人发生意外危险时,其他家庭成员也可以及时发现并提供帮助。


图8 交流性LDK适老化设计解决方案

2.2家务性厨房空间
  厨房空间是所有居住者最容易发生危险的地方,而老年人更是因为不同程度的身体状况需要依靠拐杖、轮椅等辅助工具,更增大了进出厨房时的不便。项目在设计厨房空间时,首先采用开敞的布局形式减少了墙体的阻隔,并根据老年人的行为习惯和人体操作动线合理布置了冰箱、洗涤池、操作台和灶台的位置,使洗-切-烧的烹饪操作变得简便,即便两个人同时配合做饭,也不会产生过多的流线交叉(图9)。同时,项目通过对人体行为学的分析,划定有效的人体烹饪活动空间,适当降低吊柜高度,扩展了操作台面宽度,并配置了大容量的一体化集成橱柜。

图9 家务性厨房适老化设计解决方案

2.3分离性卫浴空间
  传统中小套型卫生间空间较小、布局局促,有的甚至采光通风条件均不佳。项目出于对空间适老化设计的考虑,采用干湿分离方式,分别独立盥洗、如厕、洗浴空间,大大降低了水带入居室造成地面湿滑产生的安全隐患,并提高了同时使用空间的效率(图10)。项目卫生间布置在主卧室旁边,缩短了可达距离,便于高龄卧床老人或轮椅老人使用。


图10 分离性卫浴适老化设计解决方案

2.4综合性玄关空间
  随着居住生活条件的提高、居住观念的转变,玄关空间的功能复合度越来越高。玄关最为基本的属性就是划分套内外空间,需要一定的私密性,这一点对于有老年人居住生活的家庭来说更为重视。项目设计时考虑到避免开阔的视线使住宅内一览无遗,合理组织了入户流线形式和通过设置玄关柜,既达到实用美观效果,又增强了安全性能。考虑到老年人进出门时一系列更衣换鞋的动作,组织把手、柜体、置物板、坐凳等设置了连续的界面,便于老年人依靠、抓扶、支撑。玄关还应设置重组充足的收纳空间,满足衣物、鞋帽存放和临时置物等需要(图11)。

图11 综合性玄关适老化设计解决方案

2.5多用性居室空间
  项目在居室空间设计上提出了“一间半”概念,即不限定空间使用属性,可根据居住者的不同居住需求设置为客卧、书房、儿童房、衣帽间等(图12)。而对于老年人使用来说,这些非必要的功能空间可以被弱化处理,集约性的扩大老年人专用卧室使用空间。略微放大空间尺度,即可满足轮椅老人的正常通行和停靠。此外,日后也可通过加设隔断进行灵活的空间改造。

图12 多用性居室适老化设计解决方案

2.6系统性收纳空间
  住宅功能空间适老化设计中应重视对收纳空间的设置,特别考虑到老年人本身就容易有的储藏各种物品的习惯,应实现系统化分类收纳,满足就近储藏。项目在玄关、起居室、卧室、卫生间、厨房、阳台等地方通过嵌入式衣橱和开敞式置物架相结合、不同高中低柜相组合,呈现多样化的收纳形式,丰富了居住选择(图13)。收纳空间的合理配置,具有明显的实用性,同时还可提升居住的整洁度和美观性。

图13 系统性收纳适老化设计解决方案

适老化集成部品与技术

  项目因作为公共租赁住房建设,需进行精装修,因此在适老化集成部品与技术应用方面也进行了实践,打造出整体水平较好的成品住宅。例如,在浴室、马桶旁均安装安全扶手;在玄关入户和浴室入口处地面处理时选择了可避免产生垂直型高低差的构件;在玄关、浴室、厨房处地面采用防滑材料;适当调整了插座、开关高度,避免给老年人及儿童操作带来不便;并采用大面板的开关和操作按键,以及杆式手柄的门把手和水龙头等。适老化技术方面设置了智能化家居系统、自动监控人体不活动感应系统、油烟直排系统等,突出以技术创新提升成品住宅质量和居住品质(图14)。


图14  项目适老化集成部品与技术



来源:《建筑学报》




【声明】内容源于网络
0
0
中国建筑标准设计研究院
标准院现隶属于中国建设科技集团,是高新技术企业,以标准、设计、研究三大基础业务为核心,以“推动技术进步,引领产业升级”为使命,秉持“一切高标准”的企业精神,致力于以城乡建设领域创新技术集成服务商助力地方政府及企业的绿色协同发展。
内容 1972
粉丝 0
中国建筑标准设计研究院 标准院现隶属于中国建设科技集团,是高新技术企业,以标准、设计、研究三大基础业务为核心,以“推动技术进步,引领产业升级”为使命,秉持“一切高标准”的企业精神,致力于以城乡建设领域创新技术集成服务商助力地方政府及企业的绿色协同发展。
总阅读176
粉丝0
内容2.0k