一切高标准

雄安新区规划建设以特定区域为起步区先行开发,起步区面积约100平方公里,中期发展区面积约200平方公里,远期控制区面积约2000平方公里。雄安新区定位二类大城市 。设立雄安新区,对于集中疏解北京非首都功能,探索人口经济密集地区优化开发新模式,调整优化京津冀城市布局和空间结构,培育创新驱动发展新引擎,具有重大现实意义和深远历史意义。


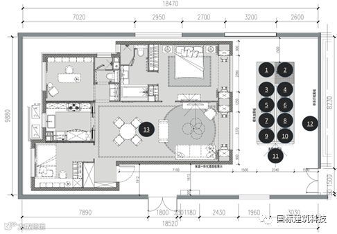
雄安第一个装配式内装修样板间——雄安万科绿色研究发展中心装配式内装修样板间,项目位于万科雄安新区二期实验室内,占地183平方米。

国标建筑科技负责了此样板间与展示区域的设计与施工。此样板间主要特点为对应北京装配式建筑装配率评分要求、VANKE优良技术与部品、全屋无醛体系、BIM应用等,集中展示以装配式内装技术特点搭建的样板间及部品展示区域。

样板户型以万科“无限系”系列户型根据现场空间调整而成,是为满足北京市装配率计算表所研究设计的样板间。

用地面积:183㎡
面 宽:约18.5m
进 深:约10m
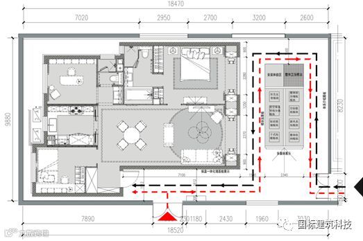
流线1
流线2



玄 关



客 厅



卧 室



卫 生 间



厨 房


其 它





· 欢迎您加入到我们装配式内装产业化的实践队伍中,与我们携手共进!
· 欢迎您莅临参观雄安第一个装配式内装样板间!
END


