资料来源:
www.city.kakamigahara.lg.jp
本期公众号介绍的是日本岐阜县各务原市新政府大楼项目,该项目目前还正在施工建造过程中,主要包括了两个建筑单体,分别为一栋高层办公建筑和一栋低层办公建筑,详细情况介绍如下:
设计理念
可作为灾害应对指挥中心
高层单体部分采用隔震结构,配备自主发电装置等设备,在城市其他基础设施功能损坏时政府大楼的建筑功能也能基本持续运行,能够作为应对灾害的指挥中心进行使用。
使用便利
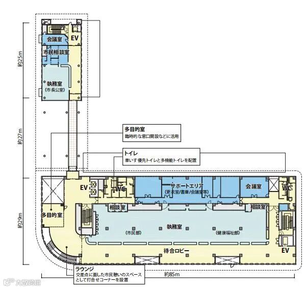
将市民使用频率高的办公窗口集中在1、2层,配备公用的设施设备、清晰明了的指示标志、宽敞的通道等。
对市民更具亲和力
面对主干道的部分,在低层单体部分设置开敞大厅——“(暂称)神庭”,市民站在外面能够清楚地看到大楼内部情况,更容易近距离接触政府大楼。在面向榉树大街的部分设置了市民画廊以及咖啡馆空间,创造热闹的环境。
更经济和环保
通过引进节能技术和采用各种降低环境负荷的方法,与一般办公大楼相比能源消费量约减少51%。
灵活高效的空间布局
办公区的规划是通过改造形成一个开放的楼层,可以灵活应对将来的布局变动。
用地及建筑概况
图:规划用地
项目所在地:岐阜县各务原市那加樱町1丁目69号
规划用地面积:12,737m²
地块属性:商业区,准防火区
容积率≤4
占地面积/用地面积≤0.8
图:总平面图
建筑总面积:16,680m²
计容面积:13,760m²(地下停车场/屋顶停车场和自行车停车场/井道/私人发电机房除外)
容积率:1.31
建筑面积:4,060m²
占地面积/用地面积:32%
层数:地下一层/地上七层 (7楼为机房等)
结构体系:高层单体部分:钢筋混凝土框架结构(基础隔震结构)
低层单体部分:钢框架结构(抗震结构)
建筑物高度:高层单体部分:26.1米
低层单体部分:9.5米
停车位数量:供来访者使用:162个;公用车辆用:60个
图:1-6层平面图
左右滑动查看更多
防灾措施
①大楼内部的各个房间及外部空间均考虑了灾后改作指挥中心功能的设计
②高层单体采用基础隔震结构,维持建筑功能灾后持续
③在4层集中设置会议室,灾后可迅速转变为灾害指挥中心的功能
④自发电设备的设置(可持续使用7天)
⑤附加太阳能发电设备
⑥为保证受灾时用水,设置了足够容量的饮用水储水槽
⑦为保证厕所等用水,设置了地下水(井水)利用系统
⑧设置了紧急排水槽
⑨储备罐装天然气
⑩场地布局上考虑了移动通信车的位置
结构布置概述
01
根据现场重建顺序和经济性等条件,新的政府大楼由两栋建筑组成:一幢高层建筑和一幢低层建筑。高层建筑为“基础隔震结构”(抗震安全性的目标:相当于Ⅰ类),在发生灾害时发挥作为灾害应对指挥中心的功能,使政府大楼的功能能够持续。低层建筑为“抗震结构”(抗震安全性的目标:II类)。
高层单体
02
高层单体部分:
结构形式:钢筋混凝土框架结构(部分预应力混凝土结构)
基础隔震结构(地下一层柱头中间层基础隔震)
基础形式:筏板基础(进行了地基处理)
低层单体
03
低层单体部分:
结构形式:钢框架结构
基础形式:筏板基础(进行了地基处理)
图:三维结构布置图图
图:隔震支座
除了建筑基准法规定的“罕见发生的地震”(震度5弱)、“极其罕见发生的地震”(震度6强左右)之外,还进行有可能对新政府大楼产生较大影响的“南海海沟地震”、“养老-桑名-四日市断层带地震”(震度6弱)进行了验算,确保在相应地震水准下,建筑主体结构不仅不会发生损伤,还可以防止设备配管的破损、天花板的掉落、家具和物品的跌落等。
施工计划
HOME
重建计划
01
先拆除现政府大楼的南侧低层部分,建设新政府大楼的高层单体。高层单体完成后,拆除现政府大楼,再建设低层单体。
左右滑动查看更多
工序安排
02
现政府大楼低层部分的先行拆除于2018年末完成,高层建筑的建设于2019年8月开始,预定于2021年7月中旬完成。高层建筑完成后从现政府大楼迁移,之后现政府大楼拆除约5个月,低层建筑的建设约7个月左右的工期。所有工程的完成时间计划在2022年7月中旬左右。
工程概预算费用
03
约79.2亿日元(合计约4.94亿人民币)
包括基本设计的建筑成本,停车场/拆卸/外部建筑成本的累计成本,以及消费税(8%)。另外,迁移费、设计监理费、备品购买费等不包括在内。
END

![]()
中国建筑标准设计研究院有限公司




