
当前,中国新建住宅建筑的建设量增速放缓,既有住宅改造逐渐成为国家亟待解决的新兴课题。日本也曾经历了从大量住宅建设到对既有住宅进行改造的转换阶段,这个变化与目前中国的现状相似。在中日两国政府的指导和支持下,中国建设科技集团股份有限公司与日本独立行政法人都市再生机构,在2017年底签订了战略合作协议,希望通过改造项目实施、标准制定等,将日本的先进改造技术、产品、理念等引入中国,共筑中日两国一体的技术合作平台。中国建筑标准设计研究院(以下简称“标准院”)和日本JS公司作为双方项目具体合作的实施单位。
在既有住宅装修改造方面,标准院和日本JS公司共同完成了两户不同类型住宅的改造,并针对改造过程中遇到的一些问题,进行了专项研究和专利申请。目前,我国有改造需求的既有住宅,基本建造于20世纪70~90年代。由于当时经济技术条件的限制,这些住宅套内空间布局简单,结构形式相对单一。随着社会的进步和人民对生活质量要求的提高,这些布局上的缺陷带来了更加明显的问题。通过科学全面的检测与评价,了解住宅本体的本质特征,基本明确住宅改造的难点与痛点问题,能有效指导改造设计目标的建立和改造重点的梳理。
2LDK文兴东街项目
建成年代:1978年
结构形式:框架结构
建筑面积:60.18㎡
房屋净高:2.58 m
所在楼层:3/4
常住人口:退休夫妇2人
住宅业主为一对中老年夫妇,改造设计力求引入日本既有住宅改造环保节能、格局易于改造、管线分离易于检修的设计理念,采用JS公司提供的部品集成、干法建造、静音施工、建筑材料等技术措施,实现对小户型居室环境和设施设备的升级改造,在满足业主使用需求的基础上,为业主构建享受退休生活的家居空间,完成一个日本技术本土化的典型案例,探索一条中国既有住宅建筑改造之路。
居住现状分析
(1)平面布局&空间利用
缺乏收纳空间
卫生间面积小,干湿不分离
(2)管线&设备设施使用
电气管线老化
厨卫空间管线&设备设施老化
外窗保温性能差
(3)使用中问题
卫生间地面高于居室地面0.19米
卫生间漏水时有发生
改造定位
通过梳理总结,形成了改造的具体内容和支撑技术体系及支撑部品。改造的总体定位为:小空间综合功能提升改造。
因为是框架结构,室内格局灵活可变,将原先局促的卫生间,扩展出盥洗区域,增设了整体卫浴淋浴间,增加了储物空间等。
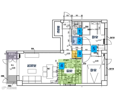
技术改造要点
(1)卫生间同层排水与立管改造
(2)增设整体卫浴
(3)增设干湿分离洗脸盆
(4)开放性厨房改造
(5)可移动家具:柜体代替墙体分割卧室空间
(6)全屋架空地板
(7)架空地板管线综合
(8)增设新风系统
(9)软膜天花的应用
(10)多种吊顶及木作柜体整合
改造前
改造后
总结来说,中国目前既有住宅装修改造面临的突出问题或难点主要包括:1)普遍存在的穿户管线造成改造的困难;2)管线老化和位置诊断手段缺失;3)传统改造方式每一次的改造都是对主体结构的严重破坏;4)施工噪音扰民严重;5)室内有害物质超标问题时候发生,缺少预判;6)改造专有的部品部件,产业薄弱。中国的老旧住宅存在着的房屋本身条件的多样性和不同住户需求的多样性,需要有针对改造的专有部品和多样化部品的产业支撑,而国内缺乏应对老旧住宅改造市场的专有、多样化部品的产业支撑。
对既有建筑进行改造,有利于改善居住条件,提高居民居住水平,实现住宅的全龄化需求,同时也符合可持续发展和资源有效利用的要求,是当下国内亟待解决的重大问题。针对既有住宅改造的特点,标准院也总结了既有住宅装修改造的总体理念,即原生、提升、再生,适用、实用、适宜。以高品质、高效率、低污染、可持续为核心目标,以数字化技术赋能装配化装修,实现用户安心入住的目标。
END
往期推荐
▼点击下方阅读
2023-03-01
2023-02-28
2013-02-28
2023-02-27
2023-02-24
2023-02-23

