冠军一号运动中心F-SPACE
合肥园博园项目
▲冠军一号运动中心F-SPACE航拍图 ©张锦影像工作室
▲冠军一号运动中心F-SPACE航拍图 ©张锦影像工作室
▲冠军一号运动中心F-SPACE航拍图 ©张锦影像工作室
Chapter.01
项目概况
项目是由中国建筑设计研究院有限公司李兴钢院士团队规划的合肥园博小镇二、三期项目,其中高端体育商业品牌:冠军一号运动中心·F-SPACE三号楼由中国建筑标准设计研究院有限公司进行全过程设计。
项目为位于合肥园博小镇S11片区,是涵盖运动、娱乐、社交、生活的创新型城市公园体育服务综合体。作为冠军一号运动中心华东旗舰店,这里有配套设施齐全的篮球馆、羽毛球馆、游泳馆、网球场、足球场等运动场馆,运动康复、美式Live餐酒吧、体育用品零售等配套服务一应俱全,其中的漫威主题咖啡店,更是年轻人周末打卡的热门场所。
▲冠军一号运动中心F-SPACE三号楼 ©张锦影像工作室
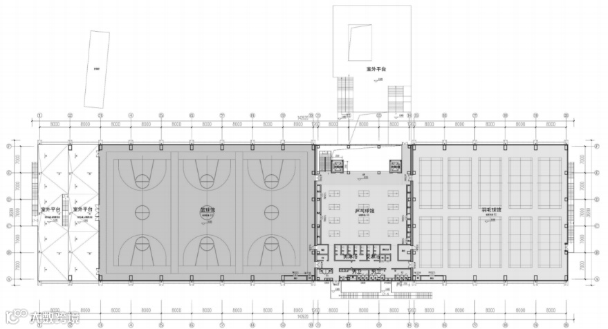
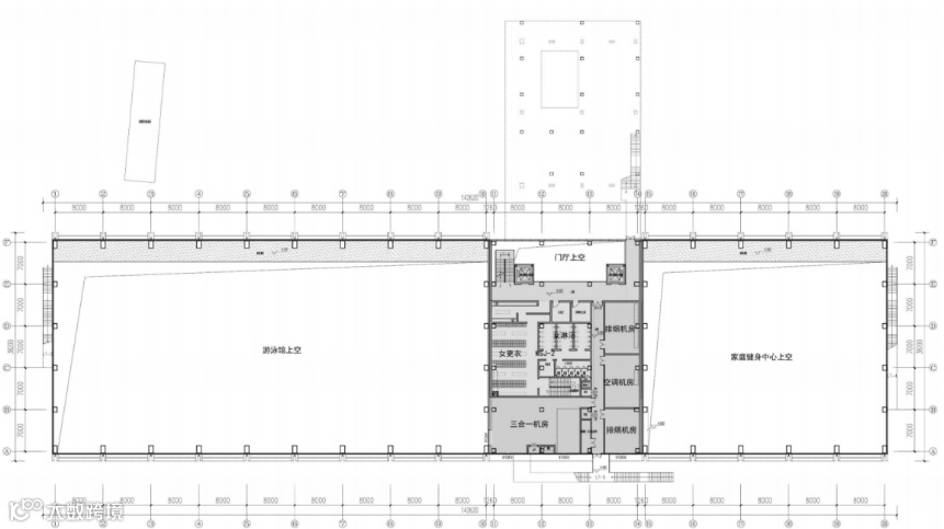
其中,3号楼项目策划伊始,运营、策划、建设及设计团队便形成多维一体的综合推进小组。策划之初即形成了以下各大功能板块,1.2万平米的建筑面积功能包括:1500平米运动梦工场、4000平米泳池(1个标准泳池、一个25米训练池)、2000平米篮球馆(3片CBA全场)、1500平米羽毛球馆(10片场地)以及运动康复馆;同时,室外区域规划7人制足球/飞盘场一个,标准网球场2个,以及儿童公园等内容。
“冠军一号”3号楼满足运营并最大化节地,利用既有建筑作为室外平台,与北侧公园有机联系,打造小镇健康生活综合体;以星空体育公园为核心的景观空间系统,营造具有活力的公共体验。
▲冠军一号运动中心F-SPACE三号楼 ©张锦影像工作室
Chapter.02
城市更新
体育业态作为城市更新中的强力引擎,不仅丰富了城市空间的功能性内涵,通过建设多元化的体育设施和举办各类赛事活动,有效激活了城市公共空间,提升了居民的生活品质。此外,体育文化的传播和普及亦有助于凝聚社区精神,提升城市文化软实力,成为推动城市社会进步、人文和谐的重要力量。
合肥园博园内的冠军1号运动中心,在城市更新中持续推动着城市的活力再生和功能升级。该运动中心依托于合肥园博园丰富的自然景观资源,不仅打造了高品质的体育设施环境,满足了市民多元化的健身需求,更通过举办各类体育赛事及活动,极大地提升了区域内的公共空间活力,塑造了城市文化的新地标。
Chapter.03
设计策略
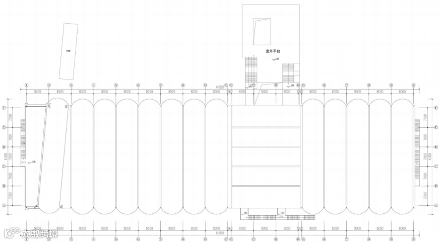
3号楼建筑单体需要在1万余方的用地上容纳1.2万平米的室内功能及4000平米的室外场地,同时又受控于园博小镇整体的风貌高度,所以建筑及场地布局要求从平面及高度上形成极度压缩的形态,内部功能组织又需要有条不紊的展开,设计遂采用单元拱的方式将大体量体育功能化整为零,并利用拱形结构的矢高为二层球类场馆提供净高和有效的结构受力高度。
Chapter.04
规划布局
1.高强高密的功能布局
项目地点位于合肥骆岗公园机场主路东侧,用地面积1.35万平米,该范围内存在机场既有配套建筑及大范围绿植。项目功能包括1.2万平米体育建筑空间与4000平米室外活动面积。如何在有限的用地面积内,布局体育运动、家庭娱乐为一体的室内外空间成为一项挑战。
设计采用一字形布局,将建筑置于用地南侧。通过室内空间的合理划分和灵活布置,使游泳馆、篮球馆、健身中心及羽毛球馆等功能区域既各自独立又相互联系,形成了动态的空间结构,使得各类活动可以按需切换,满足不同时间段、不同用户群体的多元化使用需求。
用地北侧设置室外活动场地,形成与北侧绿地的过渡与融合。户外空间不仅作为室内外过渡地带,更被赋予丰富的功能性,如举办户外赛事、开展公共活动或提供休闲散步的绿色环境等,实现从单一功能到多功能、多场景的有效集成。
▲冠军一号运动中心F-SPACE三号楼 ©张锦影像工作室
2.服务内外的室外平台
建筑北侧在原有加油间的位置,设计服务内外的室外平台,与室内空间串联,形成与南侧地块、北侧景观的互动。此平台不仅可用于室内活动场地的人流集散疏导,降低人员密集区域的疏散压力,同时为室外活动场地与景观提供舒适的观演休憩场所,承载丰富的公共活动,如小型健身、露天表演、展览展示等,丰富建筑的功能性和趣味性。
▲冠军一号运动中心F-SPACE三号楼 ©张锦影像工作室
▲冠军一号运动中心F-SPACE三号楼 ©张锦影像工作室
3.链接双塔的拱形单元
设计采用拱形单元结构,将大体量体育功能化整为零,较大尺度的体育空间以较小尺度的外立面呈现,形成一定的节奏韵律。建筑在满足基本使用需求的同时,能够更好地融入周边环境,使建筑与园博园整体空间和谐共生。
▲冠军一号运动中心F-SPACE三号楼 ©张锦影像工作室
▲冠军一号运动中心F-SPACE三号楼 ©张锦影像工作室
▲冠军一号运动中心F-SPACE三号楼 ©张锦影像工作室
拱形单元西侧端部设定为特定角度的偏转,确保从形态上顺应整体规划布局,实现与星塔的衔接,并且使建筑形态更加丰富,强调了空间导向性和连贯性。
▲冠军一号运动中心F-SPACE三号楼 ©张锦影像工作室
▲冠军一号运动中心F-SPACE三号楼 ©张锦影像工作室
4.面向跑道的梯次退台
针对其与相邻老旧机场跑道的关系,我们特别采用了面向跑道的梯次退台设计手法。这一布局既是对历史遗迹的尊重与呼应,也是对现代功能需求的创新诠释。通过逐层后退的室外平台,建筑与老旧机场跑道形成和谐过渡,保护了历史景观的独特风貌。
同时,梯次退台的设计还赋予了建筑更多元化的使用可能,可以因地制宜地设置观景平台、户外休闲区等公共空间,让建筑在满足全民健身需求的同时,也成为一个能够对话历史、连接社区的开放性城市节点。
▲冠军一号运动中心F-SPACE三号楼 ©张锦影像工作室
▲冠军一号运动中心F-SPACE三号楼 ©张锦影像工作室
Chapter.05
功能组织
1.高效串联的核心空间
体育建筑设计中,空间布局规划和高效利用尤为重要。设计将门厅、淋浴更衣区以及各类设备用房等服务性功能集中布置于建筑的核心位置,形成强大的服务中枢。两侧立体布局游泳馆、篮球馆、家庭健身中心以及羽毛球馆等多种运动功能场所。通过这样的布局方式,服务空间与被服务空间之间形成高效的串联互动,极大提高空间使用效率。各项服务设施能够快速响应并服务于各个运动区域,便于管理和运营,也实现了人流的有序引导,使整体建筑的功能性和实用性得到最大化发挥。
▲冠军一号运动中心F-SPACE三号楼 ©张锦影像工作室
▲冠军一号运动中心F-SPACE三号楼 ©张锦影像工作室
2.专业适用的运动空间
在体育建筑的设计中,专业适用的运动空间布局至关重要。针对羽毛球馆、篮球馆、游泳池和家庭健身中心等不同功能区域,精心设计合理的层高布置方案。通过交叉拱的结构形式,营造宽敞开阔的无柱空间,净空高度与空间尺度的设计保证平日全民健身与部分体育赛事标准的使用要求,打造灵活实用的空间布局,满足用户群体的多元化需求。
▲冠军一号运动中心F-SPACE三号楼 ©张锦影像工作室
▲冠军一号运动中心F-SPACE三号楼 ©张锦影像工作室
Chapter.06
建构逻辑
1.拱形结构的合理性与悖论
体育空间的立体化设计对建筑高度提出了新的挑战,尤其在面对用地规划20米限高规定以及室内体育场地特定的净高需求。以羽毛球馆为例,训练和比赛场地要求为12.5米净高,传统拱形结构设计因横梁高度限制,在实际应用中难以满足赛时的净空高度标准。为解决这一问题,设计创造性采用了交叉拱的结构形式,通过受力分布的改变,成功将横梁高度由原来的1.5米大幅缩减至0.4米,不仅确保了日常训练与正式比赛的净空高度要求,而且有效降低了整体建筑高度,使之符合用地规划的限高标准。这种优化设计实现了室内空间的高效利用,充分体现设计与功能需求、规划要求之间的和谐统一。
▲冠军一号运动中心F-SPACE三号楼 ©张锦影像工作室
2.装配式建筑的应用及效能
项目自设计到竣工落地仅一年时间,在此过程中,装配式应用效能显著。轻型金属拱形屋面的运用,不仅结构稳固、承载力强,而且安装快捷、易于维护,有效降低了建筑整体重量,同时赋予了建筑独特的视觉美感。
▲冠军一号运动中心F-SPACE三号楼 ©张锦影像工作室
在平面布局上,全面采用标准化结构框架体系,构件均在工厂预制完成,现场仅需快速组装,大大缩短了建设周期,减少施工过程中的环境污染与资源浪费,体现工业化生产的优势与高效性。
外围护立面的设计同样彰显了装配式建筑的特色,采用标准化的ALC(轻质蒸压加气混凝土)挂板作为墙体材料,具有优异的保温隔热性能及良好的隔音效果,质地轻盈,便于安装搬运。与此同时,窗维护体系也采取了标准化设计,确保了建筑的密封性和节能性。
此外,为增强建筑的现代感和通透性,外围护采用了金属网幕墙系统。这种幕墙材质轻巧、强度高,同时因其网格状的透明设计,使得室内外空间产生互动,既满足内部空间采光需求,又赋予了建筑独特的视觉艺术效果。
▲冠军一号运动中心F-SPACE三号楼 ©张锦影像工作室
▲冠军一号运动中心F-SPACE三号楼 ©张锦影像工作室
Chapter.07
结语
冠军一号运动中心F-SPACE的落成,标志着城市空间创新利用与体育业态深度结合的新篇章。合理的规划布局、高效的结构方案以及绿色装配式建筑技术的应用,满足市民多元健身需求,激活公共空间,提升生活品质,树立起合肥园博园内高标准、高品质的体育服务综合体新标杆。
▲地下一层平面图
▲首层平面图
▲夹层平面图
▲二层平面图
▲屋顶平面图
▲南立面图
▲北立面图
项目档案
设计单位:中国建筑标准设计研究院有限公司
建筑专业:龚坚 曹雩 杨永宽 赵泽民 李季 马立
结构专业:邢万里 任沛琪
给水排水专业:李彬 路思艺 任宇 苏柏懿
暖通专业:赵兴 卫军锋
电气专业:黄凌洁 何晗
建筑照明:栋梁国际照明设计(北京)中心有限公司
景观设计:中国建筑设计研究院生态景观建设研究院、标准院生态景观工程中心
标识设计:屹珂设计
建筑摄影:张锦影像工作室
END
-------
往期推荐
▼点击下方阅读
2024-02-27
2024-02-26
2024-02-22
2024-02-19
2024-02-09
2024-02-08

