
项目概况
建筑面积:建筑面积104㎡
结构形式:砖混结构
建筑房龄:1970年代建成,约40年
套型楼层:1F/6F
套型布局:三室两厅一卫
项目背景
为了向特定人群提供公寓居所,业主希望针对本住宅套型实施内装改造,既能面为向未来客户展示的新型解决方案,亦可为整栋住宅的套型批量改造提供范本。
项目面临的挑战主要体现在两方面:一是套型布局功能落后于时代,亟待改进;二是改造预算经费有限,且必须满足业主的内装配置标准。
洗浴间是户型核心部位,它集洗漱、淋浴为一体,使用行为包括:洗面、化妆、更衣、淋浴、收纳、晾衣等。本篇将重点解析项目的洗浴间设计。
平面设计

▲ 阳台平面图,改造前

▲ 拆除墙体,改造过程
拆除部分非结构墙体,拆除原有阳台外窗,
清除原有房间所有内饰面层,
将原有利用率不高的朝西阳台改为洗浴间。

▲ 新建墙体,改造过程

▲ 洗浴间平面图,改造后
结合平面设计新窗,给墙体增设保温层,
增设洗面、淋浴、收纳功能并统筹其空间布局。
空间设计

▲ 空间划分示意
设计嵌入式组合柜,方便洗漱,
提升仪式感,增强房间完整性。
半挂盆设计,在保证洗漱功能的同时,
可以压缩组合柜深度,扩大房间空间。

▲ 仪式感、方便性提升
邻角布置钻石型淋浴房,
透明的体量对空间毫无压迫感。
斜角开门既不影响洗漱的行为,
还增大了淋浴备洗区空间。
洗漱、淋浴、开窗动线高效合理。
门后布置暖气,减小其对空间效果的影响。

▲ 洗浴间实景
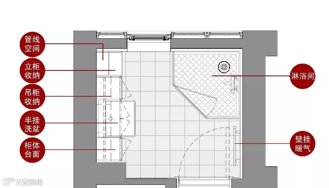
功能设计

▲ 洗浴间平面功能示意
收纳体系紧密结合使用场景,
吊柜虽然薄,放置化妆品等物件却有相当的容量。
台盆旁的开放立柜可摆放每天都会用到的日用品,
方便存取。

▲ 洗浴间组合柜功能示意
台面以下地柜潮湿,可存储不常用的必备物品。
门后有壁挂暖气入冬后可收纳和烘烤小件衣物。
机电设计

▲ 水暖设计示意
运用不降板的同层排水技术,
为淋浴与洗漱增设排水点,
废水均由排水横管向相邻房间排出。
淋浴、洗漱给水热源由相邻房间燃气热水器提供,
热源持久且供热路径较短。
洗浴间在门后增设一组壁挂暖气,
保证冬季室内温度。

▲ 淋浴房水暖设计示意
淋浴房上部增设暖风机,
换季时为使用者提供舒适的热环境。
洗浴间内设3盏筒灯,
对走道部分进行安全照明。
面池上设一对射灯,
提供准确的面部照明,方便面部观察。
▲ 立柜电设计示意
吊柜下方设灯带,
为洗浴组合柜操作台面提供足够的照明。
墙体构造设计

▲ 墙体构造示意
墙体设计遵循以下三点:
部品遮盖处不做饰面处理,
无需做防水处不做防水构造处理,
外墙增设保温层。
外窗构造设计

▲ 外窗构造示意
外窗设计满足以下三点目标:
从户外看改造后外窗与邻居外窗外观一致,
满足户内采光、通风、保温、防水需求,
具有可复制性,可以高空作业施工。

▲改造后外部效果

▲改造后内部效果
在既有建筑改造项目的尝试中,
住宅产品设计不仅关注美学效果,
且更加重视营造便利、舒适、优质的生活空间。
扫描下方二维码添加国标科技客服咨询
END
-------
往期推荐
▼点击下方阅读
2024-08-16
2024-08-16
2024-08-15
2024-08-15
2024-08-13
2024-08-13

