BIM技术全生命周期应用
轨交14号线蓝天路站地下连接疏散通道项目
项目概况
项目用地位于碧云国际社区内,杨高中路高压线部分公共绿地、S7-06公共绿地地下,局部跨云山路、蓝天路。位于轨交14 号线蓝天路站东侧,北至杨高中路,南至碧云路范围,主要涉及道路和市政绿化的用地,与轨道交通9 号线、14 号线站厅贴临。
项目效果图
周边为S7 体育休闲中心、碧云花园一期、碧云花园二期,英国德威国际学校,北面高压线一侧为体育休闲公园,西侧为电信局及居住小区。项目周围市政设施齐全、交通便利、地势平坦、环境整洁,建设条件良好。
拟用地面积约 13086.3 ㎡,包括杨高中路高压线部分防护绿地面积、 S7-06 公共绿地面积和云山路及蓝天路的部分市政道路。
本项目地下一层西侧紧邻14 号线蓝天路站,北侧紧邻9 号线蓝天路站,分别有连通口和两者的展厅层连通,实现无缝衔接。地下一层东南侧和S7-01 地块、S7-02 地块紧邻,通过预留的连通口,连通后续开发的 S7-01地块、S7-02 地块的地下空间。项目旨在打造与地铁站厅一体化的城市公共地下通道,从而提升各地块人员流线通向地铁站厅的可达性,减少地面垮城市道路的人流,缓解地面交通压力,其主要功能是连接通道,兼顾艺术展览,仅在室内做艺术化的装饰、壁挂式的展览,将人群引入碧云社区,同时满足乘客对公共空间的多元素需求,展示社区特色,丰富地铁文化,为金桥社区打造未来城市副中心打下良好的基础。
项目特点
项目效果图
本项目主要BIM难点如下:
9号线与14号线交汇处,通道连接9号线与14号线两条线,施工困难;
上方管线密集,上水、电力、燃气、污水、雨水等管线,管线搬迁方案积极重要;
项目周边建筑物较多,多处结构临近附件既有构筑物。
本项目主要BIM重点如下:
使用BIM模型能真实展现项目出入口、风井与周边环境的可视化;
传统制图容易导致车站与市政管线、周边建筑及风险源出现冲突,BIM模型能全方位展示所有关系,避免出现重大方案问题;
通过建立BIM模型模拟客流,制定最佳项目方案,提出优化措施;
利用BIM模型展现车站复杂断面、接口。
设计阶段BIM应用亮点
周边环境效果
1.场地现场仿真
通过场地周边环境数据、地形图、航拍图像等资料,对车站、停车场、区间穿越重要节点的周边场地及环境进行仿真建模,创建包括但不限于周边环境模型、车站主体轮廓和附属设施模型,可视化表现车站主体、出入口、地面建筑部分与红线、绿线、河道蓝线、高压黄线及周边建筑物的等各类场地要素之间的距离关系,辅助车站主体设计方案的决策。
人流模拟效果
2.疏散模拟
本项目和地铁9 号线、地铁14 号线均相邻连通,根据轨交14 号线蓝天路站高峰客流,通过massmotion,模拟人流高峰真实情况,根据轨交14 号线蓝天路站2045 年高峰客流,东象限的上客以及下客流,地铁中人流平时进入本项目的总人数为:1214+1096=2310 人。疏散宽度参照《建筑防火设计规范》(GB50016-2014)(2018 年版)第5.5.21.2 条1.00m/百人。所需要的总的疏散宽度为:2310/100x1.00=23.1m.目前各疏散楼梯的总宽度为:4.0(1#楼梯)+4.0(2#楼梯)+5.2(4#楼梯)+4.8(5#楼梯)+4.4(8#楼梯)+4.4(9#楼梯)=26.8m,还有两个下沉广场的疏散楼梯,分别为2.8 米宽,也用于疏散,总宽度大于23.1 m,满足要求。
管线搬迁效果
3.管线搬迁
根据管线物探资料,对车站实施范围内的现状市政管线进行仿真建模,尽量精准的表达管线截面尺寸、埋深,窖井的位置及尺寸;根据地下管线搬迁方案,建立各阶段管线搬迁方案模型,辅助设计方案的稳定及管线搬迁的优化。车站主体结构建成后复位的管线作为重要地下管线基础资料。
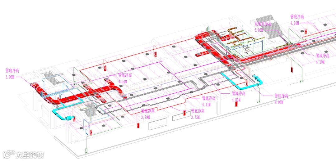
管线综合效果图
4.三维管线综合设计
本项目探索了BIM融入设计流程的方式。不同于传统的碰撞检查及出碰撞报告,BIM工程师直接负责管线综合及碰撞调整,各专业设计负责成果审核,最终BIM工程师参与图纸会签,确保通过三维管线综合优化的成果通过施工图纸传递到施工阶段。这也是BIM工程师直接进行三维管线综合设计的初次探索,发现并解决管线与结构之间、各专业管线之间的设计碰撞问题,优化管线设计方案,减少施工阶段因设计 “错漏碰缺”而造成的损失和返工工作。
管线综合图
5.三维出图
完成管综设计后,为了提高优化成果在BIM与机电各专业之间的传递效率,研究并打通了三维模型到二维出图技术路线。并二次开发了Revit导cad插件,实现导出的cad图纸满足各专业设计对图纸图层的要求,机电各专业可在BIM模型导出的图纸基础上,深化出图。另外为确保施工现场预留孔洞的准确性,从BIM模型导出每面墙体的管线孔洞剖面图,提供二次结构图纸深度。
施工阶段BIM应用亮点
族库效果图
1.设备族库
待各机电设备完成招标后,与设备供应商相互配合,实现设备厂商族模型按照运营养护的最小单元拆分,并添加运维所需的主要技术参数及产品实际材质参数。另外,除厂商族模型外,还整理了一套完整的设备数据信息,如技术规格书、设备说明书、验收文件等资料。将这些数据存放于运维管理平台,实现模型与数据的关联,为运维阶段的基于BIM的运维管理平台奠定数据基础。
支吊架效果图
2.施工深化设计
BIM模型基础上,根据管道位置、尺寸和类型对综合支吊架的放置进行深化设计与优化,可有效排除综合支吊架与各专业的碰撞问题,优化支吊架设计方案,如图7-15所示,减少施工阶段因设计“错漏碰缺”问题而造成的损失和返工。
智慧工地概念图
3.基于BIM的物联网人员管理
通过现场施工人员佩戴智能安全帽,实时采集进出场时间,工作时长和工作轨迹等工作信息,并通过管理人员的信息录入,实现基于移动端查看指定区域内施工人员基本信息和工人分布情况,便于对现场施工人员统一管理
应力概念图
4.基于BIM的物联网-应力管理
各支撑轴现场应力变化情况实时汇总到现场控制柜,然后传输到电脑,通过浏览器把接受应力数据关联到对应钢支撑后传输给相关人员,通过浏览器点击模型实时查看,对应力变化异常的进行现场检查和纠偏,最终整个垂直度累计变化量控制优良。
总结与展望
项目设计阶段,通过BIM技术根据施工图建立各专业模型来检查项目的设计方案合规性及建筑三维效果,再通过BIM的碰撞检测、管线综合来发现施工图中潜在的设计问题,从而避免施工时因设计不合理复工、返工的现象;由此,通过BIM技术介入项目设计阶段从而达到降本增效的效果。
项目施工阶段,通过BIM三维模型、BIM深化设计成果来指导现场施工,在施工图设计阶段BIM就将设计图中存在的问题暴露出来,使现场施工可以减少大部分因设计不合理导致的拆改情况;在现场施工过程中预见难以解决的问题时,可以通过BIM模型的三维可视化来更直观的观察问题;除此之外,还可以通过BIM协同管理平台,来展示三维模型、存储项目过程中的文档图纸等资料,还可以在平台中协同各专业技术人员在模型中解决项目中遇到的技术问题;由此,通过BIM技术介入项目施工阶段,来达到优化项目的施工进度、降低项目成本。
竣工阶段,通过BIM技术建立三维竣工模型,通过施工单位提供的竣工图、项目竣工后现场测量结果、工程使用的材料及设备信息建立的完整竣工模型,不仅可以为项目后续运维阶段提供可参考的模型数据,并且可以通过竣工模型为项目提供可视化的竣工资料;由此,通过BIM技术介入项目竣工阶段,使项目的竣工成果能以更直接的方式观察,并为项目的竣工资料提供了另一种可追溯的资料文件。
轨交14号线蓝天路站地下连接疏散通道项目的BIM应用过程中,对连通道、地铁链接段等构筑物的全专业建模,以及常规应用点(例如管线搬迁与道路翻交模拟、场地现状仿真、施工筹划模拟等)的应用,是对类似项目提供参考依据确保后续类似项目BIM应用合理性和可实施性。
往期精选
案例分享 | 上海中学东校高中部项目BIM应用亮点
案例分享 | 基于BIM的智慧供水运维管理平台
案例分享 | BLM 赋能智慧幼儿园
我们是建筑数字化的专业服务商。我们将建筑信息模型BIM提升为BLM,并通过建筑全生命周期的管理,为业主实现建筑的健康和资产的保值增值。
上海禹创工程顾问有限公司
提供BIM全过程咨询服务
筑盟(上海)数字科技有限公司
提供建筑数字化运营服务
上海浦东新金桥路28号新金桥大厦3201室
BLM@BLMDIGITAL.CN
www.blmdigital.cn
求分享
求点赞
求在看

