
一、零件的技术要求
零件在加工、检验时的各项技术要求,通常是指表面粗糙度、尺寸公差、形状和位置公差,材料的热处理及表面处理等。
二、尺寸公差与配合
在按规定要求大量制造的零件或部件中,任取一个,不经挑选或修配,就能装配到机器当中,并达到规定的配合要求,零件的这种性质称为零件的互换性。
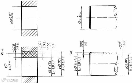
下面以轴的尺寸
和孔的尺寸
为例,讲述尺寸公差的基本术语和相互关系。
极限尺寸 允许尺寸变化的两个极限值,它以基本尺寸为基数来确定。
最大极限尺寸:两个极限尺寸中较大的一个尺寸称,如轴bφ50,孔为φ50.007;
最小极限尺寸:较小的一个尺寸称如轴为φ49.984,孔为φ49.982
尺寸偏差 有上偏差和下偏差之分,尺寸偏差可正、负或零。
上偏差(ES /es ) 最大极限尺寸与基本尺寸的代数差称为上偏差,如50-50=0,50.007-50=0.007;
下偏差(EI /ei ) 最小极限尺寸与基本尺寸的代数差称为下偏差如49.984-50=-0.016,49.982-50=-0.018。
尺寸公差 允许零件尺寸的变动量。它等于最大极限尺寸减去最小极限尺寸,或上偏差减去下偏差。公差总是大于零的正数.
如50-49.984=0-(-0.016)=0.016;50.007-49.982=0.007-(-0.018)=0.025。
公差带:在公差带图中,由代表上、下偏差的两条直线所限定的一个区域。如下图所示的矩形上边代表上偏差,下边代表下偏差,矩形的长度无实际意义,高度代表公差。
零线:在公差带图中,确定偏差的一条基准直线,通常零线表示基本尺寸。当零线画成水平时,零线之上的偏差为正,零线之下的偏差为负
表示公差带的代号p由基本偏差代号和公差等级(数字)组成,例如:
(1)标准公差确定公差带的大小20个等级:IT01、 IT0、IT1、…、IT18。用于确定公差带的宽度。见书附表。
用于确定公差带相对零线位置的上偏差或下偏差,一般是靠近零线的那个偏差。
配合:基本尺寸相同的相互配合的孔和轴,其公差带之间的关系称配合。
1)上、下偏差的字高比尺寸数字小一号,且下偏差与尺寸数字在同一水平线上;
2)当公差带相对于基本尺寸对称,即上、下偏差互为相反数时,可采用“±”加偏差绝对值的标注方法,如φ48±0.008。此时,偏差的高度和尺寸数字的高度一样。
3)上、下偏差的小数位数必须相同、对齐。当上偏差或下偏差为零时,小数点末位的“0”一般不必注写。
4)在装配图上一般只标注配合代号。配合代号用分数形式表示,分子为孔的公差带代号,分母为轴的公差带代号。
5)对于与标准件(如轴承)相配合的孔和轴,则只标注非基准件(配合件)的公差带代号。如轴承内圈与轴配合,只标注轴的公差带代号;轴承外圈与箱体孔座配合,只标注孔的公差带代号 。
零件图上的标注
三、表面粗糙度
加工表面上具有的较小间距和峰谷所组成的微观几何形状特性,称为零件的表面粗糙度。
表面粗糙度是评定零件表面质量的一项重要指标,它对零件的使用性能有很大的影响,零件的耐磨性、抗腐蚀性1配合质量都和表面粗糙度有关。
国标规定粗糙度以参数值的大小进行评定。常用的参数值有轮廓算术平均偏差Ra、微观不平十点高度Rz、轮廓最大高度Ry三种。
生产中最常采用的是参数值有轮廓算术平均偏差Ra。书上图表给出了国标推荐的Ra优先选用系列。
由表Ra值与常用加工方法的对应关系中可见,Ra值越大,加工表面越粗糙;Ra值越小,加工表面越光滑平整。
4、表面粗糙度的符(代)号
四、表面粗糙度的标注
根据国标GB/T131-1993规定,表面粗糙度的代号的标注方法 如下:
1、表面粗糙度数字和符号的方向必须遵守下图的规定。代号中数字的方向与尺寸数字的方向一致。
2、表面粗糙度符号、代号一般标注在可见轮廓线、尺寸界限、引出线或它们的延长线上,符号的尖端必须从材料外指向表面;同一图样上,每一个表面一般只标注一次符号、代号,并尽可能靠近有关尺寸线。
3、当零件所有表面粗糙度要求一致时,其符号、代号在图样的右上角统一标注,其高度应该是图中字符的1.4倍;
零件中使用最多的一种粗糙度符号、代号可统一标注在图样的右上角,并加注“其余”其两字。此时符号、代号、文字高度应该是图中其它字符的1.4倍。
4、零件上连续表面和重复要素(孔、槽、齿等)的表面,其表面粗糙度的符号、代号只标注一次。
5、螺纹工作表面牙型未画出时,粗糙度代号必须标注在尺寸线的引出线上。
6、中心孔、键槽工作面、圆角、倒角标注(可简化形式标注)
五、形状公差与位置公差
形状和位置误差允许的变动量称为形状和位置公差(简称形位公差)。形状误差是指实际要素和理想几何要素的差异;位置误差是指相关联的几个几何要素的实际位置相对于理想位置的差异。
形位公差框格由若干小格组成,指引线的箭头指向被测要素的表面或其延长线,框格中的字符高度与尺寸数字的高度相同。
基准代号由基准符号(粗短横线)、带小圆的大写字母和细实线组成 。基准中的字母一律水平书写。
形位d差的代号由形位公差符号、框格、公差值、指引线、基准代号和其它有关符号组成。
1)当被测要素是轮廓线或表面时,框格指引线的箭头应位于要素的轮廓线或其延长线上(但必须与尺寸线明显错开)。
2)当被测要素是轴线或中心平面时,框格指引线的箭头应与相应尺寸线的延长线重合。
1)当基准要素是轮廓线或表面时,粗短横线应靠近要素的外轮廓线或其延长线上(但必须与尺寸线明显错开)。
2)t基准要素是轴线或中心平面时,基准代号中的细实线应与相关尺寸线对齐。
内容来源:网络
商务合作:0535-2152190
投稿邮箱:admin@sdshengxin.net
版权声明:除无法溯源的文章,我们均在文末备注了来源;如有侵权,请第一时间联系我们删除内容!