本文转自:一起设计
微信公众号ID:together-design

总部大楼
ASICS MEMA HQ
亚瑟士这个日本运动品牌相信大家都不陌生,现在很知名的鬼冢虎鞋就是它旗下的。最近,亚瑟士有了一个新总部大楼,位于荷兰的阿姆斯特丹。名为「ASICS MEMA HQ」。
这个大楼由设计公司 Powerhouse Company 与 RED Company 一同合作,在竞赛中赢得了设计这座 11600 平方米总部的机会。

效果图
这栋大楼的外观有着非常优雅而清晰的几何形态,建筑采用的是悬挑结构。
建筑的入口处安上了一块巨大的、ASICS 品牌定制的蓝色玻璃,在里面上形成了一个凹口,简洁大方。

建筑的两侧由玻璃幕墙为主,并设置了休息座位。

在入口的对侧,能看到一个露台的凹口,从外观上打破了简洁的水平悬挑结构的对称感。

立面图 ▼

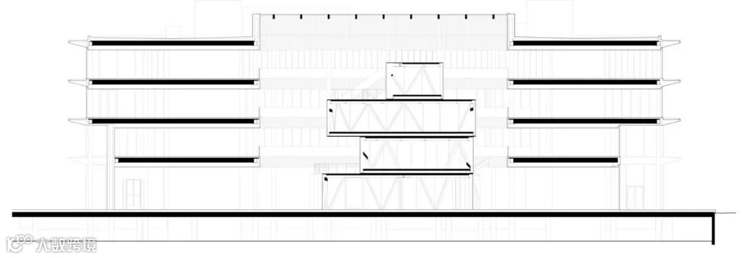
剖面图 ▼

立面外围的金色钢翼突出部分,悬垂的存在塑造出独特的水平感,同时能遮蔽阳光。

外立面设计图 ▼

建筑的室内设计借鉴了传统宫殿(palazzo)的形式,在建筑的正中央摆放了几个堆叠的「盒子」,并且通过四周环绕的通道与工作空间包围它们。

效果图
建筑的设计理念看似简单却十分有逻辑性,建筑的正中央堆叠了几个「盒子」,作为建筑内的中庭。外面再套上连接通道与楼梯,最外围再合上一圈围墙。

建筑中庭的结构采用了钢结构 ▼

施工中的中庭结构充满几何美感 ▼

结构剖析图 ▼

可以注意到整个建筑的中庭有着超大的透明玻璃天窗,让原本就很宽敞的空间得到了充足的自然光,整个环境显得非常通透。


效果图
一层平面图 ▼

二层平面图 ▼

实际完工的结果可以说完成度非常高,与效果图差不多。
这个中庭空间被命名为「ASICS 世界」,这是一个展示所有 ASICS 品牌产品、历史的展示区。不规则的堆叠盒子外观与建筑简洁的立面形成对比。
这里是来访者一进来就会立刻被吸引的地方,同时它还是一个可以举办各种不同活动的多用途空间。


并且首层围绕着 ASICS 世界,展开了一系列的功能空间,例如酒吧、商店、健身房和餐厅。

开放的楼梯预示了员工们在建筑里的行动路线,特意的设计让员工之间可以很轻松的得到交流的机会和休息的空间。


Powerhouse Company 在设计时,将高效灵活的布局作为设计的重点,让这一栋楼的内部空间可以快速支持各种类型的工作,促进员工之间的创意和协同合作。
每一层的空间借助落地窗都可以看到周围的景观,非常通透而舒服。


另外,建筑还按照 WELL Gold 和 LEED 金级认证的最健康、最具可持续性的标准进行建造,让建筑不仅能够节能、降水、降低 CO2 排放量,对环境友善,还可以通过这点来保证员工的健康。
每层空间功能(包括环保功能)的示意图以及说明 ▼



在这样一个充满活力的办公室,员工的工作自然会舒服许多,而且其设计理念也体现了品牌的精神,这样的设计才能让建筑是一个「健全」的建筑!



gif 图由一起设计制作
视频、图片、部分文字说明来源于:
https://www.realedc.com/project/asics-emea-hq


