搜索
首页
大数快讯
大数活动
服务超市
文章专题
出海平台
流量密码
出海蓝图
产业赛道
物流仓储
跨境支付
选品策略
实操手册
报告
跨企查
百科
导航
知识体系
工具箱
更多
找货源
跨境招聘
DeepSeek
首页
>
拼力抢招商林屿境的人,会是冤大头吗?
>
0
0
拼力抢招商林屿境的人,会是冤大头吗?
一介
2025-01-02
0
导读:全市首个第四代住宅,首开去化100%。
最近南沙有个新盘在网上炒得沸沸扬扬,连带着南沙都火了起来。
相信大家或多或少都已经听到过了吧。
没错,它就是招商林屿境。
据悉,这个项目在售楼部刚开的时候,市场关注度就已经非常高,听说还有很多客户
专程从外地过来看房
。
而在上周项目更是迎来首次开盘,首开1、2栋,158套货全部被抢完,
去化达100%
。
这实在是有点夸张。
在介哥看来,项目火爆的背后,其实来自于市场对
广州
第四代住宅的新奇。
一是,招商林屿境作为
全市首个第四代住宅
,本身就自带热度。
二是,招商林屿境的产品,说是实用率最高能超过140%,这一点就很能吸引到购房者的眼球。
三是,有传闻明年政策即将收紧,超新规产品或被叫停。那就意味着,这种
高实用率的第四代住宅可能见一个少一个
,在市场上会显得格外珍贵。
那么,它真的有那么抢手吗?到底它值不值得入手?让我们一起来看一下。
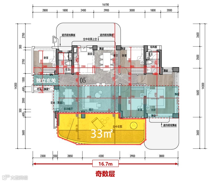
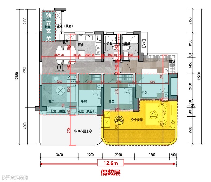
据了解,招商林屿境分两地块开发,东地块有4栋楼,西地块则有3栋楼,总货量约800套。
而招商林屿境此次首开的,是东地块的1、2号楼,1号楼为2梯3户设计,2号楼为2梯5户设计。
主推的户型为
建面约82-110-125㎡三个面积段
,首开有折扣。
这里来看一下,折后各户型的价格:
约82㎡三房两厅两卫户型:折后208-250万/套,单价约2.54-3.05万/㎡;
约110㎡4+1房两厅两卫户型:折后307-350万/套,单价约2.79-3.18万/㎡;
约125㎡四房两厅两卫户型:折后359-412万/套,单价约2.87-3.30万/㎡。
对比周边其他项目:
湾区·金融城,在售建面约90-142㎡三至四房,均价约3万/㎡;
星河江堤春晓,在售建面约99-133㎡三至四房,均价约3.3万/㎡;
深业颐泽府,在售建面约103-257㎡四至五房,均价约3.7万元/㎡。
这么看来,招商林屿境首次开价,还算是比较友好,门槛不高。
而实用率方面,招商林屿境更是甩开了周边一众竞品。
82㎡三房,实用面积做到105-110㎡,实用率约128%起;
110㎡四房,实用面积做到153-158㎡,实用率约139%起;
125㎡四房,实用面积做到176-177㎡,实用率约140%起。
同等面积下,周边项目实用率
普遍只能做到90%左右
。这样对比之下,招商林屿境就完全突出它性价比的优势。
另外,最可圈可点的,当属招商林屿境空中花园的设计,而这也是它作为第四代住宅的标志。
目前来看,招商林屿境是全广州唯一个
使用率最高超140%
,还能
做到40%全赠送空中花园+25%阳台占比
的项目。
它通过整体错层阳台设计,奇偶楼层布局,使得空间最大化利用。
这样的好处在于,每户都能拥有超大的空中花园或阳台,可以享受到更好的采光、更佳的视野以及更多变的家庭生活,居住舒适度拉满。
并且这还是超新规户型,赠送面积更多。
以82㎡奇数层的户型为例,空中花园就足足有
18.5㎡
;
而110㎡奇数层户型,空中花园最大能够做到
33㎡
。
如此高的实用率,就连市场上很多墅类产品都做不到。
说到这里,大家注意,介哥并不会一味鼓吹招商林屿境的优点。
放大细节,其实还是能发现不少槽点的。
单单从户型上来看:
一是,错层阳台设计虽然可以最大化空间利用,但随之而来也会
牺牲部分私密性
。
想象一下,以错层的视角,下层住户在花园的
活动
有可能会被上层住户窥视到。
二是,由于错层设计,会导致部分楼层户型的空中花园放在主卧、书房等静区。
比如82㎡偶数层户型,它就把空中花园与主卧、次卧相连,
客厅没有直连的公共阳台
,空间感上就没那么强烈了。
三是,空中花园或者大阳台
不能封窗
,可能存在安全隐患、恶劣天气影响等问题。
四是,项目主打的高实用率,
大部分赠送面积都花在了空中花园和阳台上
,室内面积其实没多大变化。
当然了,萝卜白菜各有所爱,每个家庭的需求点不一样,具体可以到样板间亲自感受感受。
说了产品和价格,再说回项目周边。
招商林屿境在交通上还是比较有优势的,小区
距离
地铁18号线的横沥地铁站约500米。
而通过18号线,可以直达番禺广场、南村万博以及冼村,这一点会吸引到不少市区上班的地铁通勤族上车该项目。
但如果是自驾族的话,还是得谨慎考虑,毕竟南沙自驾到市区还是较为费劲的。
而在其他生活配套方面,项目周边规划有约 54 万㎡的 TOD 商业中心以及约 20 万㎡的地下商圈,但
等到真正投入使用需要一定
时间
。
如果想要到大型商业消费,需要驱车到金洲、焦门商圈,或者地铁到番禺广场、万博商圈。
就招商林屿境所处的横沥岛来看,虽然有着强规划、定位很高,但目前大部分配套还在逐步完善,想要享受到成熟的配套生活还需等待。
总的来说,招商林屿境首开售罄,说明其产品还是比较受到市场认可的。而对于这一波未能上车的同学,如果以上的缺点你都能接受,那就可以考虑入手后续楼栋。毕竟这样的项目,目前广州仅此一家。
如果是你,你会选择入手招商林屿境吗?欢迎评论区聊聊~
【声明】内容源于网络
0
0
一介
地图大数据AI应用第一平台·优质内容·全国独家优势媒体·自研AI数孪平台为您提供 “2+4大房产数智营销解决方案” 关注我们,了解更多数智营销玩法 城市站公众号阵地:@一介北京@一介上海@一介西安@一介郑州
内容
796
粉丝
0
关注
在线咨询
一介
地图大数据AI应用第一平台·优质内容·全国独家优势媒体·自研AI数孪平台为您提供 “2+4大房产数智营销解决方案” 关注我们,了解更多数智营销玩法 城市站公众号阵地:@一介北京@一介上海@一介西安@一介郑州
总阅读
8
粉丝
0
内容
796
在线咨询
关注