点击上方“宾孚顾问”关注我们!
幕墙——建筑的外衣,集建筑美学、建筑功能、建筑节能和建筑结构为一体,是气派、高雅、具有时代感的代名词,已成为现代化大都市的重要标志。
幕墙依附于建筑业,但它具有天生的机械制造工业基因,是建筑业中专业交叉最多的分支。幕墙在设计制造安装过程中具有多专业深度交叉的特点,建筑师们对艺术孜孜不倦的追求以及大量城市综合体和超高层建筑的不断涌现,这些都给幕墙技术提供了极大的发挥空间。而BIM的出现给幕墙技术的发展也带来了良好的机遇。
上
海市古北SOHO工程, 宾孚为幕墙专业BIM实施单位,作为整个建筑群最重要的一环,幕墙实施难点重重:幕墙预埋件是否能够一次到位?幕墙骨架体系是否与其他专业冲突?檐口部位是否影响排水系统?屋面格栅是否满足屋面机电系统排布?真不敢相信,这些复杂的幕墙难点问题用了BIM技术可以轻松搞定!
项目
概述
项目名称
长宁区虹桥街道261街坊6丘(古北5-2)新建商办项目
项目地点
上海市长宁区,伊犁路与红宝石路交界处
建筑面积
本项目占地面积约1.6万平方米,总建筑面积约16.2万平方米,其中地上总建筑面积约10.7万平方米,地下建筑面积约5.5平方米。建筑层数及高度:本项目地下共4层,地面设有一座39层的主楼及一座12层的辅楼组成,主楼与辅楼间设有一钢结构连廊连接。主楼首层为大堂,第10层及第24层设有2个避难兼设备层,建筑高度约为169.9米;辅楼建筑高度约为54.9米。:本项目地下共4层,地面设有一座39层的主楼及一座12层的辅楼组成,主楼与辅楼间设有一钢结构连廊连接。主楼首层为大堂,第10层及第24层设有2个避难兼设备层,建筑高度约为169.9米;辅楼建筑高度约为54.9米。
宾孚承建
上海宾孚承建了幕墙专业BIM实施,包含幕墙及相关幕墙有关构件建模、深化设计建模、与建筑结构、机电等专业碰撞检查、优化建议、幕墙下料单等等。
幕墙专业建模
现场施工照片
项目
应用点
幕墙深化设计
在运用BIM模型辅助深化设计和施工过程中,协调项目施工各参与方,对图纸深化过程中出现的疑难问题,配合业主管理方和设计单位,运用BIM模型讨论并验证解决方案。
内部龙骨深化
石材拼缝借口处理
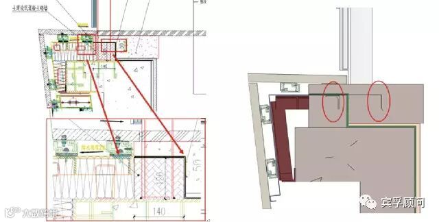
碰撞检查分析
利用BIM幕墙模型,协调各专业模型进行专业碰撞检测,发现并分析问题。
防水铝条板与结构碰撞
模型下料
借助BIM模型,提取模型参数化信息,根据构件信息生成信息库,导出excel,生成下料单。
从上一阶段导出的模型,进行切割、打孔等操作,形成完整的板块组框图
构件参数化
生成构件信息库
形成下料单
根据下料单直接下料
温馨提示:本文中有部分图文源自于网络,相关权利义务归原作者(编者、出版者)所有,若存在错漏、版权等各种情况请告知,对此深表谢意!
相关阅读推荐
■ 宾孚案例 | 敢不敢挑战在地下三层的狭小场地里穿越这么多交叉作业?
■ 宾孚参编 |《上海市建筑信息模型技术应用指南(2017版)》正式发布
■ 13项P-BIM软件功能与信息交换标准正式发布,上海宾孚参与其中多项标准编制
■ 住建部联合18个部委发布一份影响建筑业10年发展的重要文件
长按识别二维码关注我们
上海宾孚建设工程顾问有限公司
基于BIM的成本管控专家

