点击上方“宾孚顾问”关注我们!
俄国作家果戈里说道:当歌曲和传说都已缄默的时候,只有建筑还在说话”。
建筑比歌曲、故事、传说还要流传久远。建筑是可以阅读的,建筑的语言就代表了它产生的那个时代。
一座城
一个魂
重塑德系情怀
宾孚旧建筑修缮案例
▲建议在WIFI环境下观看
上海宝庆路3号作为近代“颜料大王”周宗良的住宅,代表了近代华人买办及其阶层的社会地位、经济能力和生活方式等,是研究上海近代历史的重要信息和实证。
其设计单位华盖建筑师事务所是近代中国最为著名的华人建筑师事务所之一,作为该事务所在上海的一处设计作品,同时也是将现代主义风格应用于住宅的设计作品之一,为近代建筑史的研究也提供了重要实证。
周宗良
徐兴业
徐元章
此建筑是上海近代花园住宅的代表,无声的建筑同时映射了人们关于近代豪门与买办家族的记忆,从“染料大王”周宗良到其女婿“茅盾文学奖”作家徐兴业,再到外孙水彩画家徐元章,建筑承载了近现代上海人的记忆、情感以及这段历史和生活方式的变迁,具有反映时代变迁特征的社会和文化价值。
BIM顾问
上海宾孚建设工程顾问有限公司
施工单位
上海建工四建集团有限公司
综
述
-Overview-
由于对建筑的使用功能进行根本性改变,相对应的要求更高。故如何在最小化改动建筑外观的同时满足使用功能要求,是本项目的关键。
真实性原则。真实、完整地保护历史建筑风貌,对历史上历次改建内容进行评估和判断,保留有价值的历史状态、保护历史风貌、文化环境。对因功能需要加建建筑采用新的形式和技术建造,不做仿制和重建。
最低限度干预原则。在保证历史建筑安全和合理利用的前提下,最低程度干预,采用的保护措施应以延续现状、缓解损伤为目标,避免过度干预造成的破坏。
可持续利用原则。在保护的前提下结合历史建筑现状条件,同时根据建筑的价值评估对建筑空间和构件进行分类保护,有针对性的进行功能置换,使历史建筑得到合理有序的可持续利用。
修缮工作计划
整个项目是由1号楼开始到5号楼依次开始修缮的施工过程;
新建连廊穿插在其中,并在结构隐蔽前与其他几栋楼同时完成结构工作;
在结构施工中同步机电设备及管线暗敷工作,结构结束的同时,进行室内及园林工程施工。
分部工程施工计划。每栋楼的分部工程施工,是由外向内进行修缮:
“
1 拆除屋面;
2 屋面、外墙修缮;
3 室内拆除及结构加固;
4 一次机电安装;
5 二次机电装修基层施工、验收;
6 装饰面层;
7 展陈家具进场。
”
施工BIM的管理计划。结构隐蔽验收前完成所有结构、一次机电的验证、碰撞测试等工作;
装饰隐蔽验收前完成所有二次机电的验证、碰撞测试、50%重点区域的装饰效果及橱柜完成的演示;
装饰收尾前完成100%区域的装饰面层工作。
施工管理平台运用
在项目的施工管理过程中,使用BCAP施工管理平台,以建筑信息模型(BIM)技术为载体,协同工程各参与方,对项目进行全寿命周期管理,为项目降低成本提高效益。
室
外
-Outdoor-
对外立面重点保护部位,例如1号楼西南立面、东北立面,进行现场调研。
通过小样试验、清洗墙面、铲除损坏严重的砖、清理基层、缺陷修补、喷涂墙面界面剂、粉刷并养护、粘合剂颜色调配、黏贴上墙、封闭憎水保护等一系列步骤,翻新并复原历史原貌。
屋面修缮
屋面为机平瓦坡屋面,在屋架修缮后原样铺设,通过模型进行排砖模拟,避免浪费。
屋架修缮
模拟铺设
铺设防水卷材
顺水条及保温板施工
挂瓦条及铺瓦
排砖模拟
基础加固
外墙地基加固:外墙原基础开挖后重新浇筑混凝土,通过BIM软件预先对浇筑混凝土量进行计算,避免浪费。对混凝土浇筑范围进行模拟定位,在实际施工前进行确认。
提取工程量: 提取局部楼板、混凝土墙体构件工程量,实现对工程预算量的复核,提高工程采购材料数量的精确程度。
设计结构深化
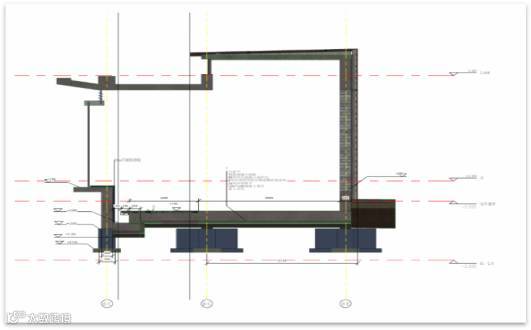
设计深化:传统的二维图纸可视范围有限,空间结构的表达也不够详细,采用BIM技术建立3D模型,将传统绘图中忽略的问题和隐患直观的展示出来,将问题前置解决,保证了施工进度和质量。
施工工艺交底
传统的项目管理中技术交底通常以文字描述为主,工人理解时存在较大困难,不利于工程的施工精度和进度安排。
运用BIM三维可视化模型进行交底,可以保证施工交底的详细程度和工程质量,对新兴工艺和技术也更有利于开展。
室外管网验证
▲优化前
▲优化后
室外管网验证:依照设计图搭建原有设计模型,根据现场实际开挖条件,依据三维模型及施工难易程度,在模型中进行管综排布,避免与基础结构或景观位置碰撞,降低施工难度,保证施工效果。
无人机配合BIM应用
无人机应用:利用无人机航拍技术,对施工作业面及完成面进行航拍,包括屋面改造恢复过程,屋架架设情况,防水铺贴情况及瓦盖恢复情况,后期景观施工等,可以实时掌握现场施工进度和效果,及时发现问题进行过程调整,保证施工质量及效果。结合BIM技术在模型中反应实际施工进度及效果,做到精细化的施工进度管控。
室
内
-Indoor-
重点保护部位模拟
运用BIM技术,对照设计图建立BIM模型,对重点保护部位精装修方案进行完善和确认。
▲请左滑查看!
精装修点位验证
▲BIM模型布置
运用BIM技术,在施工前,先期根据装饰天花造型预布置喷淋头点位,在满足规范要求和美观性的前提下,提出喷淋头优化定位方案,辅助施工。相较于以往根据经验及现场拍板的方案更加精准及快速。
▲实际施工效果
精装修方案验证
对精装修方案进行建模对比,提前发现问题,例如图中踢脚线与展柜设计不合理,产生重叠,避免了施工过程中材料的浪费和二次返工。对展陈设施及家具进行排布,确认实际效果是否合理美观。
室内构件修复
对严重锈蚀的钢门窗,按原门窗形式重新定制予以更换;对现存尚好的钢门窗予以除锈、矫正,修复后做防锈漆及面漆层。
尚可使用的五金件表面除锈、清洗,清洗后做防腐处理并做表面防护;缺失或损坏的五金构件按照外形制相同的门窗进行定制。
▲钢门窗修缮前
▲钢门窗修缮后
消防系统验证
根据设计图纸及现场施工实际情况进行消防喷淋主要管道的预先排布,避开重点标高控制区域,在施工前提供路由优化方案进行比选,满足净空要求,降低施工难度,提高施工速度。
▲设计优化前
▲设计优化后
预留孔洞验证
结合BIM模型可在建筑物建造前期对各个专业的碰撞问题进行协调解决,避免二次开洞,保证了预留孔洞不漏设,不错设,节约了工期时间。
机电管线综合
利用BIM软件,完成机电与建筑结构的碰撞检查,结合碰撞点,调整管道整体走向。通过深化机电各专业的管线综合排布,合理调整管线走向,在不改变原建筑格局及样貌的同时,满足增加内容要求,出图并报设计院确认。
三维激光扫描技术应用
运用三维激光扫描采样重点房间空间结构,生成点云数据模型,相较于传统的测量方法不仅精确度更高,也能直接生成三维空间的可视化模型。结合BIM技术的使用,可以减少在古建筑修缮加固过程中对原建筑的接触和破坏,精确并直接的获得工程师关心的重点数据,大大提高了建筑改造修缮过程中的精度和效率。
总
结
-Summary-
宝庆路修缮工程具有较高的复杂性、专业性,包含修缮、新建等内容,涉及建筑方案、规划、消防、公共安全隐患和环境协调等各个方面,结合先进的3D激光扫描和信息化技术,以确保工程在各个阶段良好的实用性,同时保持与各专业之间紧密的联系及反馈机制。
项目致力于在建筑设计阶段运用BIM技术为各专业提供精准的可视化模型,同时施工时结合可视化模型按照真实数据进行调整,并将BIM技术拓展到与建设工程全过程相关的各个领域(施工、管理、运营维护等),在同一个平台下构建综合信息模型,这是在BIM技术平台上结合信息化技术对古建筑修缮与改扩建全过程服务的一次创新性尝试。
相关阅读推荐
■ 宾孚案例 | 没玩过“BIM+装配式”?岂不辜负了这“壕无人性”的高价地块!
■ 宾孚案例 | 真不敢相信,这些幕墙难点BIM技术轻松搞定!
■ 宾孚案例 | 敢不敢挑战在地下三层的狭小场地里穿越这么多交叉作业?
■ 宾孚案例 | 下一站的高铁站,BIM技术助你“高大新尖”!
■ BIM观点 | 建筑“黑科技”?谁掌握BIM,谁就引领房地产未来!
长按识别二维码关注我们
上海宾孚建设工程顾问有限公司
基于BIM的成本管控专家

