点击蓝字关注我们
行业现状
进入2017年中国写字楼市场投资规模为6761亿元,同比增长3.5%。
得益于智能制造、可持续发展、节能减排,这三大趋势,写字楼未来五年(2019-2023)年均复合增长率约为4.34%的速度进行增长。
据前瞻产业研究院发布的《中国写字楼市场前瞻与投资战略规划分析报告》统计数据显示:初步测算2018年中国写字楼市场投资规模将到达6085亿元左右。预测2019年中国写字楼市场投资规模将达到5885亿元,未来五年(2019-2023)年均复合增长率约为4.34%,并预测在2023年中国写字楼市场投资规模将接近7000亿元。
国家发展趋势
中国制造2025带来的趋势影响。
l低于平均就意味着落后,落后就意味着额外的生产成本、社会成本、税赋成本、降低生产效率,这些低下在市场就会处于劣势
l在智能制造大潮下,落后就意味着挨打,落后就意味着失去市场、失去客户!
典型案例
高级写字楼大厅格局
高级写字楼整层格局
高级写字楼办公区格局
挑战与机会
随着时代的进步,如今科技的发展可以说日新月异,它的发展改变着我们的生活以及我们在写字楼的办公状态。技术创新带来的好处,就是更新建筑的运作方式,重新考量建筑的表现力以及探索建筑的潜在能力。科学改变着人类的生活形态,在写字楼办公的人群也慢慢开始接纳全新的工作方式以及创作思考。科技的突破让写字楼变得更为高效安全纯粹。写字楼未来的发展也必将和科技的发展紧密相连,科技所带来的便利也不断应用在写字楼上,科技也不断将写字楼提升到一个新的领域和高度。
l而绿色生活,低碳办公已经是现在这个时代的主旋律。随着科学技术的蓬勃发展,80、90后观念的大幅转变,写字楼的绿色低碳健康化需要从写字楼的设计研发开始就进行考虑。其材料、设备的选取就务必要满足绿色低碳办公的需要。在软件硬件上就要为写字楼提供低碳化的可能性。未来绿色健康办公将成为写字楼的一个重要发展方向,像周边出色的绿化配套、电梯的优化、宜人的空调系统都为绿色低碳办公提供了无限可能,未来的人们在这样的写字楼办公的时候,也可以从细微的设计体验到绿色健康办公。
写字楼是我国无法忽视的能耗大户,根据国家有关部门的调查数字显示:我国写字楼年电力消耗总量占全国总消耗的10%!能源费用超过800亿元。合理的掌控能源的使用,是节能环保的第一步,采用能源管理系统于写字楼,是实现减排的关键一环。
写字楼的用电设备数量和种类众多,主要包括:照明,家电,空调,三相电机,电加热负载,变压器和其他混合负载等,其中中央空调系统的能耗占总能耗的40%,第二耗能的就是照明系统。除了采用能源管理系统外,仍需对这几类能耗系统进行改造。而我们有对应的解决方案对其进行优化。
写字楼在高速发展的同时,也带来了新的挑战,在写字楼建设的过程中,运营特别需要:通过稳定的能源确保连续生产\更少的能源成本\更高效的能源管理系统\更少的总TCO
以EMS软件系统、节能改造解决方案,分布式能源解决方案为代表的SEEArchitects解决方案可解决这些问题。
客户价值
SEEArchitects解决方案整体以负荷建模提供设计、优化、改造建议,实现系统最佳投资与最佳运行效果,以交互设计系统为客户提供多种解决方案组合模式,实现用户最佳业务需求,以全生命周期管理,提供咨询、设计、实施、维护等多项服务。
通过负荷建模、配电设计、能源管理系统、各类能源解决方案加强配电系统可靠性,将,将配电系统年平均停电时间从8.76小时(甚至更低)降低到最低5分钟(可靠性99.999%),以年产值100亿元的写字楼测算,每年带来的900万元的产值。
通过能源管理系统提供能源数据与分析,通过照明、空调设施的智能控制实现节能、利用EMS(能源管理系统)发电、蓄电等,推进写字楼整体的能源管理。并且所有服务深入到持续的节能运用。持续优化操作,削减约37%的能源消耗。分析照明、空调的数据,通过持续优化操作,削减楼宇整体的约37%能源消耗。
通过分布式能源提供清洁能源,与峰谷差价,以1000KVA(以行业企业平均负荷代替)的负荷计算,企业每年峰谷电价收益可达1000以行业企业平均负荷代替) *365*8*0.69=201万,清洁能源带来的碳排放权已经在部分省进行交易试点碳排放有偿配额60元\吨(广州)
写字楼解决方案重点构成
负荷建模
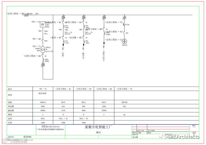
针对配电系统的颗粒度从粗到细,也就是从变压器到最终单个用电设备进行单线图设计,根据负荷大小与性质规划配电系统中设备与线路,并出具负荷分析报告。
实现合理化用户负荷模型,得到配电系统最优CAPEX和OPEX,通过负荷模型倒推企业能源需量,规划更加便宜的能源采购方案
方案价值:从整体角度降低用户TCO,并加强配电系统有效性。可根据用户不同场景需求及风险考量,采用单\双路供电,三相均衡分析,无功及谐波分析、电气设备选型校验等
分布式能源(微网)解决方案
微电网优势:对系统进行自动协同控制, 实现系统安全、 稳定
经济运行,可根据需要应用风+光+储+微网控制,或者是风+储+微、或者是光+储+微,或者是储+微任意组合
储能削峰填谷,节省能源费用
需量控制
光伏+储能+充电桩控制
新能源发电预测
平滑新能源发电波动
优化调度运行
系统无功控制
并离网切换与离网稳定运行
多能互补,提高能源综合利用率
费量管理 l园区区域能源交易
发电上网和调频
私有云or公有云部署
节能改造
空调系统节能改造
空调系统是整个综合体的用电大户,要实现建筑节能,首先要考虑对空调系统进行节能改造。
空调系统中的冷冻主机可以根据负载变化随之加载或减载,但冷冻水泵和冷却水泵却不能作相应调节,存在较大的浪费。变频器可根据冷冻水泵和冷却水泵负载变化调整水泵电机的转速,在冷却水系统和冷冻水系统中装一套一体化变频调速控制柜,利用变频器人机界面、PLC、数模转换模块、温度传感器、温度模块等器件有机结合,构成温差闭环自动化控制系统,自动调节水泵的输出流量,控制热交换的速度,以节约电能。变频器在中央空调中的运用原理图见右图 。
进气、回气都经过空气处理单元。整个系统由控制台远程控制进气的温/ 湿度 通过温度调节装置测量各个房间的温度,直接控制房间的气阀 变频器通过控制空气流量,保持管道压力恒定。
为了节能,采用热回收装置,将部分回风和进风汇合在一起,根据排气盘管的压力,改变进风机的速度,控制房间压力,通过变频器的 PID 功能,利用回风扇维持排气盘管中的压力恒定。
系统具有全自动化运行与自我检测管理功能, 实现无人值守的自动运行,节省维护人员和支出冷却水、冷冻水循环系统、冷却塔风机系统平均节电 率达到 20% 以上。
空调系统变频器运用原理图
注;
1 为回风扇 2 为进风扇 3 为空气处理单元 4 为变频器进
风扇 5 为热盘管 6 为冷盘管 7 为过滤器 8 为进气 9 为废
气 10 为热回收装置 11 为控制台 12 为压力恒定 13 为压力
传感器 14 为变频器回风扇 15 为温度调节装置。
空调系统图
注 1 为液体冷却器风机 2 为冷凝器水泵 3 为冷却器压缩机 4 为冷却水泵 5 为进风机 6 为抽风机。
照明系统节能改造
根据能耗汇总数据,发现写字楼照明系统用电量比重较大,通过对照明灯具进一步调查,发现酒店大堂、走廊、建筑办公区域内均采用白炽灯,写字楼客房还在使用普通灯泡。所以,本次照明系统节能改造应主要从照明灯具和照明系统运行管理方式入手。
传统灯具白炽灯的使用效率占实际功耗的5% ~ 7% ,消耗的电能中仅 10% 转换为光能,其余都以热能的形式散失,灯具寿命较短,能源浪费非常严重。LED 节能灯能耗仅为白炽灯的 10% ,寿命可达 100 000h 以上,可控性高、方向性强,可预先设定光波角度、色温等指标。另外,LED 节能灯更具有照度柔和、无环境污染、无有害金属汞、无频闪、无辐射、无紫外光和红外光产物、节能环保等优势。
照明灯具改进主要考虑是更换成 LED 灯具 对写字楼不同功能分区选择不同的照明灯具,将大堂及走廊、办公区的白炽灯替换为 LED 灯,客房采用LED 筒灯营造温馨、舒适、节能的照明环境。
由于写字楼淡季和旺季使用率差别较大。淡季时,一些楼层照明用电依旧是灯火通明。因此,在 灯具改造的同时还要考虑提升照明系统运行管理 方式 如采用智能照明控制系统 。通过智能调光实现自然光源与人工光源结合 通过时钟控制器、智能开关及位移感应控制来实现按需照明 通过制订照明控制预案,使写字楼公共区域照明根据实际需要分为全部开启、2 /3 灯具开启、1 /3 灯具开启、分区开启、全部关闭、夜间、上午、下午、傍晚、深夜、节假日、特殊要求等照明模式。照明预案可以自动运行也可手动控制。
EMS软件体系
1.实时能耗监测:实时统计当前状态下的所有能耗、按位置、工艺呈现能耗数据,进行高度可视化配置,进行配电控制。
2.能耗分析:对能耗按分类分项进行统计,实现能耗的分项管理,并提供能效纵向、横向分析及趋势分析,实现评价机制及优化策略
3.数据采集:通过ICT技术采集各底层智能设备信息,并于数据库中存储可被其他如MES,ERP系统调用。
4.运维管理:对各断路器、仪表等能源设备及其他设备进行维护。
5.报警:进行报警提示。
6.报表:对数据进行报表分析和呈现。
7.能源计划:依据企业能源的需求、采购、生产进行计划整理,并对最终的结果进行综合对比。
8.SASS:提供位于公有云、私有云、或者混合云的部署方式。
9.兼顾微网各功能:对接微电网,使用清洁能源以及利用峰谷电差储能,降低用能成本。
智能配电柜解决方案
框架断路器:用来分配电能和保护线路及电源设备的过载、欠电压、短路等,部分配有数据接口,适用于800A以上低压配电回路
塑壳断路器:用来分配电能和保护线路及电源设备的过载、欠电压、短路等,部分配有数据接口,适用于100-800A以上低压配电回路
微型断路器:断路器是指能接通、承载以及分断正常电路条件下的电流,也能在规定的非正常电路条件下接通、承载一定时间和分断电流的一种机械开关电器。适用于100A以下低压配电回路。
电表:用于采集配电回路中电压、电流、功率、电量、谐波、频率、功率因数的设备,部分带有开关通断采集功能。
传感器:用于采集温湿度、位置、影视等各种信息的设备。
PLC\网关:用于底层逻辑控制(PLC)、边缘计算、协议转换
设备互联:可将智能配电柜中各数据、控制命令通过设备互联方案接入HMI或者上层EMS系统
HMI:用于本地智能柜监控。
EMS:搜集智能柜之信息,用于更高层次的监控、分析。
EMS运维管理模块
实现信息化运维管理,实现运维日常排程管理、运维审计、提供运维知识库、故障知识关联等功能,降低运维复杂度,提升运维质量,降低运维人员数量和要求。
运维流程管理:包括创建、审核、执行、完成、事后审计、消息通知等主要流程环节,提供知识库、变更单、问题单、事件单、服务请求单等运维流程;
自动关联服务台、事件、问题,支持主动式知识推送、支持根据流程自动生成知识,提升服务效率;⊙支持多关键字,全文内容和附件检索,附件支持: PDF、Word、Excel、TXT、jpeg、png等格式,并支持在线预览。
日常巡检
预防性维修:大修、小修、清洁计划、执行、审计
运维单查询、运维记录查询
知识库管理功能:包括信息维护、信息查询。系统运维人员维护系统常见问题及解决办法的分类维护。支持用户、系统维护人员查询知识库。
运维管理功能:包括在线提单管理、在线接单管理、运维单据查询、运维记录查询功能。
运维统计分析功能:包括运维人员维护、运维人员功能权限。实现运维平台运维人员的功能授权,可为不同运维人员分配不同的运维权限。
技术支持服务:质保期内提供运行维护服务,以及因业务需求产生的必要的系统功能完善、软件升级服务。2)提供相应的系统功能培训及业务支持。
值班人员班次安排与计划
资产管理:快速实现基础设备管理,为ERP\MES\WMS等提供信息,实现现场管理
RFID:高效快速进行资产建档、盘点、报废、领用,将原来数天工作缩短为几十分钟甚至几分钟
设施设备管理:将设备的使用和价值信息分发给相关的财务部门 跟踪独立或组合资产的清册和价值变化信息,并与 其它财务系统进行共享 当设施资产发生损坏时,可通过查询设施对应维修 保险信息,及时进行维护延长使用寿命。
房间设备管理:在可视化楼层平面上, 通过选择 指定的 区域对象, 以显 示 出对 应 的 具体 设施 设备信息条目。
设施维护与报废:通过连续跟踪设施资产的折旧价值,可以 帮助更好决定对设施资产进行继续维护还是将其报废。 同时也更易评估对资产进行租用还是购买,以达到最高 的性价比。
各部门设备配置报表:设备除按空间位置排布外还按照部门归属,加强部门对资产的使用
设施设备折旧:查询设备设备在某个时间段的价值信息,以及相应的折旧额
设备租凭:针对租凭设备,通过租凭到期报表提示设备租凭到期进行归还。
企业级数据中心解决方案
多网点统一管理简单运维。
传统数据机房部署需要1-2个月,模块化数据中心可缩短到几天甚至是几个小时内。
手机APP、短信告警、远程web平台监控,实现无人值守。
制冷、配电、动环、UPS、电池、视频监控一体化预集成在一个柜内现场安装只需简单并柜。
SEEAchitects整体能源环境方案价值
1.实现最优之配电系统TCO,兼顾CAPEX和OPEX
2.实现对配电系统的各种故障、动态负荷造成的影响的监控,降低配电系统设备损坏率和故障概率
3.实现对配电网络的故障切除,防止单点故障变成系统性故障,造成高昂损失
4.实现高效数据监控,变手动抄表为自动抄表,实现有效配电数据管理。
5.提供冗余电源,防止断电造成的生产损失和事故
6.提供滤波及无功补偿,降低设备故障率,降低因功率因数导致的罚款
7.精细化配电监控,实现对最末端设备的配电管理,优化配电数据搜集有效性,提升能源管理系统能力
8.提高运维人员效率,降低运维人员专业复杂度,降低运维流程复杂度,进而降低整体运维成本,提高运维效率。
9.打通配电管理与能源管理,实现IT与OT的完美结合,有效把运营指标贯彻到运维流程中。
10.实现对能源指标考核,强调管理节能,降低企业能源成本
防止动辄几十万甚至几百上千万的节能设备改造,防止过度投资,以最小投资换取最大节能效果
11.通过不同的部署方式,实现不同的数据安全、实施成本、部署时间之考量。
12.实现应对不同场景的设备互联解决的考量,实现最适合客户现场且兼顾成本的数据互通方式
13.利用微网实现对低谷储能、高峰放电,同时避免超过电力合同后的罚款。
14.利用清洁能源提升企业形象,在远离电网或者电网质量不佳地区,使用清洁能源供电。
15.将能源部门从成本中心转变利润中心,为工业园区实现能源创收
16.方案构建按需定制,真正满足不同客户的实际需求
SEEArchitects
广州市锐赛机电设备有限公司
电话: (020) 85557567
长按二维码关注

