昆山西部医疗中心 效果图
项目概况
西部医疗中心项目是昆山市重点民生工程,位于前进西路北侧、祖冲之路西侧、通澄南路东侧、康居路南侧,规划建设成一所集医疗、教学、科研、保健、康复、急救为一体的现代化三级甲等综合医院。项目占地188.9亩,总建筑面积为19.977万㎡。
本项目由上海宾孚数字科技集团有限公司提供BIM咨询服务,取得了较好的经济效益和社会效益,获得多个BIM大赛奖项,以及2021年江苏省级建筑产业现代化示范项目(BIM技术应用示范工程)、2021年昆山市建筑信息模型(BIM)技术应用示范项目等荣誉。
建设单位:昆山文商旅集团有限公司
咨询管理:苏州城投项目投资管理有限公司
EPC总包:中亿丰建设集团股份有限公司
设计单位:中国建筑设计研究院
BIM总顾问:上海宾孚数字科技集团有限公司
项目重难点分析
政府重点民生工程,社会关注高
项目周期紧,全程跟踪审计要求高
医疗设备全,施工期间需提前预留
使用方全过程参与,变更多
工程体量大,专业复杂,协调难度大

使用BIM的必要性
BIM实施模式
BIM+数字化(digital)+项目管理(management)=数字项管(BDM),通过BIM总顾问的专业BIM技术能力、项目管理能力及数字化技术能力,整合优化、深化供应单位数字化成果,为项目实现设计质量有提升、成本管控有依据、工程品质有保障的数字化实施目标。

项目BIM实施内容
前期准备
BIM数据技术标准
(内容略)
BIM数据管理标准
(内容略)
设计阶段
应用目标:利用BIM技术,将设计意图反馈至BIM模型,同时基于模型数字化特性,深化模型,验证设计合理性,进行设计优化,提升设计品质,保障图纸质量。
BIM模型搭建

土建模型



设计优化:通过模型可视化的特性反馈设计问题,配合设计院进行图纸优化,聚焦院内房间布局、管线排布、净高分布、室内效果等进行优化,有效提升设计品质。
BIM深化:通过对模型的深化,设计图纸碰撞检查分析,跟踪多个版本图纸的迭代,发现问题上万处,辅助深化设计数千处,规避后期施工可能出现的签证变更经济损失。
机电管综深化
综合支吊架深化:先在CAD内讨论组合支架初步方案 →再BIM中模拟可行性 →用Magicad复核支吊架计算

支吊架系统的应用,大大减少了机电专业深化设计的时间,通过支吊架设计系统,快速设置并自动生成支吊架模型,实现自动分析计算,并出具计算书。
(图略)
门诊大厅净高分析深化:A区门诊大厅,原设计净高3500mm,经过BIM对多专业图纸的优化整合,实现净高3750mm的要求。
模型深化:重点深化的专业包括暖通、强弱电、给排水、消防、弱电智能化、分布式能源、医疗气体等专业,同时配合设计进行幕墙、装饰等专业的模型深化。
机电系统优化:原设计中央下沉庭院雨水集水坑采用潜水泵提升的方式,水平铺设了近180米的管路,排至B楼最北端B1F的室外。
从运营角度讲,越长越复杂的系统越容易处故障。
(图略)
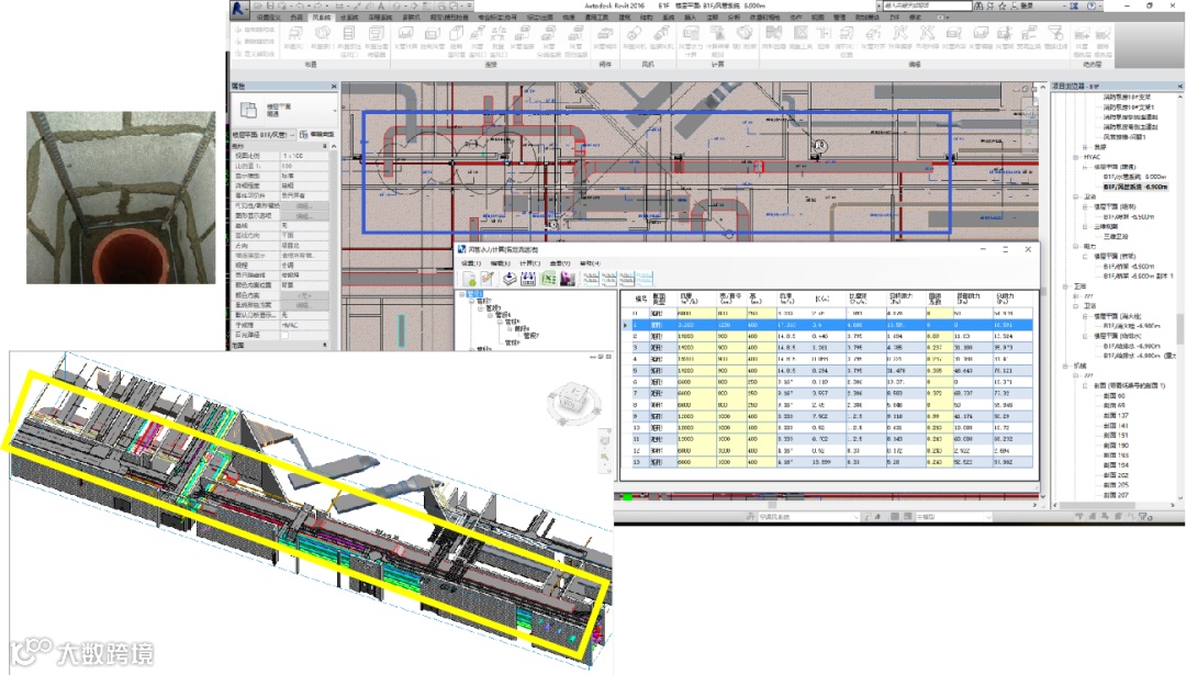
机电设备选型优化:把模型导入BIM软件,通过风管水力计算校验,
分析风系统沿程、局部阻力,获得系统机外静压,指导风机选型采购。
(图略)
该系统为地下室直通90米高住院楼屋顶的消防排烟系统,竖向采用砖砌排烟井道,原设计排烟风机选用700Pa风压。
由于现场土建施工的砖砌风道内壁粗糙度较差,且地下室走道管线复杂,比原设计多走路弯路。

重新进行了改系统全程的风压校核。
校核结果显示,由于实际沿程阻力和局部阻力的增加,现场安装的系统阻力已超原设计的700Pa,经甲方和设计确认,风机重新选型。

医疗专项辅助优化

BIM技术在一级流程中的应用
绿色建筑分析是绿色建筑设计中的重要一环,当前的建筑模拟为:风环境(fluent)、光环境(ecotect)、能耗(equest)和声环境(raynoise)、建筑内外分析等。
(图略)
日照分析:装饰设计前,辅助装饰设计考虑房间功能排布

BIM技术在二级流程中的应用
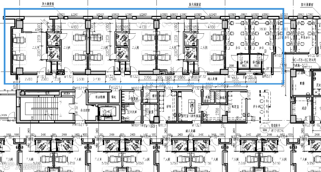
发现原设计在北侧布置了床位费较高的二人间,但大多无日照。
后装饰设计进行了房间布置调整,同时医疗气体带安装也一并进行了调整。

利用相关软件对重点楼层房间名称、区域划分、人流动线进行标注和分析。
(图略)
统计各楼层建筑面积、使用面积,计算建筑面积使用率(得房率);
模型中输入各功能房间使用面积需求,随时跟踪功能房间面积是否符合医院规范需求;
(图略)
BIM技术在三级流程中的应用
基于BIM的三维可视化样板间
基于BIM模型的VR医护
医技楼部分,设置有手术室、ICU、检验科、实验室等医院核心重要部门,其房间设置是否满足这些特殊设备的正常运行将决定项目的成败。
针对这些设备,运用BIM三维可视化手段,将设备等比例建模导入建筑模型,模拟运行,可以真实的验证安装位置、操作过程的可行性。
(图略)
基于BIM的三维可视化样板间

基于VR的BIM模型演示
(图略)
可视化漫游展示
施工阶段
应用目标:施工阶段BIM应用的核心,在于通过BIM虚拟建造技术,实现组织前置、技术前置、管理前置,以数字孪生工地为目标,虚拟建造先行,实现真正的数字建造。
施工准备:针对施工前的技术准备,包括利用BIM模型进行专项施工方案模拟,虚拟样板间,场布规划,脚手架布设优化等工作,为后续施工做好技术准备。
现场CI标准化族库

现场场布模拟:相比于传统平面画图技术,本项目采用BIM应用技术进场前对整个项目工程进行三维模拟布置、现场CI标准化管理、材料堆放厂区、施工机械选型配备一级三维动画展示等,进一步提高了现场在施工过程中的可视化管理工作。


现场虚拟样板
施工图纸会审:基于BIM的图纸会审,改善了传统施工二维图纸会审的工作流程,根据下发出版图纸进行集中建模,利用软件碰撞分析,复核审查,对图纸问题用二维图纸与三维模型结合可视化表示,加强了图纸会审各单位协同能力,提高了图纸会审效率。
(图略)
专项施工方案模拟:针对施工难重点方案,例如基坑方案中的土方开挖标高、桩基的质量控制项及施工工艺等技术参数直观的展现出来,交底更直接,更容易接受,便于技术交底及施工过程中的质量控制。


专项施工方案模拟
数字建造:利用BIM技术对现场技术、质量、安全等进行数字化应用,打造施工现场数字孪生工地,实现虚拟建造先行,为施工顺利施工保驾护航。
场地、土方开挖测算:应用BIM技术能够帮助项目团队更加高效地计算项目土方量(包括挖土量、回填量)。项目基坑阶段的精细建模除了可以帮助土木工程师在实际建造项目前更直观的发现未来施工过程中可能出现的问题;同时利用软件自带的统计功能,可以计算出、挖/填土量,直接导出明细表,与合同清单核对,做好比对。

门诊大堂高支模方案:

脚手架预搭建分析:利用BIM模型布设脚手架,统计材料用量
(图略)
BIM二次排砖、精准投料

钢筋放样优化:复杂节点进行钢筋放样,明确碰撞,对难绑扎钢筋,辅助设计调整方案,不影响现场施工进度。
二维码数字交底:

现场与模型对比:
施工物料智能分析-机电主材统计:我们将模型中包含的风管参数(长宽高)、桥架长度、水管参数等提取出来,与合同清单进行比对,合理备料及安排生产。
(图略)
钢筋精细化管理:基于BIM建立钢筋深化模型,对钢筋工程量进行统计分析,与广联达算量、钢筋翻样量对比分析,可有效了解钢筋消耗量有无超标,实现对成本的有效管控。
(图略)
利用BIM模型的自动构件统计功能,可以快速准确的统计出相应部位的各类构件的数量,减少预算的工作量,用以指导实际材料物资的采购。将模型工程量、计算计划量,实际消耗量,三量进行对比分析,掌握成本分布情况,进行动态成本管理。提前上报编制物资计划,明确使用区域部位,导出计划审批表,结合智验宝验收系统平台,线上联动,实现物料的可追溯。
平台协同:结合BIM+信息化平台,以现场实际生产业务为导向,协同各总、分包单位,落实施工实名制信息化管理,打造信息化、智慧化工地。

基于BIM平台进度跟踪管理

对外展示-省级智慧绿色文明工地观摩配合

运维模型数据整理:根据运维平台要求,完善模型设备末端,添加设备名称、编码及技术参数 。

BIM应用总结
节约成本:材料损耗低于行业平均值的20~30%,深化设计及BIM综合应用带来了大幅的成本节约。
提升管理:建立了以BIM模型为中心的项目管理平台,并提高了参与各方沟通效率。
累计数据:项目部根据需求及族库管理规则建立了各种族文件,为企业提供了后期同类项目的大量数据文件。
培养人才:从设计深化到现场施工,培养了一批优秀的BIM人才,为公司BIM的全面发展奠定了基础。
荣誉和奖项:
2021年第八届江苏省勘察设计行业信息模型(BIM)应用大赛三等奖
2021年第四届“优路杯”全国BIM技术大赛-银奖
2021年第六届江苏省安装行业BIM技术创新大赛-二等奖
2021年第二届“智建杯”智慧建造创新大赛-银奖
2021年江苏省级建筑产业现代化示范项目-BIM技术应用示范工程
2021年昆山市建筑信息模型(BIM)技术应用示范项目
了解本项目BIM应用详细情况,请联系177 3908 7628(微信同号)

