
VIP Rawai Villas
拉威别墅



项目介绍:
拉威别墅是独一无二的项目,距离拉威海滩仅300米
配有8米的公路、漂亮的花园(面积为3,200㎡)
花园有儿童游乐场、水景、咖啡厅、热带花园环绕的步行小径。
拉威区是度假和生活的完美地方
海滩餐馆、咖啡厅、体育馆、按摩店、船舶码头、海鲜和纪念品市场与项目数步之遥
最受游客喜爱的海滩:奈汉、雅努伊和神仙半岛,离拉威别墅仅4公里
距离旅游点如此近,使这个独特度假社区的私人假日更加方便。




项目名称:VIP RAWAI VILLAS (VIP拉威别墅)
项目位置:拉威海滩(离海边300米)
项目户型:二房、三房、五房
交付标准:精装修,带全部家私家电,拎包入住
房屋价格:约10000人民币/平米
交付日期:已建好
套 数:分三期,共43套,现仅有最后一套在售
一户一泳池、畅游生活
私人公园:
在3,200平方米的面积上,将建带儿童游乐场的公园、水景、咖啡馆,还有参观、环绕在热带绿树丛中的步行小径。2016年10月完工。



租金担保计划:
所有的买家拥有长达7年的租金担保计划,每年可获得6%的净收入。
在租金担保协议期限期间,管理公司负责所有的正常花费,并被租户提供奢华的服务,
包括:每日清洁和换床、泳池和花园维护、早餐、转移、免费到花园景区及其它活动。业主每隔3个月收到公司支付的租金,及免费居住一个月。




当地景点:
该项目位于普吉岛南部,离海滨300米。拉威海滩非常平静,没有暴风的侵扰,拥有船舶码头,可全年停靠。5至7公里半径范围内有超市、购物中心、学习和幼儿园。
在过去的两年里,拉威区(包括拉威海滩、奈汉、雅努伊)私人别墅的租赁需求至少呈双倍增长。该区受到来自意大利、法国、俄罗斯、韩国、中国和泰国游客的喜爱。
船舶码头的基础建设和可用性可以容许游客游览十座以上的邻边岛屿。



普吉岛南部的主要观光点清单如下:
蓬贴海角——又叫神仙半岛,著名拍摄点和观光最多的地方,拥有令人惊叹的日落景色
奈汉海滩——这里沙细浪平,适合开展各式水上活动,泰王杯船赛就在这里举行
大佛像——普吉岛的主要景点,佛像位于岛屿的最高点,身高为45米
查龙寺—— 普吉岛最大的寺庙



距离重要设施:
Macro和Tesco Lotus(食品和家用)超市 – 4公里
Home Pro购物中心和进口食物超市别墅市场– 7公里
Central-Festival (购物)购物中心 – 14公里
卡塔海滩、卡伦海滩– 14公里
芭东海滩、Jung-Ceylon(购物)购物中心– 24公里
机场 – 45公里

交房标准:







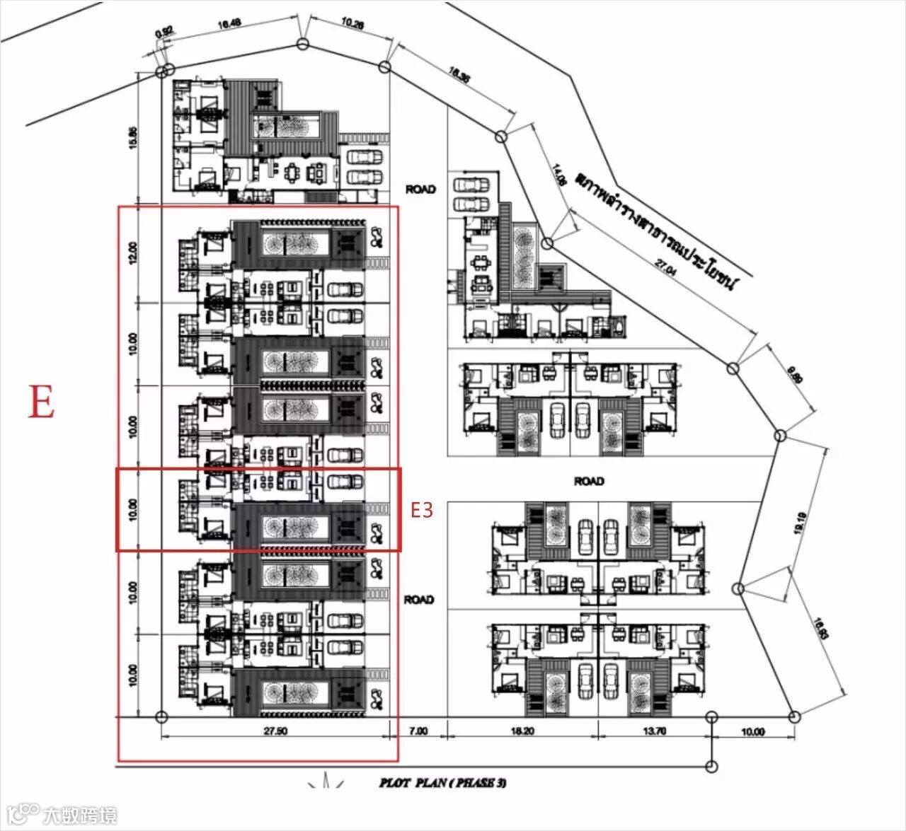
项目总规划图:

仅剩最后一套,大促销,免所有税费,免三年物业管理费
户型E3
建成年份 / 2016年12月
房产类型 / 新房
使用面积 /200㎡,占地275㎡
物业类型 / 别墅
装修状况 / 精装带全部家私家电
所有房型 / 3房2厅4卫
所在地区 / 泰国-普吉
总 价 / 1209万泰铢; 约合人民币232万元



点击图片,了解泰国普吉岛项目
VIP RAWAI VILLA
更多资讯请浏览官方网站:www.phuket0755.com

--如果你喜欢我们的图文,请随手转发--


长安二维码 加普吉置业为好友


