点击蓝字,关注我们
导读:
在汉斯出版社《城镇化与集约用地》期刊上,有论文以张謇时期在南通市唐闸地区营造的工业建筑为对象,立足于南通城市更新规划背景,开展工业建筑更新策略研究,旨在挖掘张謇文化的当代价值。
01
基本信息:
南通市唐闸地区工业遗产价值再现导向的改造设计实践
Renewal Design Practice for the Value Revitalization of Industrial Heritage in Tangzha, Nantong
作者:
邱伟锋, 温怡甜, 葛佳欣, 刘志强, 纪明媚, 黄文娟*:南通理工学院传媒与设计学院,江苏 南通
关键词:
工业遗产;空间设计;城市更新
项目基金:
南通市社会民生科技计划项目–指令性,城市再生理念下工业建筑更新策略研究——以张謇时期营造建筑为对象(MS2023078)
南通理工学院优秀本科毕业论文(设计)培育计划项目,基于有机更新理论的唐闸片区口袋公园(社区中心)模块化设计(BS2026029)
大学生创新创业训练项目,张謇时期工业建筑的数字化保护(202512056071Z)
2024年江苏省高校哲学社会科学研究一般项目,张謇工业建筑遗产活化利用策略研究(2024SJYB1269)
原文链接:
https://doi.org/10.12677/ulu.2025.133009
02
内容简介:
1
工业建筑改造基础研究
以造纸厂为对象的工业遗产再生改造,具体实施策略如下:
2
张謇文化背景下的工业建筑改造设计
本研究分析了南通造纸厂都区位、场地现状、周围环境、人群(图5)。
1)外立面改造
本设计以张謇历史时间线为叙事空间贯穿整个区域,总体布局借鉴张謇在学校建筑中常用的中轴对称加庭院的布局方式,外观上,保留原有工业建筑水泥柱、钢梁结构与红砖材质,展示原有工业风貌,四周进行大面积玻璃窗和开天窗的处理,提升室内空间的采光。
2)功能改造
将原有的厂房结构进行横向分割,分为上下两层,在保留原有承重柱和钢架结构的基础上,进行空间重组,增加了空间的开放性和利用率(图7和图8)。
3)动线规划
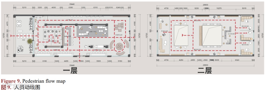
按照张謇在工业建筑中注重实用性和功能性的原则,为咖啡厅的空间布局带来独特的审美价值和使用体验。设计迂回式的动线参观路径,串联了休闲、参展及阅读的空间。实现动静分区,提高空间利用率和舒适度;在路径的关键位置设置特色景观或艺术装置,作为视觉焦点,引导人流动线(见图9)。
4)咖啡制作区
开放式咖啡制作区,以“大生吧台”命名,用来纪念张謇的工业大生纱厂;同时,提取了张謇的卡通人物形象,用于咖啡杯和包装袋的装饰,用来吸引年轻的消费群体。吧台一侧配有休闲椅,方便人们在喝咖啡的同时,能了解咖啡的工艺以及历史。
5)工业展示区
该区域设计以张謇文化为时间轴的“时光隧道”叙事空间,贯穿于整个咖啡厅。展示区域设置了多媒体进行张謇和造纸厂的历史文化介绍,中间设置了南通地区的文物box展台,墙壁上搭配一些非遗蓝印花布做装饰,将蓝印花布、造纸工艺与咖啡文化跨界融合。
6)咖啡散座区
该区域包含靠窗的走廊区和吧台前的中间区域,靠窗区域设计了木制流线型的桌椅组合,顶部搭配了轨道射灯和吊灯组合,既平衡了旧厂房的硬朗感结构,又为空间增添了温馨感;中间区域则搭配了现代的沙发组合,旁边搭配绿植组合,使咖啡厅在保留原始、粗犷感觉的同时,简约又不失时尚的感觉。
7)创客空间
该区域为工业展示后的创客开放区,中间设置有高低错落的box盒子,展示的是该地区包括张謇的一些非遗产品,如:蓝印花布、剪纸、张謇书法和西亭脆饼甜点、咖啡等,使顾客在品咖、了解张謇文化之后,可以通过购买一些商品来做纪念,同时传播地区文化,带动经济发展。
8)休闲阅读区
该区域为二层的全部空间,左侧靠窗区域置入矩形木盒子,为一个单独的休息区;中间公共区域设置了沙发组合,两侧廊道放置了书架,供客人品咖的同时能够阅读;右侧对照左侧设置了独立的謇语阅读房,整体都是玻璃材质,方便采光的同时,阅读房内部放有书架,沙发组合以及绿植,还配备多媒体设备用来讲述张謇和南通工业的关联;顶部则是原始的钢架结构和开天窗处理,钢架上悬挂金属吊灯和该地区非遗蓝印花布等装饰,营造一种光影交织的现代感。
3
结论
本次设计以张謇文化为背景,通过对唐闸地区造纸厂的地域、文化、餐饮等方面的研究与分析,将厂房改造咖啡厅与张謇文化相结合,打造了一个以地域文化为载体的复合式咖啡厅。设计过程中,保留了原旧厂房的建筑结构、裸露的砖墙等特色,融入了张謇文化元素与现代元素,使整个咖啡厅既具有社会价值,又具有商业文化价值;在满足人们休闲阅读的同时,提供展览、传播文化的功能。设计注重本体的改造和文化的融合,重点关注张謇的文化特色、餐饮空间的布局、工业照明、色彩等,让人们在休闲娱乐的同时,更加深入地了解张謇和南通地区的文化。不过,在工业改造与文化融合之间仍可以寻找到更好的融合,在张謇文化的探究上仍可以往下深入,从而诞生更合理的、更深层次的设计。这项改造设计,以新的形式再现张謇工业遗产价值,不仅盘活了原有的旧建筑,还能促进该地区经济的发展,进而提升地区文化的影响力。未来,这项改造将更注重综合的运用,确保文化、科技和功能美学的相统一,以实现更深层次的社会意义,发挥更大的设计价值。
03
期刊介绍:
所属期刊
-Urbanization and Land Use-
《城镇化与集约用地》是一本开放获取、关注城镇化与集约用地学领域最新进展为核心的国际中文期刊,反映本领域研究最新理论研究成果及其在管理和生产实践中的应用成果,主要刊登城镇化与集约用地学方面的学术论文、成果报道及评述等。在RCCSE《中国学术期刊评价研究报告(第七版)》中,本刊被评为“RCCSE中文学术期刊”。
检索:万方|维普
版面:季刊|最新12月版面
联系方式
电话:027-86758873
QQ:2194278918
微信:15802748706
投稿邮箱:2194278918@qq.com
合作联系:service@hanspub.org
长按识别二维码
联系小编投稿
声明:本文转载仅仅是出于传播信息的需要,并不意味着代表本公众号观点或证实其内容的真实性;如其他媒体、网站或个人从本公众号转载使用,须保留本公众号注明的“来源”,并自负版权等法律责任。如本公众号内容不妥,或者有侵权之嫌,请先联系小编删除,万分感谢!
运筹与模糊学|基于PMC-AE指数模型的应急产业发展政策量化评价研究
点击“阅读原文”,免费下载论文

