项目简介
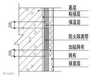
成果特点:硬质发泡水泥板主要技术指标:干密度<300gk/m3,导热系数≤0.07W/m.K,抗压强度≥0.5MPa,抗拉强度≥0.15MPa,收缩率≤0.08%,可替代聚苯板做成外墙保温系统,上墙后每平方米造价低于现有聚苯板薄抹灰系统,且其阻燃性能属于不燃级。做成外墙保温系统后,该系统各项性能指标(包括耐候性等)满足国家和江苏省现行标准规范要求。
应用前景:可用于建筑外墙保温系统和防火隔离带;也可用于防火门填充层。
投资规模:取决于生产规模,主要生产设备不超过50万。


所属领域
化工材料
项目成熟度
试生产阶段
合作方式
合作开发
技术咨询
技术服务
项目合作热线:
400-615-8109
了解项目详情:
http://www.xianjichina.com/achieve/details_406.html
更多合作项目:
http://www.xianjichina.com/achieve.htm


