建筑楼宇运维的过程中,会出现各种突发事件,其中各种突发的漏水情况是最为常见且容易造成较大损失的事件之一。建筑楼宇会出现各类形式的漏水事件,包括:空调冷水系统漏水、空调热水系统漏水、消防喷淋系统漏水、消火栓系统漏水、给水系统漏水、排水系统漏水、雨水系统漏水等。面对这类突发情况,如何第一时间响应,按照应急预案科学合理进行处置将损失降到最低,是每家物业运维单位首要需要考虑的问题。外滩设施作为一家专注于工程设备设施运维的专业公司,积累了丰富的运维经验,针对如何应对漏水突发事件总结了以下要点。

不管是新建项目还是在管项目,外滩设施运维团队在进场时首要任务就是开展项目的初始化工作,在项目初始化过程中,收集各类图纸资料,对设备现场进行排摸和梳理,并逐步建立设备台账以及梳理设备上下级关系,通过设备上下级关系的梳理,理清设备的对应控制关系,为后续的工作奠定坚实的数据基础。通常会进行阀门及对应控制区域的梳理;配电柜/箱的上下级关系梳理;配电柜内格断路器的控制区域梳理,而阀门及对应控制区域的梳理为后续漏水的处理提供明确的位置说明。


管理的精细化程度与投入的精力和资源息息相关,对于重要的设备我们通常会进行一机一档的管理,形成设备全生命周期的档案;对于普通常规的设备,我们会建立设备清册;而对于一些需要定期进行检测检查工作的小型设备设施我们会进行清单管理,通常包括DN50以上的阀门、消防应急灯、压力表具等。

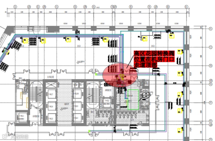
对于重要的需要定期切换的阀门(例如总管阀门、冷热切换阀等)我们会悬挂阀门的标志标识,同时,为了方便员工的熟悉、培训及寻找,通常项目会将重要阀门在图纸上显著标出,形成阀门位置图示,更加直观地进行展示。

项目初始化完成后,项目会将形成的设备清册以及阀门等清单管理导入外滩设施自主研发并使用的POMS设施设备运维平台,形成信息化系统化的管理。

根据应急处置管理要求,工程部管理范围内的应急预案针对的事件包括:设施设备运维过程中可能影响环境和职业健康安全、造成重大财产损失以及能源供应中断等突发事件。通常包括:能源供应中断、主要设备故障、极端天气以及其他类应急预案。
尤其是针对漏水突发事件,因为系统形式的多样性以及流体性质的不同,要区分漏水发生的不同类型,例如:空调水、消防水、生活水、污水、雨水等不同系统发生的漏水情况,分别制定不同措施和流程,以有效地进行处置。在制定应急预案时做到应急组织和人员的职责分工明确,有具体的落实措施;有明确、具体的事故预防措施和应急程序,并与其应急能力相适应;有明确的应急保障措施,并能满足本单位的应急工作要求。

应急预案作为项目的经验沉淀,需要根据实践经验不断去更新完善,外滩设施建立的POMS平台设置了应急预案经验库,指导项目建立符合自身实际情况的应急预案,并可随时调用。

应急预案制定后,项目应定期组织开展应急预案培训活动,使有关人员了解应急预案内容,熟悉应急职责、应急程序和岗位应急处置方案。项目在制定年度工作计划时,同时应设置应急预案演练计划,每个应急预案每年至少组织一次演练。应急预案的演练形式可以多样性,有条件的情况下优先组织实操演练,同时也可以采用桌面沙盘推演以及培训演练等多种形式。

当发现有突发事件或紧急情况发生时,应按各类突发事件的应急预案进行响应,尽量防止和减少相关的环境或职业健康安全不良后果。

为了应对各类突发情况,项目现场通常都会配置应急物资,诸如:沙袋、潜水泵、水带、水桶、应急医疗箱、应急灯和围栏等。这些应急物资通常都会存放于某个或几个集中的摆放点。当突发漏水应急事件时,需要争分夺秒地去进行处置,每减少一秒完成处置可能就会减少很多损失,因此对于应急物资的储备及存放需要灵活配置且按需放置,项目对于重要机房以及楼层区域会分别配置常用的应急物资,例如梯子、水带、防护薄膜、水桶和应急手电等,以便发生突发事件时,能够就近第一时间取得应急工具进行处理。
这些工作的开展,体现了外滩设施对楼宇设施设备运行与维护稳定的高度责任感,这种责任感不仅体现在对专业知识的精通和应用上,还涵盖了对细节的关注、快速响应机制的建立以及对持续改进的追求,为楼宇的安全稳定运营提供更强有力的保障。



