新西兰房产生意
关注我们收获最新最全新西兰房产资讯!
起始栏广告位招租!
非常适合首次置业者的

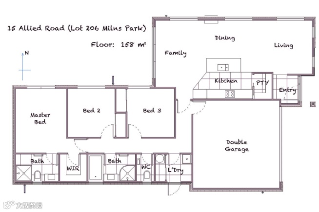
Lot 206 Milns Park
Halswell, Christchurch 8025





This high-spec house and land package is a well-proportioned home offering comfortable and practical living in the sought after Milns Park subdivision. It's perfectly ideal for a small family, a downsizing family or investors who's searching for a brand-new home that offers convenience and comfort.
Setting on a 352m² easy-care ground this location is hard to beat. The open plan kitchen and living space enjoys north facing breeze with great indoor & outdoor flow. Three north-facing spacious bedrooms includes a master bedroom boasting a walk-in wardrobe and Ensuite. The total 158sqm floor space finishes with a low-maintain garden and a double internal access garage.
Key specification:
Ribraft foundation
Brick veneer cladding with cedar weatherboard finish
Ceiling Insulation grade R3.6
Kitchen stone benchtop
Convenient gas cooking
Walk-in pantry & separate laundry
Bosch Appliance
300L electric hot water cylinder
Fujitsu Hi-Wall 5.4KW ASTG14LUCB heat pump
High quality carpet
10 years of Master Build Warranty
With the building completing in early 2021 it is the time to secure your new home without delay. Call us now!
请赶紧联系我们吧!
投资·自住
土地·公寓·房屋
找房·拍卖·招租·租房
新西兰房产生意
微信号 : NZPropertyBusiness
联系电话:021 168 5386

