
关注“新西兰南岛房产投资置业”

48 Matai Springs Drive
Halswell

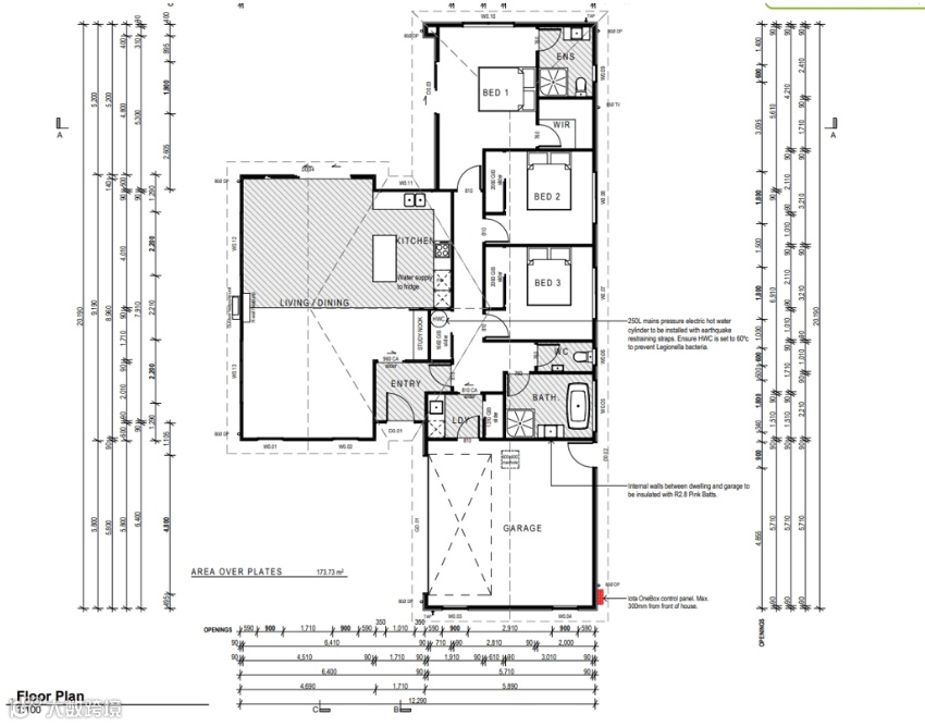
这套几乎全新的精美宅,位于备受追捧的 Halswell ,由 Fletcher Living 所建造三卧两浴室房产,是现代生活的缩影,提供高端的配置,时尚的设计和舒适的居住环境。
2.55米高的天花板提升了室内的空间感,为整个住宅营造了明亮通风的氛围;开放式起居和用餐区无缝衔接后院的大露台,现代化的厨房配有 Fisher & Paykel 电器,包括电磁炉和双碗碟柜;电动百叶窗为室内布置增添了一丝便利和精致,与整体现代美学相得益彰。
三间宽敞的卧室为家庭提供了充足的空间,主卧套房配有套间浴室,以增加隐私;家庭浴室布置时尚;而独立的洗衣房实用性和充足的储物空间可满足您所有的需求:轻松且高效地完成日常家务。这套住宅专为现代生活方式而设计,配备了安装在车库外的电动汽车充电器,以满足电动汽车车主的需求。10 年的Master Build保证让您的购买无后顾之忧。
棣属 Knights Stream School 学区,这是一所备受推崇的小学,以其强烈的社区意识和出色的教育而闻名。这套房产坐落在一个安静、适合家庭居住的社区,并靠近公园、学校和商店,宁静与便利相融合。今天就联系我们来获取更多关于该房产的信息吧!
**Licenced Sales Consultant REAA 2008**
**信息来自 RPNZ/LLUR/REINZ/Property Guru/新西兰土地信息/基督城市议会/CERA,我们无法验证其准确性。**
















Open Home信息周周更新!
好房看不停!
总有一套适合您!
关注我们收获最新最全新西兰房产资讯!
结尾栏广告位招租!
![]()
长 按 关 注 新西兰专业房产资讯 投资·自住
土地·公寓·房屋
找房·拍卖·招租·租房
新西兰房产生意
微信号 : NZPropertyBusiness
联系电话:021 168 5386
![]()
不让您错过任何好房源!

