市中心Collone San Lorenzo附近1分钟。M4号线DE AMICIS地铁出口(目前已在修建当中,未来发展潜力巨大)。


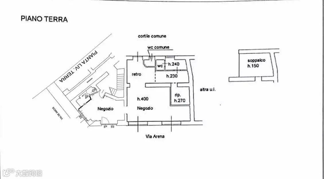
店面为4个门面,一共100平+10平左右的地下仓库。已经有一条30CM的烟囱。房租3500欧/月(没有IVA,物业一年2500)。街区非常富裕,接近大学,在市中心第一环城线上(94路BUS,此BUS所经过的街区都是非常富裕的街区),位置位于VIA DEI AMICIS,9/ VIA ARENA。街区以店面,办公室,高档住宅为主。非常适合做特色餐厅/美甲店等。
区域卫星视图:

地铁口目前修建中:


门面:

图纸:

之前为一个面包店,现在已经空出,随时可以预约看店。街区由于拥有非常多的历史性建筑,酒店,酒吧以及夜吧。所以其顾客群为游客,办公室,学生以及米兰本地富人为主。
烟囱9成新,尺寸30CM,如果觉得太小(如做油烟特别大的餐型,可以自己换更大的尺寸,非常方便安装,楼层不高。


详细信息请联系JOE LIAU 3926666699 微信 jg52099
意大利维马地产公司资源。非诚勿扰,请于工作时间联系。非常感谢。


