罗马市中心 共和国广场 商铺出租
共和国广场(意大利语:Piazza della Repubblica)是意大利首都罗马的一个半圆形广场,靠近特米尼车站。广场上有天使与殉教者圣母大殿。邻近的地铁站为共和国广场-歌剧院站。
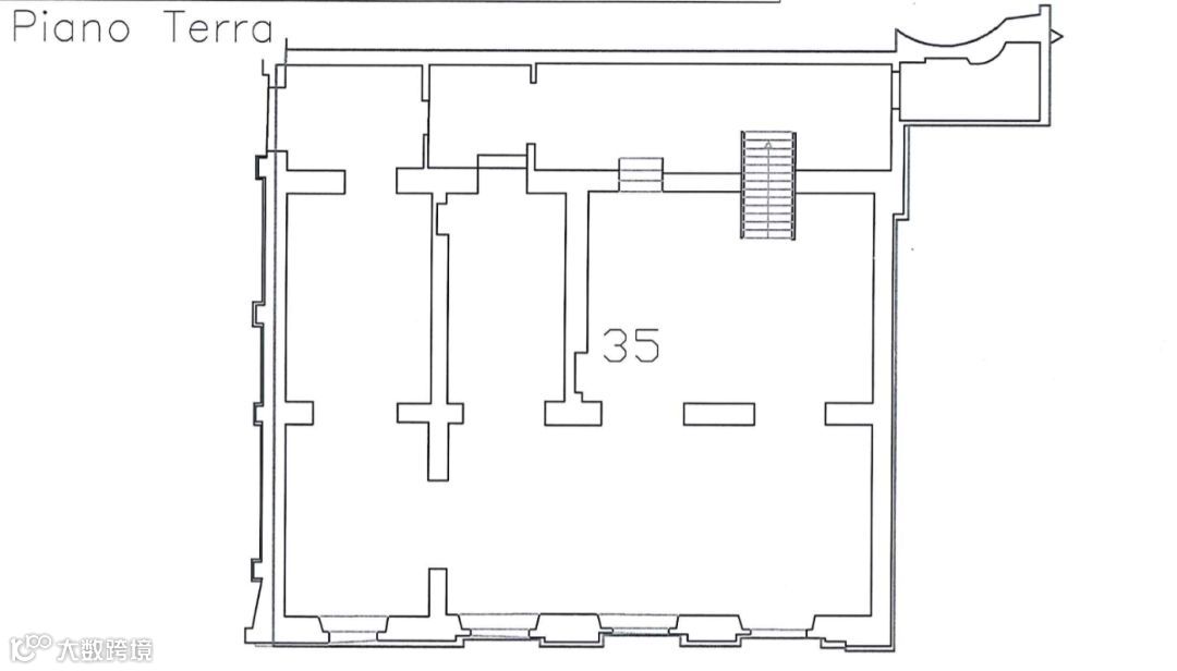
位于罗马城共和国广场,一家商铺,总共575平米,分为两层,平层352,负一层224平米,都可以使用为店面。可以安装烟道。目前是意大利企业经营的一家大型图书馆,房租28万欧元/年,另外要求20万欧元的转让费。


1
END
1
米房投资
JOE.LIAU | +39 392 666 6699
公众号 | mfinvest
网站 | www.mfinvesti.com
TargetHome di Piazza Diaz,1

