搜索
首页
大数快讯
大数活动
服务超市
文章专题
出海平台
流量密码
出海蓝图
产业赛道
物流仓储
跨境支付
选品策略
实操手册
报告
跨企查
百科
导航
知识体系
工具箱
更多
找货源
跨境招聘
DeepSeek
首页
>
米蘭南部区块住宅楼计划
>
0
0
米蘭南部区块住宅楼计划
欧居服务
2021-12-10
0
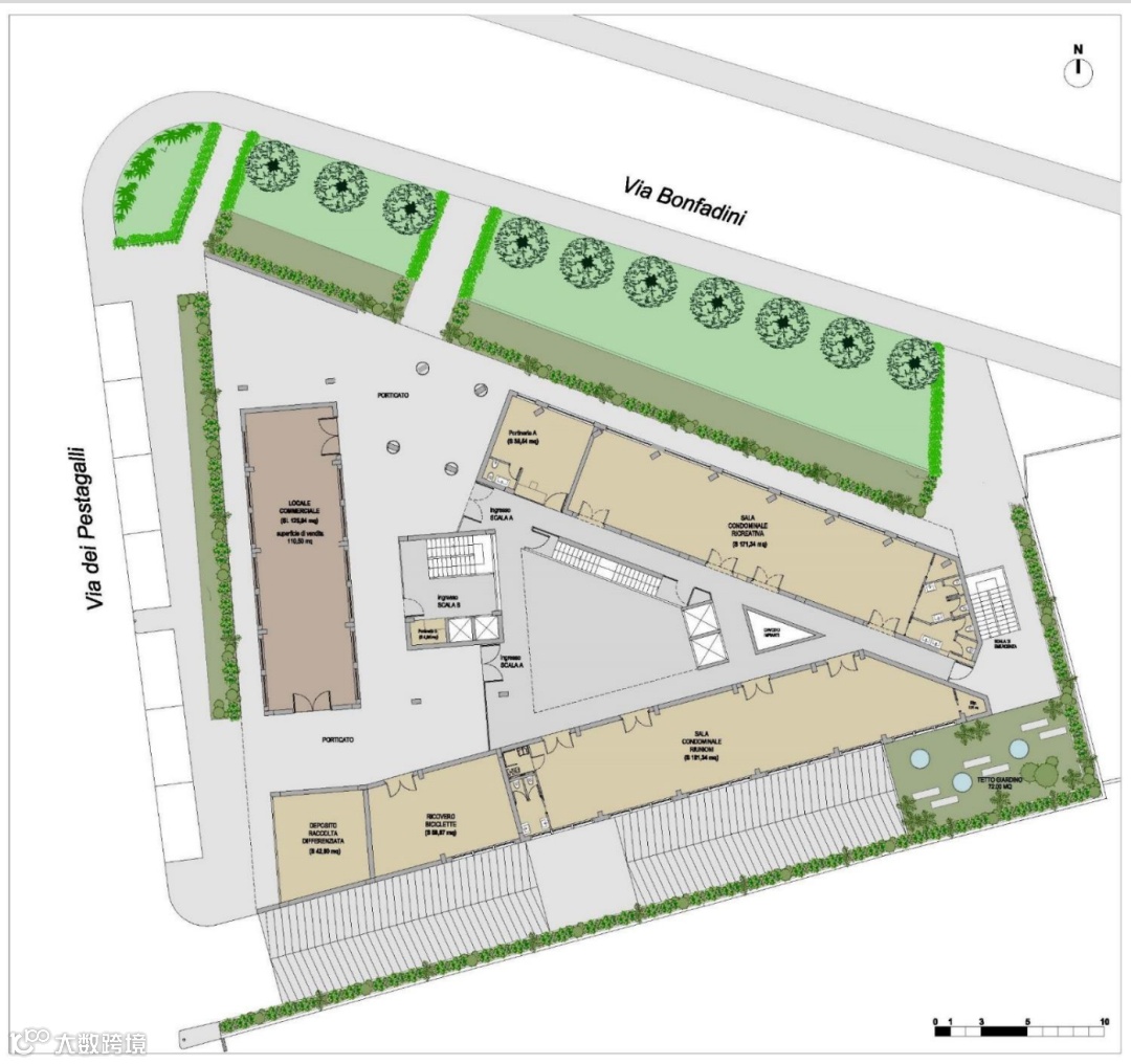
位於米蘭東南區塊,黃線地鐵/捷運站Rogoredo附近最大的工業區改建計畫區域,一塊帶廠房的空地出售,並可拆除後建設為住宅樓盤。
以及擁有審核通過的建築計畫,設計以及完整的工程師及建築團隊。總規劃面積為10189平米,其中80套各戶型住宅,63個車位,以及辦公室,商舖,內側花園等。
總建築立方為32220.76立方米。總投資金額約為1970萬歐元,並可申請國家建築補助 bunus 110%,市場最低售價為2600多萬。
【声明】内容源于网络
0
0
欧居服务
欧居服务为欧居客房地产平台自营服务公众号,欧居服务包括海外房地产相关,投资相关的一系列服务,包括各类项目对接,银行贷款服务等。我们是您在海外移民置业时需要的:专业,谨慎,且诚实的顾问.让您在海外置业投资安全,安心,省心!
内容
459
粉丝
0
关注
在线咨询
欧居服务
欧居服务为欧居客房地产平台自营服务公众号,欧居服务包括海外房地产相关,投资相关的一系列服务,包括各类项目对接,银行贷款服务等。我们是您在海外移民置业时需要的:专业,谨慎,且诚实的顾问.让您在海外置业投资安全,安心,省心!
总阅读
0
粉丝
0
内容
459
在线咨询
关注