
本次定制项目主要信息
项目地址:郑州市国家知识产权创意产业试点园区20F
设计及施工单位:3T.WORK旗下 郑州夏塘装饰工程有限公司
主要材料:金属饰面、木饰面、地坪漆、地砖、地毯、木地板、乳胶漆、艺术漆、玻璃
01 /
设计理念



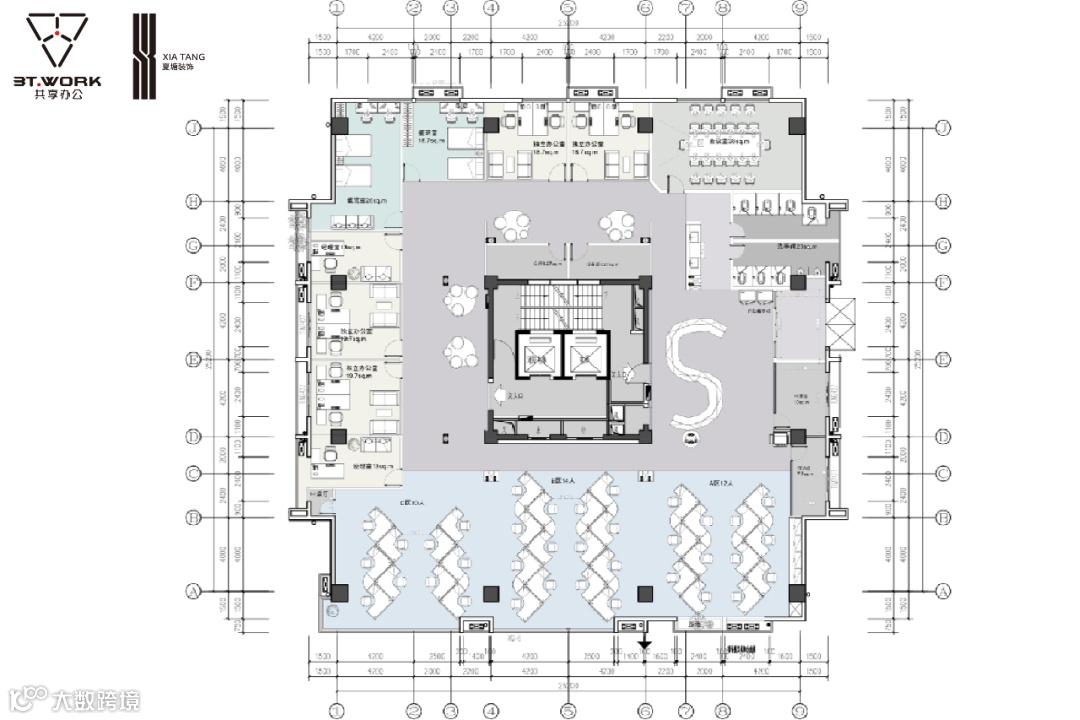
正如商业与服务早已融入到社区中一样,办公也正逐步脱离单一的规划领域,融入到城市的每个角落,成为生活的一部分。再为办公空间进行设计时,融入了建筑美学、空间逻辑,有自然绿化,舒适的办公环境及至装饰材料的选择与与众不同的衔接,都具有独树一帜的风格。创造了一个生动和富有灵感的工作场所。“交互空间”与“自由办公区”二者遥相呼应,并由松散的家具摆置其中,为员工和客人提供临时的交流空间。
02 /
专属色彩搭配
年轻的色彩浓烈张扬,会让在工作中心情舒适,激发设计灵感与创造力。希望能够帮助每一位年轻人拥有更长久职业发展期,因此设计师在整个空间内重复运用蓝色、灰色、白色、浅粉色,以多元的配色手法和整个空间带来的充满变化的丰盈视觉,并在变化中力求每个个体的呼应,呈现出高级的平衡感。


03 /
开放式办公区
对于走在互联网潮流最前端的共享办公而言,即使高效、 自由无拘的沟通至关重要,而开放式的办公设计让人们保持彼此的沟通与连接,使空间更有创造力。设计师以细腻又不失理性的蓝色为基调,创造一个简洁又充满艺术的办公空间。



通过桌面隔板与空间中的隔断平衡了区域中的开放与私密,人、物、空间融合出更灵活更多样化的办公场景。镂空的隔断亦画亦窗,隔而不断, 独特的设计融洽了功能与场景亮点,让整个空间拥有了画面感和层次感。
04 /
休息区
办公空间日渐成为工作与生活场所的重要延展,在这里,工作与生活的界限被打破重建,人们可以在以更生活化的姿态讨论工作,也可以与工作伙伴像朋友一般聊天社交。


3T.WORK旗下子公司夏塘装饰以先锋的设计及施工为立足点 ,全力打造办公空间,商业空间,酒店空间,教育空间等体系化业务模块,以更大热忱回 报社会的关注,服务于更多行业。
郑州三体创业孵化器有限公司旗下的共享办公服务品牌,专注于研究并设计未来办公场景的品牌,集“创业孵化、企业加速、产业支撑、创客教育、创业投资、金融服务、科技转移转化”等为一体的产业孵化平台, 通过平台孵化、资本助推等方式为区域主导产业、地方政府、创客、高校、产业龙头企业、创新创业载体等各类社会主体提供全方面、多层次、定制化科技创新服务。
3T.WORK赛博创业社区
3T.WORK科技信息大厦社区
3T.WORK绿地中心创业社区
3T.WORK东方大厦创业社区
3T.WORK焦作嘉隆国际创业社区

