
01
斯泰德公馆
房源概况
伦敦斯泰德公馆豪华公寓项目位于皇后公园区域附近,共68套豪华公寓,精美装修,高标配置,有屡获奖项的知名建筑公司霍普金斯建筑师事务所设计。步行几分钟即至皇后公园站,比邻公共园景花园,周边有商店、酒吧和餐厅等各项服务设施、瞬间直达伦敦各大知名大学,健身器具齐全,社区入口和公共区域都有CCTV监控系统,地下停车场。
房源基本信息
|
类型:豪华公寓 |
地址:伦敦北二区 |
|
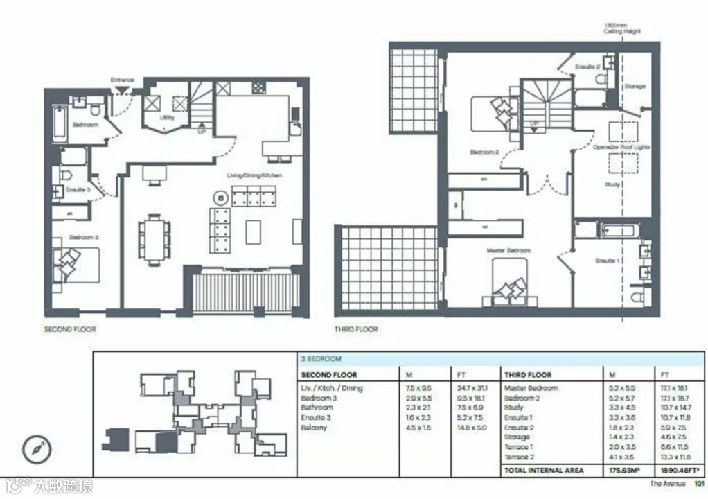
房型:2-3居室 |
室内使用面积:175平米 |
|
停车位:送地下停车位 |
售价:£1,100k - £1,700k |
|
产权年限:999年 |
预计交房日期: 现房 |
交通便利发达
斯泰德公馆所在地伦敦西北二区,交通便利。附近有三个车站,连通伦敦全市。

地铁:
斯泰德公馆可经Bakerloo线及地上铁线直达Euston和伦敦市中心,Kilburn可经由银禧线直到西区,City和金丝雀码头。
地上铁:
列车从Brondesbury直达里士满西部和列特福德东部。
公交车:
有很多巴士(包括6、16、36、98路线)由Kilburn High Road直达伦敦市中心。
汽车:
斯泰德公馆位于伦敦的北部和西部之间。位置便利,可由不同地轻松到达,包括M25,埃奇韦尔路与哈罗公路。

25分钟之内直达伦敦主要地标、区域。
比如Bank老金融城只要25分钟,伦敦桥只要20分钟,16分钟就可以到邦德街区域,到贝克街只要9分钟。

希思罗机场30分钟内抵达,国王十字站20分钟即可到达。


充满活力的皇后公园区域
斯泰德公馆所在的皇后公园是一个充满活力的地方,周围有很多咖啡店和餐厅,享有特大的开放式空间,交通设备完善,附近一带到处都是维多利亚时期设计的房子,因此家庭和白领特别愿意来伦敦西北部中心一带买房或租房。

这里闹中取静,被绿地环绕

这里有知名的餐饮,休闲去处多

网球场等体育设施,运动好去处

丰富的教育资源
这里拥有英国众多知名公立学校,从幼儿园到高中一站式优质教育就在家门口,师资力量雄厚,办学设备优质,为众多学子提供了最高等程度的教学。
一英里内的小学教育资源


一英里内的中学教育资源


30分钟内可以抵达诸多伦敦知名高校

02
近看斯泰德公馆房源
68套豪华公寓,包括单间、一居室、两居室和三居室户型,精美装修高标配置。
每套公寓都极其注重细节设计,建筑考究,尽显精致。

仔细考量相关建筑规格和参数,打造装饰精美的家居环境。

每个厨房均配备西门子全套家电,铺设橡木地板,风格时尚。


为最大限度地创造出奢华舒适之感,每套公寓均安装有温控地暖系统。

卧室均配有豪华地毯和定做衣橱。


洗手间设备均采用清一色的铬材料打造,现代感十足的卫生洁具又与优雅的瓷砖格外和谐。

简约优雅、宁静平和,斯泰德公馆是自住和投资选择的最佳之选。

户型推荐
A101室

A202室

新愿景提供地产管理
新愿景地产可以提供一站式服务,包括房屋交接和租户租客入住之前交付和安装家具包。我们热情,经验丰富的房地产专家团队将管理租赁,并确保一切顺利进行。我们以可靠的租户,快速的租期更新和完整的租赁程序来确保快速入住。我们提供行业领先的专业房产代管服务。
不论在中国还是海外
不论您是投资还是自住
联系我们
总能为您找到最安心的家
扫码一对一咨询
微信号
newvision12


