
引领产业发展 共创绿色未来
作为我国唯一能够覆盖城乡建设领域全部专业门类、整体实力雄厚的科技型中央企业,首批国家装配式产业基地,中国建设科技集团股份有限公司自去年以“全馆最大展位 最核心展区”亮相住博会后,在2018年10月11-13日,再度强势来袭,亮相第十七届住博会E2A06展位!
同期,在10月12日,中国建设科技集团还将联合住房和城乡建设部科技与产业化发展中心,举办装配式建筑装配化装修交流大会,为您带来一场前瞻装配式装修设计理念与实践成果的分享会,全面引领行业装配式建筑新发展。
不同于以往的展会展览
在2018年10月11-13日
中国建设科技集团
除带您探秘绿色新科技之外
还将为您带来
一场视听体验与技术交流的盛宴
届时

展会将连锁四大特色亮点
彰显央企“绿色”新风范

行业大咖将云集公益讲座
集小益,汇大成

住建部领导、建设行业领军企业
国际知名设计事务所等国内外行业最领先的专家
也将汇聚技术交流大会
开启一次建筑界的“头脑风暴”
接下来
小编就带您走进
参展第十七届住博会的
中国建设科技集团
四大特色亮点:探秘新科技
中国建设科技集团E2馆E2A06展位
▼

展览开放时间:10月11日、12日,9:00-17:00;13日,9:00-15:00
展览地点:中国国际展览中心(新馆),北京市顺义区天竺地区裕翔路88号
集团展区位置:E2馆E2A06展位
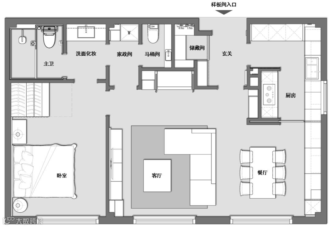
百年住宅样板间——让绿色智能生活走进千家万户
▲样板间平面图
今年的样板间以“百年住宅”为主打,由中国建设科技集团标准院倾力打造,与去年相比,该样板间将更全面展示装配式内装技术,实现“绿色品质更高、百姓生活更智能、家居产品更亲民”的“绿色 科技 宜居”的智慧住宅。
CBIM设计/咨询与项目管理解决方案——让建设更数字,让设计更具竞争力
▲体验CBIM技术
中设数字技术股份有限公司由中国建设科技集团中国院与紫光集团等企业于2018年初正式联合成立,是建设行业领先的数字技术提供商和服务商。中设数字依托自主开发的CBIM设计/咨询与项目管理解决方案技术优势,为工程建设行业实现BIM技术在设计、施工到运维全过程的深入应用提供保障。
模块化户内中水系统——小系统解决大问题,让家庭节水简单易行
▲模板化户内中水样品
模块化户内中水系统的应用,可为每户家庭节水30%,按一家三口计算,每月可节水3-4吨,可解决同层排水、节水、集中中水倒流三大问题。
展板展示——内容丰富,亮点突出,让沟通变得更有效
▲展板展示
在这场玩转“绿色之家、未来之城”的展览中,中国建设科技集团所属子企业中国院、标准院、华森公司、中森公司作为装配式产业基地,在E2馆E2A06展位还将展示各公司在装配式建筑领域、绿色建筑高质量发展等发面的集中优势及项目成果。
公益讲座:集小益,汇大成
公益学术讲座
▼

中国建设科技集团特邀国内建筑工业化方面的十五位央企大咖、知名专家,将以更专业、更精确的视角,探讨目前建筑产业化发展情况,并搭配实践项目视频展示,更全面地解析建筑产业化的未来绿色发展。
时间:10月11日 下午 13:30-16:20;10月12日上午 9:30-11:30
地点:中国国际展览中心(新馆)E2馆E2A06展位
具体日程:
时间 |
演讲内容 |
|
10月11日下午 |
13:30-13:50 |
从中国院的研究实践看装配式建筑的发展 主讲:赵钿(中国院装配院 院长) |
13:50-14:10 |
中森建筑工业化体系实践介绍 主讲:李新华(中森公司装配式工程研究院 总经理) |
|
14:10-14:30 |
建筑产业现代化背景下的装配式精装与思考 主讲:董元奇(标准院装配式建筑研究院 高级研究员) |
|
14:30-15:00 |
BIM技术在装配式EPC项目中的实践 主讲:马海英(中森公司装配式工程研究院 执行总工程师) |
|
15:00-15:20 |
高预制装配率技术及BIM的应用 主讲:练贤荣(华森公司装配式中心 总经理) |
|
15:20-15:40 |
装配式建筑EPC工程总承包的模式与实践 主讲:刘晗(标准院建设管理与咨询研究所前期策划与设计管理部 主任) |
|
15:40-16:00 |
装配式建筑施工质量管理 主讲:许晶(标准院装配式中心 所总工) |
|
16:00-16:20 |
通州台湖公租房建筑设计的标准化与经济性分析 主讲:陈敬思(中国院装配院 项目负责人) |
|
10月12日上午 |
9:30-9:50 |
装配式装修设计技术在公租房项目的应用实践 主讲:王凌云(中国院装配院 副院长) |
9:50-10:10 |
装配式结合超低能耗技术的思考与实践 主讲:潘悦(中国院装配院 项目负责人) |
|
10:10-10:30 |
装配式混凝土建筑的发展与工程实践 主讲:张守锋(中国院装配院 副院长) |
|
10:30-10:50 |
装配式建筑实施技术要点及思考 主讲:刘建飞(标准院装配式建筑研究院 主任) |
|
10:50-11:10 |
钢结构住宅外墙维护体系介绍 主讲:王琼(标准院钢结构所 博士) |
|
11:10-11:30 |
多层装配式技术体系介绍 主讲:卜凡杰(标准院多层装配式建筑领域 专家) |
|
人性化的展厅设计
精彩纷呈的公益学术讲座
漂亮实在的定制小礼品
在E2馆E2A06展位
我们还有更多惊喜等你来发现


高端论坛:聆听一场思想盛宴
▼

主办单位:住房和城乡建设部科技与产业化发展中心、中国建设科技集团
承办单位:中国建筑标准设计研究院
论坛时间:10月12日上午9:00-12:30
论坛地点:中华全国总工会国际交流中心多功能厅,北京市顺义区后沙峪古城村东甲1号
论坛议程:
时间 |
会议内容 |
主持人 |
|
10月12日上午 |
9:00-9:40 |
住房和城乡建设部 陈宜明总工程师讲话 |
文林峰(住房城乡建设部科技与产业化发展中心 副主任) |
9:40-10:00 |
装配化装修产业技术创新战略联盟颁牌仪式 |
||
10:00-10:20 |
推动装配式建筑高质量发展 主讲:孙 英(中国建设科技集团 副总裁) |
||
10:20-10:35 |
高品质时代装配化装修的转型发展 主讲:刘东卫(中国建筑标准设计研究院 总建筑师) |
||
10:35-11:00 |
以精细化设计引领装配化装修发展 主讲:川崎直宏(日本株式会社市浦设计事务所 董事长) |
||
11:00-11:20 |
信息化技术在装配化装修中的应用与工程实践 主讲:樊则森(中建科技集团有限公司 总建筑师) |
||
11:20-11:40 |
装配式装修的高效施工实践与经验总结 主讲:魏 曦(北京国标建筑科技公司 总经理) |
||
11:40-12:30 |
沙龙:大力发展装配化装修,推动装配式建筑高质量发展 主持人:文林峰(住房城乡建设部科技与产业化发展中心 副主任) 嘉 宾:孙 英(中国建设科技集团 副总裁) 张 鸣(北京建谊投资发展集团 董事长) 陈祖新(龙信建设集团 董事长) 闫俊杰(北京和能人居科技有限公司 董事长) 王 鹏(东易日盛集团装配式装修 副总经理) 王 蕴(万科集团 副总裁) 伍孝波(北京市保障性住房建设投资中心 安全质量技术部部长) |
||
此次技术交流大会上,来自住房和城乡建设部的领导,以及行业领军企业、国际知名设计事务所等国内外行业最领先的专家,将进行装配式建筑发展、装配化装修技术和实践成果分享,以引领装配式建筑前瞻理念,提高装配化装修水平,推动装配式建筑高质量发展。
想知道装配式建筑
正在经历怎样的高质量发展?
装配化装修正在进行怎样的技术变革吗?
想知道怎样像玩积木一样装修房子吗?
那就来听听这个论坛吧
报名免费
欲报从速

长按识别下方二维码
下载并填写参会回执
并尽快将回执表发送至zhaon@cbs.com.cn

免费报名通道
点击下文链接了解更多会议内容

http://qr24.cn/AYoH8Z
10月11日-13日
住博会E2馆E2A06展位
10月12日上午
装配式建筑装配化装修交流大会
诚意打造
恭请莅临
来次难忘的绿色科技体验之旅吧
往期文章:
编辑:李延蒲
主编:张 玉






