


01
03
04
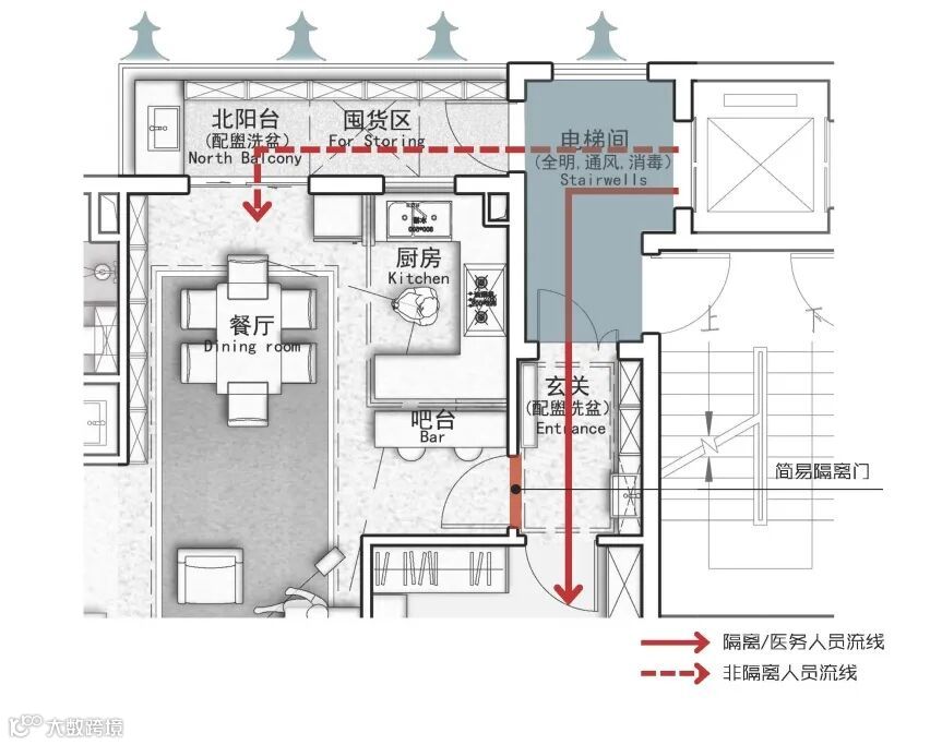
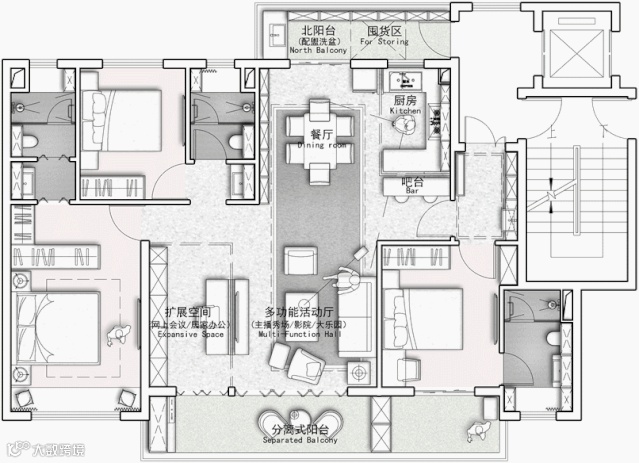
▼中森设计|后疫时代的“诺亚方舟”

专业、创新、诚信、卓越
T: 021-62120181
A: 同普路800弄臣风大厦


