主要考虑因素
空调末端系统的选择需从高经济效益,快投资回报率,以及在建筑设计上能获取最大的使用空间作为基础。所采纳的空调系统必须在结合其它机电系统及建筑结构时能够提供最大的弹性,灵活处理室内间隔的改动及具备维修成本的优点,又同时能提供舒适的室内环境。
建筑概况及空调方案
本文涉及项目案例位于深圳湾片区内,为地铁二号线湾厦站上盖物业,临近逹接香港特区的深圳湾口岸。
项目总用地面积为31,623平方米,总建筑面积为197,082平方米。其中包括5层裙房(局部7层),两栋塔楼为办公楼及酒店,两栋住宅,住宅及酒店建筑高度在100米以上。地下总建筑面积9,903㎡,地下共四层。
项目功能包括:酒店、办公、裙楼商业、公交站、住宅、住宅配套会所、幼儿园几大块。
经初步空调负荷估算,本项目办公楼(L7-L19)总的空调冷负荷为1124TR。
本项目位于南方地区,冬天平均温度为7℃至10C,一般冬季可不设采暖,因此本报告亦不会对采暖系统作分析及比较。
本项目空调末端系统将在以下四个方案中选择:
方案一:风机盘管+新风系统;
方案二:VA系统;
方案三:地板送风系统;
方案四:独立新风+吊顶冷辐射系统。
空调系统介绍
方案一:风机盘管+预处理新风
此系统为气水空调系统,由冷冻水盘管风机及新风机组成。冷冻水由中央空调冷冻水系统提供,经由冷冻水管路输送至各楼层吊顶空间内之盘管风机。
盘管风机循环室内的空气,经冷冻盘管降温及除湿后送至各空调区。空间的温度控制是利用安装于适当位置的三速恒温器及可调节的控制阀自动调控。
室外新风由中央新风处理机处理后经新风管送至各空调区。新风空调机可由送风机取代但新风通过新风空调机处理后对空间的温度及湿度更易于处理及控制。
方案二:VAV系统
VAV系统为全空气系统,由一至两部变风量空调机组成。空调机的数量主要按建筑平面设计及空调空间的面积来选定,一般约800m需设置一台空调机。
VAV系统采用固定送风温度控制,以改变空调送风量来配合空间的空调负荷要求。由于系统保持固定的送风温度,更能提供舒适的室内环境。
空调冷风由变风量空调机经由送风管送至各末端变风量控制箱,然后再送至各空调区。设于吊顶回风口旁的温度控制器会按室内空调负荷要求,控制末端变风箱的阀门来调节送风量。
室外新风经由中央新风空调机处理后,由定风量控制阀送至变风量空调机。此安排保证于低送风量(低空调负荷)时,仍能提供充足的新风至空调区。
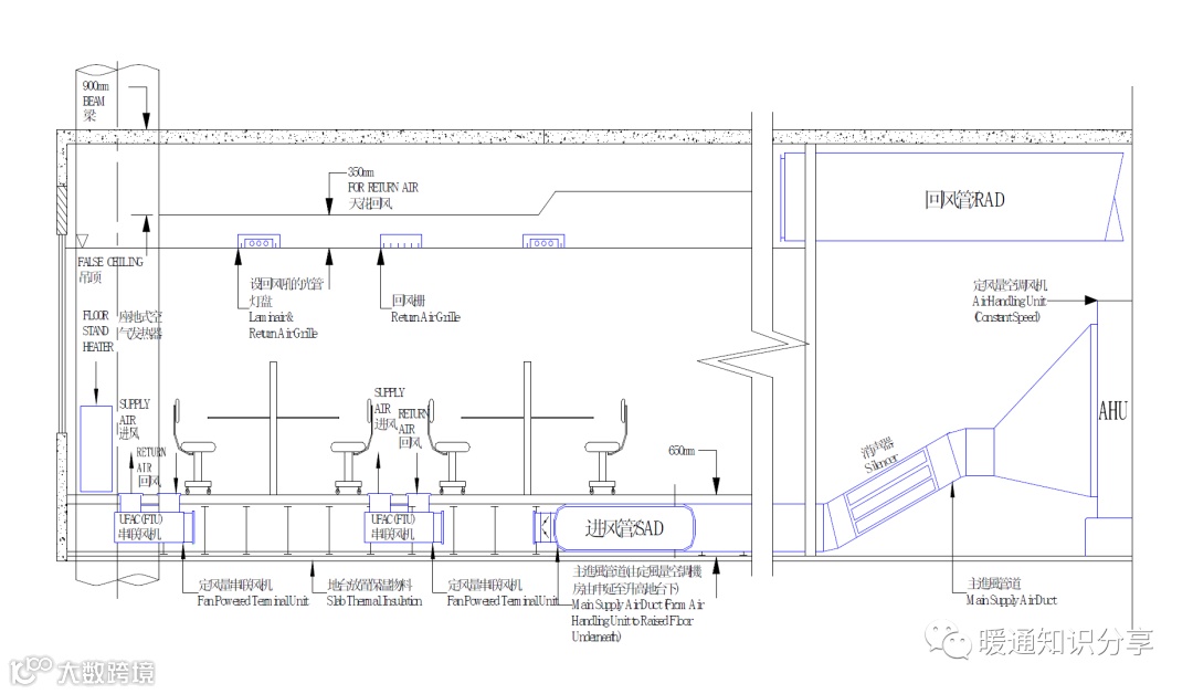
方案三:地板送风系统
所谓地板送风系统就是在楼板上设置一层架空地板,其空间可敷设楼宇的服务设施,如动力、音响和数据电缆,也可布置采暖和制冷的设备。当地板下的空间被用来送风时,它相当于一个可开启的静压箱,这个空间至少要300~400mm高。
地板送风末端装置形式很多,主要介绍以下两种:
第一种:地板送风系统(可变风量系统):AHU(变烦)+VAV-box;
第二种:地板送风系统(地板串联风机):AHU(变频)+FTU
方案四:独立新风+吊顶冷輻射系统
辐射吊顶采暖或降温是将铜盘管敷设在铝制天花板内,通过冷媒的不断循环,加热或对天花板进行降温,传热以辐射传热为主,并辅助补充适量新鲜空气的新方法。
冷水在夏季供水温度为5℃,回水温度为17℃,通过2℃温差来吸收室内热量,有效的解决的夏季降温的问题;而在冬季,盘管内的供水温度为28℃,回水温度为26℃,同样是通过2℃温差来向室内辐射热量。
此低温差辐射方式的特点是采暖和制冷的效率高于空气对流,其辐射传热形式无其它传热形式引起的空气对流所造成的不适感。其均匀的温度创造一最佳的热环境。系统的自身工作原理可以使系统具有很好的温度自动调节性能
方案比较
各方案的系统设置
空调设备安装空间要求
室内空气品质
空调设备维护要求
配合精装修的灵活性
噪声
初投资
系统比较
总 结
从高经济效益,快投资回报率,以及在建筑设计上能获取最大的使用空间作为基础。所采纳的空调系统能够提供最大的弹性,灵活处理室内间隔的改动及具备维修成本的优点,又同时能提供舒适的室内环境。
地板送风系统(可变风量系统)存在设备安装空间高、间隔及布置修改不灵活及投资成本高,施工及调试难度大等缺点。地板送风系统(可变风量系统及地板串联风机系统)主要由地板送风,对于办公室而言,地板洁净度不能保障,送风口处尘埃等污染物也不能及时清理,污染物就会随着送风口吹出空气蔓延到室内,空气品质得不到有效保障。
独立新风+吊顶冷辐射存在有冷凝水隐患,控制做不好,最容易结露出现漏水问题、投资最高,施工工艺要求高,调试及控制要求非常严格及间隔及布置修改的灵活性非常差。建议可考虑风机盘管+新风系统及VAV系统。
风机盘管+新风系统在办公建筑中应用广泛,系统造价低,所需的空调机房面积小,可节省办公区的面积。
VAV系统是高级办公建筑空调系统的发展方向,引导当今高端写字楼租赁市场(特别是一些部大楼)的大趋势,系统造价相对较高,所需空调机房面积较大,需占用一定的办公区的面积。
综上所述,风机盘管+新风系统及VAV系统各有优点,因此建议综合权衡其它相关因素后确定。
好文章供分享学习,本文转载自网络,如有侵权,请联删。


