
项目概况:
星展银行大厦 (原陆家嘴金融中心大厦) 位于陆家嘴金融中心区北侧B4-2-2地块,与北外滩隔江相望,南临陆家嘴环路(即原银城北路)。该项目占地面积约为12,000平方米,地上建筑面积约48,000平方米,建筑高度90米,地上19层,地下3层。其内部格局及建筑标准完全依照高端甲级写字楼而设计,以满足跨国金融机构及企业入驻陆家嘴金融中心区的需要。
项目面临的能耗状况:
星展银行大厦位于黄浦江第一排,由于其优越的地理位置及金融大厦的定位,建筑设计师采用了全玻璃幕墙的外围结构以凸显建筑的整体通透性。目前在陆家嘴金融中心区域大部分楼宇也多为全玻璃幕墙结构,且金融机构本身对大楼的使用要求较高,大楼自身的能耗及对周边环境的影响是目前在陆家嘴金融贸易区域普遍产生的问题。
项目所采用措施:节能减排和舒适度的完美结合
既要充分满足金融机构高端租户的使用需求,为其提供最大的舒适性和便利性,又要最大程度降低使用能耗,减少二氧化碳排放量,从这两方面来更好的繁荣建设陆家嘴金融贸易区是业主陆家嘴金融贸易区开发股份有限公司建造星展银行大厦的要求和目标。
本项目采用了三大目前国际上最先进的节能技术,幕墙技术、辐射金属吊顶空调技术及空调热能回收技术来实现达到此目的:
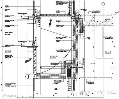
1. 双层呼吸式中空LOW-E玻璃幕墙系统
呼吸式幕墙由内外两层玻璃幕墙组成,与传统幕墙相比,它的最大特点是由内外两层幕墙之间形成一个通风换气层,由于此换气层中空气的流通或循环的作用,使内层幕墙的温度接近室内温度,减小温差因而它比传统的幕墙采暖时节约能源42%-52%;制冷时节约能源38%-60%。另外,由于使用了双层幕墙,使整个幕墙的隔音效果得到了很大的提升。
参数比较:
国家节能规范 (常规单层玻璃幕墙) |
星展银行大厦 |
|
外墙系统传热系数U值 |
2.5 W/(m2K) |
1.12 W/(m2K) |
遮阳系数SC值 |
<= 0.40 |
0.15 |


2. 辐射金属吊顶空调技术


辐射金属吊顶空调系统作为一种节能空调,与低能耗绿色建筑结合,能取得较好节能效果。
系统主要通过辐射与少量空气对流的工作方式,以达到制冷和制热的目的。整个系统主要采用循环水系统,通过控制水流温度与流速来控制房间温度,比传统意义上的空调更节能以及达到更高的舒适度要求。
国际上舒适度最高的空调系统:
采用辐射方式避免风冷对流方式 , 吊顶顶部均匀制冷加热,不存在局部冷/热现象。
避免因空调风冷直接吹在身体表面而造成的各类空调病。
密闭水循环方式,避免空调管内清洁等问题。
没有噪音。

采用辐射加少量对流保证人体舒适度最佳环境:
对流 25%
湿度 35%
辐射 40%
国际上能耗最低的空调系统
利用辐射原理,采用有效温度,提高室温2度。有效温度是人体对环境温度感受的一个最有意义参数,是空气温度和封闭房间内物体表面温度的平均值。
使用辐射吊顶空调系统后, 测量到的有效温度要比实际室内空气温低,也就是说在使用辐射吊顶房间内,人体感受的环境温度要比实际室内空气温低2 度。

常规空调:
室内空气温度 = 25°C,
有效温度为= 25.5°C

辐射吊顶空调:
室内空气温度 = 27°C,
有效温度为= 25°C
- 室内空气温度设定比较表:(夏季)
上海地方公共建筑节能规范 |
上海市政府提倡 - |
星展银行大厦 |
≥25oC |
≥26oC |
= 27oC |
- 供回水温度比较:
普通空调系统冷冻水供水温度:7oC。
辐射吊顶空调系统,采用封闭的水循环系统,夏季供水温度16oC,回水温度19oC,大大提升了冷水机组的COP值。经国外测试证实,比普通空调系统节约至少30%以上能耗。
- 传统空调系统需要大量设备机房以及大尺寸规格风管。
辐射吊顶空调系统比普通空调系统占用的空间更少,无需传统空调中使用的大体量风管,节省建筑层高,以及占用更少设备机房资源,风机能耗减少。
能耗比:
对星展银行大厦辐射金属吊顶系统进行Lifecycle 模拟计算,相对普通空调如风机盘管得出如下能耗比:

常规空调系统; 室温以上海市政府提倡的26oC计:

系统参数:
• 风速 > 0,25 m/s
• 噪音 50 dB(A) (风机 + 外界声音)
• 机械置换新风30 m³/h person
• 自然通风 ; 通过开窗
• 双层幕墙间隙的空气带热量进入办公区域
• 室外空气污染(未经过滤)
• 制冷能耗为 157 kWh/m²a
• 二氧化碳排放量 102 kg/m²a
星展银行大厦 室温以27oC计:

系统参数:
• 风速 < 0,15 m/s
• 噪音 35 dB(A)
• 机械置换新风30 m³/h person
• 幕墙封闭
• 无室外空气污染
• 制冷能耗为 116 kWh/m²a (-26%)
• 二氧化碳排放量 75kg/m²a
• 双层幕墙间隙的空气不进入办公区域
在相同低传热系数的情况下:相比传统空调陆家嘴金融中心大厦制冷能耗降低26%,二氧化碳排放量减低26.5%。
3. 空調熱能回收系統
星展银行大厦办公区的排风主要集中在各楼层的卫生间,通过垂直的排风管及主屋面的排风机排放,而供应新风的新风处理机也位于主屋面,利用了热能回收轮把排风的热能回收到新风中。

项目效益:
星展银行大厦采用外呼吸式幕墙系统加辐射金属吊顶及空调热能回收系统有效的解决了上海陆家嘴金融贸易区长期存在的全玻璃幕墙金融机构大楼使用要求高、能耗大、二氧化碳排放量高的问题。在引进国际金融机构时,最大限度满足金融机构的使用舒适度,降低其在使用过程的费用,建筑国际最高标准的金融大厦,同时大大减低了能耗,相较传统全玻璃幕墙结构大厦节能及二氧化碳排放量减少在26%以上。为建设中国繁荣绿色的金融中心作出了贡献。

China Team - creating & delivering better solutions.
关注微信 :CTEC_2004

关注微博 :http://weibo.com/chinateamcn


