摘要:
本文以哈尔滨市某剧院舞台的消防设计为例,探讨了雨淋系统及水幕系统设置的场所及各自流量的确定,系统持续喷水时间的确定,以及总的消防用水量的确定。
关键词:
剧院 雨淋系统 防火冷却水幕 防火分隔水幕
此项目位于哈尔滨市,其中1号地块总建筑面积872,682平方米,由会展、酒店、办公、商业、公寓等业态组成,属典型的超大型城市综合体建筑群。 其中含有剧院业态,座位数2066,剧院建筑规模属于特大型(根据JGJ 57-2016《剧场建筑设计规范》),剧场的建筑等级为甲级(建筑专业反馈)。其中舞台各区域建筑面积及高度如下:
| 面积(㎡) |
高度(m) | |
| 主舞台 |
768 | 30 |
| 左、右舞台 |
536 | 15.5 |
| 后舞台 |
448 | 21 |
雨淋系统是由开式洒水喷头、雨淋报警阀组等组成,发生火灾时由火灾自动报警系统或传动管控制,自动开启雨淋报警阀组和启动消防水泵,用于灭火的开式系统。
1.1 设置场所
根据GB 50084-2017《自动喷水灭火系统设计规范》(下文简称喷规):4.2.6:
具有下列条件之一的场所,应采用雨淋系统:
火灾的水平蔓延速度快、闭式洒水喷头的开放不能及时使喷水灭火有效覆盖着火区域的场所;
设置场所的净空高度超过本规范第6.1.1条的规定,且必须迅速扑救初期火灾的场所
火灾危险等级为严重危险级Ⅱ级的场所。
根据JGJ 57-2016《剧场建筑设计规范》(下文简称新剧规),术语:
2.0.14 侧舞台:设在主舞台两侧,为迁换布景、演员候场、临时存放道具、景片的辅助空间。
2.0.15 后舞台:设在主舞台后面,可增加纵深方向表演区的空间。
从字面理解意思,后舞台可理解为主舞台的纵向延伸,应也布置有葡萄架,需要设置雨淋系统。
所以,个人认为该剧院的主舞台、左右侧舞台、后舞台均设雨淋系统。
1.2 雨淋流量确定原则
确定了雨淋系统设置场所,再来确定雨淋流量。
主舞台、后舞台(舞台葡萄架)按严重危险级Ⅱ级,喷水强度16L/min.㎡,作用面积260㎡。侧舞台由于无法明确是否无葡萄架,故建议同主舞台、后舞台考虑按严重危险级Ⅱ级。
根据喷规,每个雨淋报警阀控制的喷水面积不宜大于260㎡。可以理解为,如果一个雨淋阀控制的面积过大,势必会造成系统的流量过大,总用水量过大,消防水池容量过大,并带来较大的水渍损失。
那么有人可能会说,那我就划分每个雨淋阀对应很小的喷水面积,那总水量就小了。粗一看,没毛病,目前没有规范对雨淋的喷水面积划分以及长宽比有要求及说明,全靠设计人员自己的理解。再深一步研究,个人认为这种做法也不是很合适,具体原因如下:
划了这么多个喷水面积,一个喷水面积对应一个雨淋阀,雨淋阀数目过多不仅占用建筑面积,还增加系统造价及控制难度。
就算单个喷水面积划小了,总的作用面积还是不能小于260㎡,总水量并不会减少很多。
雨淋系统是开式系统,与水喷雾系统类似,参照水喷雾的响应时间(由火灾自动报警系统发出火警信号起至开始喷水的时间),不应大于45s。根据《自动喷水灭火系统设计手册》,舞台幕布的火焰上升速度0.1~0.2m/s,但水平蔓延速度未提及,根据常识,一般固体火灾的火焰上升速度大于水平蔓延速度,故暂可将舞台的水平蔓延速度取0.1m/s。也就是在45S的响应时间内,火焰水平蔓延了4.5m,所以如果划分的喷水面积过小,其中窄边过小,小于4.5m(下文有图表示),则会有多个喷水面积对应的雨淋阀需同时开启的情况,可能反而会增加总用水量。
由上可知,喷水面积的划分与雨淋流量息息相关,不宜过大也不宜过小,需同时开启的相邻几个喷水面积之和建议稍大于260㎡,(刚好260㎡很难做到)对系统总用水量最有利,同时需兼顾各喷水面积窄边不能太窄,建议大于4.5m。
1.3 喷水面积划分及雨淋水量
确定了原则,我们开始划分喷水面积。

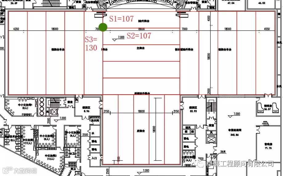
假设上图中绿点处着火,相邻三个区域报警阀组同时启动,作用面积S=S1+S2+S3=344m2>260㎡,满足要求。
雨淋水量Q=16*344/60=92L/s,考虑适当余量,取100L/s。
水幕系统是由开式洒水喷头或水幕喷头、雨淋报警阀组或感温雨淋报警阀组等组成,用于防火分隔或防护冷却的开式系统。
2.1 设计场所
本剧院建筑在舞台口,也就是主舞台与观众的之间的台口做了金属防火幕,后在当地消防局的要求下在主舞台与后舞台之间也做了金属防火幕。
整个舞台是一个防火分区,用防火墙与四周的化妆区、候演区、机房区等隔开,防火墙上采用甲级防火门。

1)台口(舞台面向观众的开口,图示1处)根据建规8.3.6条,下列部位宜设置水幕系统:
特等、甲等剧场、超过1500个座位的其他等级的剧场、超过2000个座位的会堂或礼堂和高层民用建筑内超过800个座位的剧场或礼堂的舞台口及上述场所内与舞台相连的侧台、后台的洞口;
应设置防火墙等防火分隔物而无法设置的局部开口部位;
需要防护冷却的防火卷帘或防火幕的上部。
注:舞台口也可采用防火幕进行分隔,侧台、后台的较小洞口宜设置乙级防火门、窗。
看到这里,相信大家跟我有一样的疑问:1)需要冷却的主语是谁?是所有的防火幕上部都要设水幕还是需要冷却的防火幕才需要设水幕?不得不说中国文字的博大精深。在此处无解,只能转战剧规,根据新剧规8.1.1 大型、特大型剧场舞台台口应设防火幕条文解释:台口设防火幕,并设水幕保护。
根据此条,台口的防火幕应设水幕系统。再来看一条规范:
8.3.6剧场内水幕系统的设置应符合下列规定:
大家注意没有,这条规范有没有逻辑不通?在我冥思苦想之际,发现规范错了,(可能我下载的是个假规范),这个“未”字是多余的,应该去掉!有旧剧规为证!
根据JGJ 57-2000《剧场建筑设计规范》(下文简称旧剧规)
8.1.1 甲等及乙等的大型、特大型剧场舞台台口应设防火幕。 超过800个座位的特等、甲等剧场及高层民用建筑中超过800个座位的剧场舞台台口宜设防火幕。
8.3.4剧场内水幕系统设置应符合下列规定:
一样的内容,只是新规范多了一个未,导致逻辑不通且造成误解,故认为,台口需要设防火幕,防火幕上部设防火冷却水幕。
2)主舞台与后舞台之间(图示2)
还是看建规:
根据建规8.3.6条,下列部位宜设置水幕系统:
1.特等、甲等剧场、超过1500个座位的其他等级的剧场、超过2000个座位的会堂或礼堂和高层民用建筑内超过800个座位的剧场或礼堂的舞台口及上述场所内与舞台相连的侧台、后台的洞口;此条规范其实讲的是防火分隔水幕。
后台并非是后舞台,根据新剧规术语,后台是指演职人员准备演出的专用区域,我理解应该是舞台以外的化妆间、候演室之类。此条规范并未要求主舞台与后舞台之间设置水幕。
再者,整个舞台是一个防火分区,舞台消防的目的主要是隔离舞台与观众,舞台内部再设防火分隔水幕的意义不大。
但是,现在按当地消防局的意见,建筑在主舞台与后舞台之间设了金属防火幕布(下文会分析是否真的需要设金属防火幕布),那么这个防火幕布上方需不需要设防护冷却水幕。此处无解,我们再转战剧规中的对防火幕的规定。
旧剧规:
6.1.9.1 后舞台与主台之间的洞口宜设防火隔音幕。
新剧规:
6.1.9 后舞台台口宜设隔音幕。
条文解释:加装隔声幕是为了隔离演员跑场时的噪声传向主舞台和观众厅。此幕也可以做成隔声防火幕。
注意,新规范已经没有强制要求设防火隔音幕了,而且本舞台本身为一个防火分区,内部舞台区域之间再划分防火分区意义不大,按规范角度,是无需设置防火幕的。既然当地消防局要求在主舞台与后舞台之间设金属防火幕,则我们认为当地消防局认为此处火灾严重危险性等同于主舞台与观众之间的台口,为一视同仁,建议此处金属防火幕布上部也设防护冷却水幕。
3)主舞台与侧舞台之间(图示3、4)
当地消防局要求主舞台四周做四处水幕,其中主舞台与侧舞台之间是防火分隔水幕,主舞台口以及主舞台及后舞台之间是防护冷却水幕。当然从严设计肯定是没问题,但是是否真的有必要,我们从规范角度和实际使用情况讨论:
规范角度:
建规8.3.6条,下列部位宜设置水幕系统:
特等、甲等剧场、超过1500个座位的其他等级的剧场、超过2000个座位的会堂或礼堂和高层民用建筑内超过800个座位的剧场或礼堂的舞台口及上述场所内与舞台相连的侧台、后台的洞口;
新剧规:
8.1.4 舞台区通向舞台区外各处的洞口均应设甲级防火门或设置防火分隔水幕,运景洞口应采用特级防火卷帘或防火幕。
新建规实施时间2015年,新剧规2016年,新剧规中已经讲明是舞台区通向舞台区外的各处洞口,主舞台、侧舞台、后舞台均是舞台区的一部分。那么有人可能会说了,也许侧舞台是运景的呢,又没做防火卷帘又没做防火幕,所以要做防火分隔水幕。那我们来了解一下防火分隔水幕的适用条件,根据《喷规》,防火分隔水幕的喷水点高度≤12m,而本舞台侧舞台与主舞台之间的洞口已达15.5m,即使采用了防火分隔水幕,也会因为喷头设置过高,导致平均喷水强度降低,达不到防火分隔的效果。
实际使用情况:
主舞台、侧舞台、后舞台均采用了雨淋系统,当任一处着火时,雨淋均启动喷水,已起到有效灭火及分隔的作用,水幕系统同雨淋类似,也是开式系统,此处再加水幕,实际意义不大。
故本人认为本项目中主舞台与侧舞台之间无需设置防火分隔水幕,当然实际设计需以当地消防局意见为准。
2.2 系统持续喷水时间
根据喷规,雨淋系统的持续喷水时间按1h。
水幕的持续喷水时间不应小于系统设置部位的耐火极限要求,舞台为一个防火分区,故主舞台与观众之间的防火幕(图示1处)为防火分隔,耐火极限应为3小时,故此处防火幕上部的水幕持续喷水时间也取3小时。
主舞台与后舞台之间的防火幕(图示2处)并不要求其具有防火分隔的作用,所以耐火极限也无需达到3h,此处水幕用于一个防火分区内部,建议采用1h。
同理,如果按消防局意见在主舞台与侧舞台之间(图示3、4处)设防火分隔水幕,由于是一个防火分区内部的水幕,也建议采用1h。
此消防水量仅针对自动喷水灭火系统,不涉及消火栓用水量。
3.1雨淋用水量
雨淋流量Q=100L/s(参照上文1.3小节),
雨淋用水量为100*1*3.6=360m³
3.2 水幕用水量及总用水量
1)若按本人理解,主舞台与侧舞台之间无需设水幕,
则消防水量为同时开启的雨淋阀的流量之和+舞台口的水幕(2.1中的1处)流量,
舞台口处的开口长为20m,防护冷却水幕流量Q=1L/(s.m)*20m=20L/s
水幕用水量为20L/s*3h*3.6=216m³
总用水量V=216+360=576m³
2)若按消防局规定,主舞台四周均设水幕,如图所示。

那么同时开启的应为两个雨淋(对应喷水面积S1、S2)+水幕1(舞台口处水幕)+水幕2(主舞台与侧舞台之间水幕)。
注意,此时雨淋阀的喷水面积S1+S2=214㎡<260㎡,应重新划分,由于本文篇幅有限不再赘述,作用面积取300㎡。
Q=300*16/60=80L/s,V1=80*1*3.6=288m³
水幕1同上小节,V2=216m³水幕2
此处开口长24m,防火分隔水幕Q=2*24=48L/s,V3=48*1*3.6=173m³
总用水量V=288+216+173=677m³
注:当地消防局要求舞台水量为主舞台雨淋水量+四周所有水幕水量之和。本人认为不存在四处水幕同时开启的可能性,四处水幕同时开启固然看起来更加安全可靠,但导致消防水池容积增加,造成浪费,且对地下室结构荷载、建筑面积有一定影响。
此处也欢迎各位一起讨论。
本文从实际剧场舞台案例展开,探讨了雨淋系统及水幕系统设置的场所及各自流量的确定,系统持续喷水时间的确定,以及总的消防用水量的确定。剧场舞台的消防系统最终需当地消防局认可。

卓展话题主讲人简介:



