一、机电问题的服务范围:
1、 医疗机电系统
• 洁净空调系统(包括手术室、ICU、NICU、CSSD、净配中心等有洁净要求的区域)
• 医疗RO纯水系统(血液透析、实验室、CSSD、ICU等)
• 医用气体系统(包括医用氧气、医用真空、医用空气、手术专用气体、麻醉及呼吸废气排等)
• 磁屏蔽和辐射防护工程(包括核磁共振、CT、X-Ray、DSA、ERCP等)

2、 医院项目机电系统的关键考虑
1)医院选用的标准
2)医疗设备的技术配合
3)电系统容量的选择
4)医院的流线垂直交通设计
5)不同功能空调的医院分区
6)给水和排水的特殊需求
7)电气中的隔离接地系统
8)不同档次的弱电智能化系统
9)医疗气体的多种形式
10)多维度的物流系统
二、医院项目服务内容
1、 选用的医院标准


2、医疗设备的技术配合
配合项目的需求,与院管方沟通预留医疗设备所需要的机电系统信息:
3、医疗设备的技术配合 – RDS

4、医疗设备的技术配合

1)大型医疗设备的运输通道路径、对净高的要求,与周边有影响物体的间距(例如:地铁)
2)医疗设备维护所需要的空间高度(例如:MRI补充液氦)
5、机电系统容量的选择
1)考虑用户的需求:针对不同的客户对象,结合医院各部门的需求信息来综合考虑机电系统的参数选择,需求满意率提升30%。
2)考虑运营的能耗费用:过大的容量导致能耗损失增大,物业运营的费用增加;设计时应同步考虑运营的状况,系统负载率控制在70% ~ 80%左右,同时兼容紧急状态下的冗余,减少设备投资至少几百万。

通过软件模拟,对全年8760小时的冷热负荷进行逐时分析,配合净化空调的容量,进行冷热源机组的选配。

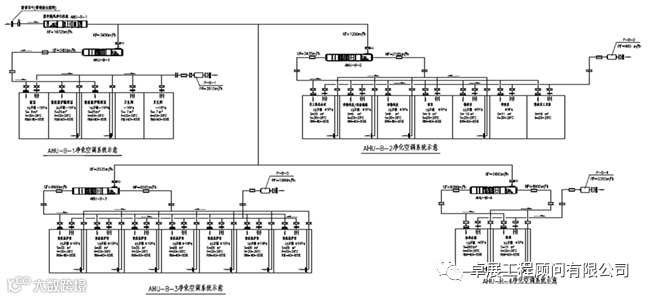
6、 空调分区
1)洁净空调区域:手术室和重症监护区;产房,剖腹产室
2)正负压区域:中心消毒供应室;检验实验区;隔离区域;内窥镜洗镜室
3)恒温恒湿区域:药房;影像科重要检查区域



3)需要对各区域的密封性、送风环境压差及过渡等都需要全盘考虑与调整

机电设备进行调试外,还需要装饰材料 / 医疗设备 的配合,以满足压差的控制。
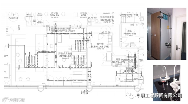
7、给水和排水的特殊需求
需要在LAB、血透、静配中心、CSSD、内镜中心、牙科、手术区等区域提供满足水质标准的医用纯水。医用纯水主要包含:实验用水、血透用水、清洗用水及冲洗用水。



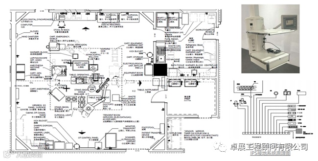
8、电气中的隔离接地系统 – 手术室

9、不同档次的弱电智能化系统



10、医用气体气源选择的重要性
• 医用气体供应系统是医院运营过程中重要的生命支持系统:
1)氧气供应源主要包含医用液氧(液氧储罐)、氧气汇流排(杜瓦罐或医用氧气钢瓶)及医用分子筛制氧机供应源。医用液氧储罐较适用于大中型医院。医用氧焊接绝热气瓶(或杜瓦罐)汇流排适用于中、小型医院。医用氧气钢瓶汇流排通常作为医院的备用氧源或应急备用氧源,也可作为小型医院的主要氧源。医用分子筛制氧机,因其制备氧气的质量受到一定的局限性,初投资高,综合成本是液氧站约2倍,仅作为小型医院或城市供氧源缺乏的地区使用。
2)介于液氧供应源初期投资较低,并可由专业公司进行运营维护,根据本项目定位,作为大型高端综合医院考量,同时医院位于大型城市,市场液氧供应较充沛,建议院区采用液氧站供应源形式。
3)氧气储备的考量:建议适当考虑加大,规范要求主气源宜设在满足一周用氧量(建议采用此数据),最低不低于3天用氧量,备用气源储备24 小时用氧量,应急备用气源应保证生命支持区域4小时以上用氧量。

11、医用气体系统中杀菌消毒重要性
• 真空吸引是新冠病人重要医疗设施,由于痰液里含有病人病毒,真空吸引泵房成为高浓度病毒聚集地,需要特别对待:
2)在医用真空泵组的选用上,优先选用无油旋齿式真空泵。真空泵房内建议设置废液处理装置及细菌处理装置。
3)卫健委要求:水环式真空泵进行整改,泵房内应长期始终进行严格消毒,真空泵排气口和透气口应做消毒处理设备。水环真空泵的排水应经污水处理合格后排放。
4)实际上即便增加过滤器,由于冠状病毒颗粒只有80~120nm,完全无法过滤,需要使用高温杀死,油环真空泵可达80~120度高温。另外由于真空泵启停会导致刚运行时温度较低,故建议配置为小泵多组。

12、多维度的物流系统

13、新冠病毒对机电系统的影响
• 为应对新冠病请,负压病房需考虑配置更多,设计要点如下:
1)净化空调机组采用三级过滤,送⻛机组配置G4+F8过滤装置,室内送⻛⼝采⽤内置⾼效过滤器送⻛(火神山医院采用H13高效过滤器);
2)采用全新风系统,即全送全排,换气次数10~15次;
3)排⻛机组配置G4+F8+H13过滤装置,排风机组一用一备;
4)合理的压⼒梯度-10Pa,-15Pa,-20Pa,病房内污染空⽓不外溢,室外污染空⽓不侵⼊,实现静态隔离;
5)采⽤上送侧下排⽓流组,⽓流⽅向单⼀不紊乱,流经病人的空气不经过医护人员;
7)排水系统与其它区域分开设置,独立的污水处理池和化粪池,并设加药消毒装置;

14、配合设计工作的进行

15、医院运营的回馈

下期预告:
