(外观照片请具体咨询我们)
物件信息
售价: 5680万日元(含税)≈359.90万RMB
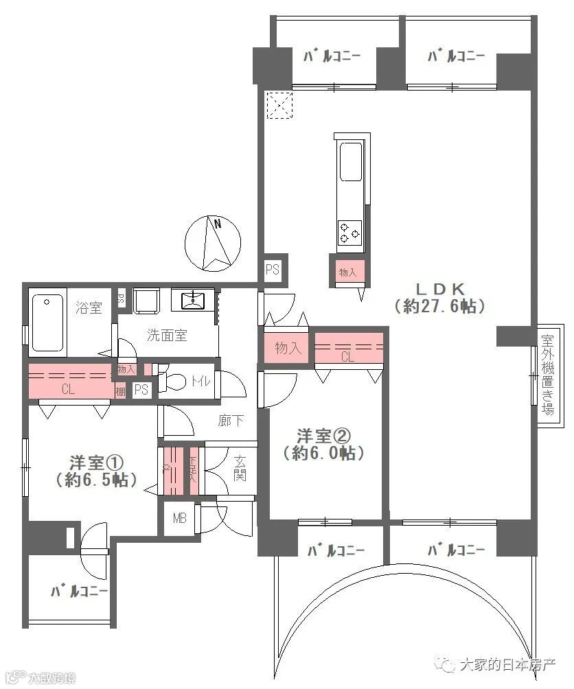
专有面积: 91.94㎡
阳台面积: 14.35㎡
楼型 高级公寓
楼层 7楼/11楼(挑高式样)
户数 2LDK
区域 大阪市中央区
地址 南船場1丁目
建成 2001年
管理费 15450日元/月
修缮金 12410日元/月
产权 永久所有权
构造 钢筋混凝土
核心卖点:
1.本物件距离大阪市核心商圈—心斋桥,仅需步行10分钟,购物、文娱休闲、尽享都市中心的便利生活。周边商业配套齐全,适合多种需求的自住。
2.本物件外观为混凝土现代造型,高端前沿,新耐震设计。距离最近车站【堺筋本町】站步行仅需5分钟,车站至公寓楼途中,超市、银行、邮局、公园等配套设施遍布,周边生活环境非常便利。
3.本物件地处7楼,超大挑高层客厅,南北通透房型,并且罕见附带南北三处阳台,采光和通风极佳。全新翻新的高性价比物件,350万人民币出头即可拥有大阪最中心的都市居住生活。
区域优势:
中央区作为大阪的中心地区,充满着日本传统风情,更作为大阪的经济文化中心吸引着各方宾客。是充满魅力与活力的生活区。西北部以御堂筋为中心,云集了金融机构、综合商社等众多大公司的本部。东北部是以大阪城公园和难波宫遗迹公园为主的都市绿洲。南部是以心斋桥、道顿崛为中心的商业街,并且有黑门市场,美国村等处吸引着国内外游客前来观光体验。在东南部的中寺、谷町附近有很多与近松门左卫门和井原西鹤有关的的寺庙和神社,有着浓厚的历史底蕴。国立文乐剧场,作为以人形净琉璃为首的京都,大阪的艺能据点,对关西文化的振兴起了重要的作用。
交通路线:
大阪市营地下铁堺筋线 「堺筋本町」步行5分钟
户型图

周边地图

路线图

室内图片








周边环境



今天房产君推荐给大家的房子,可还满意?
其实房产君也汇集了更多优质房源,集合在这款方便实用的微信小程序内,点击图片即可到达,快来寻宝哦!
日本投资
我们是认真的



