南禅寺 京町屋
售价: 5180万日元≈335.61万RMB
专有面积:80.61㎡
楼型 京町屋(全新装修)
楼层 2层
房间数 3LDK+庭院
电梯 无
区域 京都市左京区鸟居町
改装 2019年9月
土地面积 86.11㎡
建蔽率 60%
容积率 200%
产权 永久所有权
构造 木造
核心卖点:
1.此京町屋位于京都市左京区,被多处景点围绕。距离南禅寺步行10分钟,京都动物园、八坂神社均在步行圈内;离最近车站【蹴上】步行10分钟,交通便利的同时,避开了吵闹的景点商业街,可谓闹中取静。同时位于京都威斯汀酒店的对面,就餐环境也是相当优秀。
2.本物件为木造2层建筑,改装出自名家设计师之手,保留了古町屋的风格同时,卫浴等功能区做了现代化改装,适宜起居生活。一楼私家内庭配以落地窗,适合静坐冥思;三间客室分不同风格的洋室、和室房间,满足不同人群的需求。同时考虑到运营的便利,玄关处设置了(帳場),符合京都民宿法调整之后的改造要求,运营省心。
3.本町屋已经配好全套家具家电,并且附带365天民宿运营牌照,同时提供包租运营服务,一站式购房投资体验。
分两种运营模式:
1)包租运营,回报率5%,收益稳定无风险;
2)自运营,回报率高达11.7%,详情请参看下表:

区域优势:
左京区位于京都市内的东北部,为第二大区,也是京都11区中人口密度最低的区域。南部主要是住宅区和文教区,北部是山地和树林。区内文艺气息浓郁,大量颇具特色的咖啡馆和书店汇聚于此。左京区有无数名胜古迹,同时坐落着世界顶级学府——京都大学,人文气息浓厚。左京区不仅是京都最具人文气息的所在,也是体验京都风土人情的理想之地。
交通路线:
地铁东西线「蹴上」步行10分钟
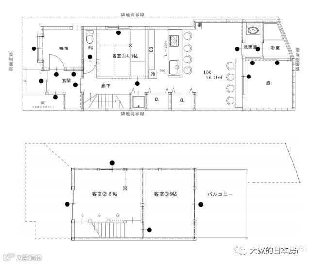
房间格局图


交通路线图

参考图片












周边环境 南禅寺

周边环境 京都市动物园

周边环境 祇園白川

周边环境 八坂神社

今天房产君推荐给大家的房子,可还满意?
其实房产君也汇集了更多优质房源,集合在这款方便实用的微信小程序内,点击图片即可到达,快来寻宝哦!
日本投资
我们是认真的



