点击上方蓝色文字关注福蘭
位置:东京都涩谷区神宫前全新装修,距离JR山手線「原宿」駅 徒歩10分,東京メトロ副都心線「北参道」駅 徒歩6分,都営大江戸線「国立競技場」駅 徒歩10分,JR中央線・総武線「千駄ヶ谷」駅 徒歩11分;
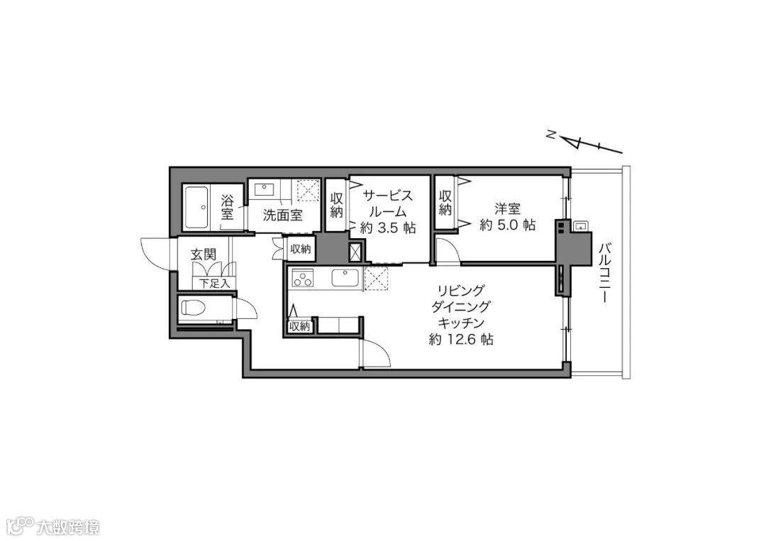
面积:2007年2月建,4层共22层,1SLDK,房产面积57.20平米;
价格:8998万日元(约495万人民币);












日本房产需要缴纳的相关税费

通常在日本买房所要花费的资金=房子本身的价格+买房时所花的各项费用所组成,各项费用约为房款的6%-8%。如果你想买一栋2,000万日元(约120万元人民币)的房子,需要准备2,120万-2,160万日元(127万-129万元人民币)。

福蘭株式会社
—Start From FutureLand—

