点击上方蓝色文字关注福蘭
位置:東京都港区六本木,距离東京メトロ南北線「六本木一丁目」駅 徒歩6分,都営大江戸線・東京メトロ日比谷線「六本木」駅 徒歩7分,都営大江戸線・東京メトロ南北線「麻布十番」駅 徒歩10分;
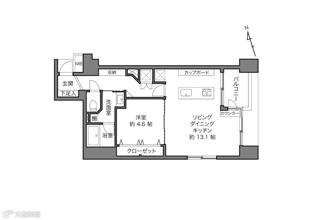
面积:1998年1月建,7层共8层,1LDK,房产面积48.69平米,阳台面积3.58平米;
价格:7480万日元(约448万人民币);

















日本房产需要缴纳的相关税费

通常在日本买房所要花费的资金=房子本身的价格+买房时所花的各项费用所组成,各项费用约为房款的6%-8%。如果你想买一栋2,000万日元(约120万元人民币)的房子,需要准备2,120万-2,160万日元(127万-129万元人民币)。

福蘭株式会社
—Start From FutureLand—

