点击上方蓝色文字关注福蘭
位置:东京都大田区大森,距离JR京浜東北線「大森」駅徒歩5,京急本線「大森海岸」駅徒歩14分;
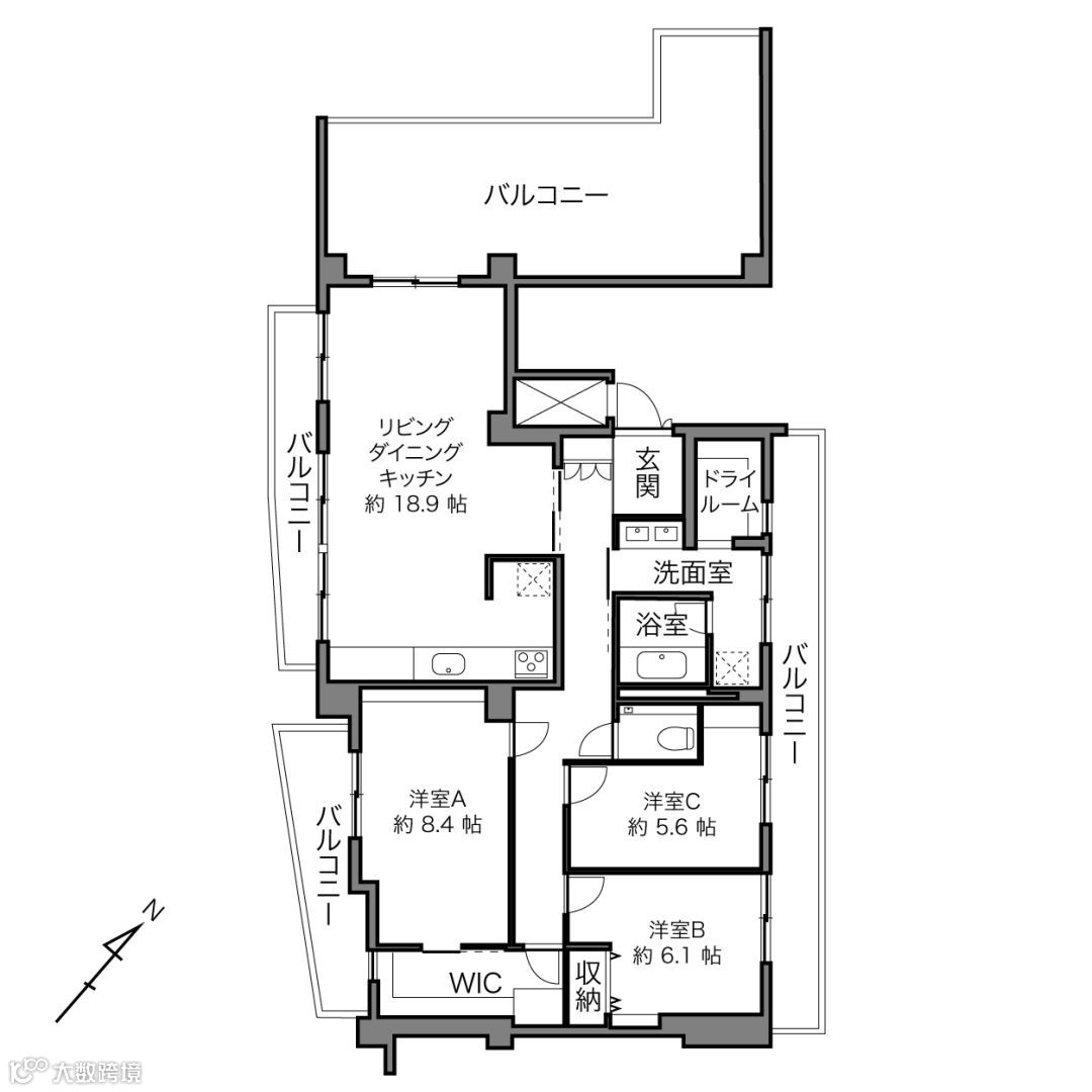
面积:1983年4月建,鉄筋コンクリート造,5层共5层,3LDK+WIC,房产面积101.69平米,阳台面积46.89平米;
价格:8980万日元(约538万人民币);

















日本房产需要缴纳的相关税费

通常在日本买房所要花费的资金=房子本身的价格+买房时所花的各项费用所组成,各项费用约为房款的6%-8%。如果你想买一栋2,000万日元(约120万元人民币)的房子,需要准备2,120万-2,160万日元(127万-129万元人民币)。

福蘭株式会社
—Start From FutureLand—

