【项目名称】: 墨尔本 Premier Tower 精装公寓
【项目区域】:墨尔本CBD
【项目规模】:78层780套公寓
【停 车 位 】:116个
【公共设施】:酒吧电影院、私人宴、会厅、健身房泳池等。
【开发商】:Fragrance GroupLimited
【设 计 师 】:Lenberg Fraser 全球最顶尖的设计公司之一
【项目产权】:永久产权
【交房时间】:预计2020年
【项目地址】:134-160 Spencer St, Melbourne, VIC,3000
确实有这么一栋正在建造的地标大楼,它的外观灵感来源于我们的女神Beyoncé!
而这栋冉冉升起的大楼,就在我们非常熟悉的 Southern Cross 南十字星火车站边上。


众所周知,Southern Cross是墨尔本机场大巴Sky Bus的CBD唯一的目的地。
所以对很多人来说,这栋Beyoncé大楼,会是很多人对墨尔本的第一印象也不为过。

这栋楼就是被称为墨尔本女神小蛮腰的--
而他的灵感,则源于女神的下面这个MV。





独特的外观设计让Premier Tower的户型图仿佛都充满了生命。

Premier Tower 位于墨尔本CBD南十字星火车站旁Bourke St和Spencer St的交界处。
紧靠墨尔本南十字星火车站交通枢纽,门口是Sky Bus机场大巴直达墨尔本机场。
向南400米可达墨尔本著名的雅拉河、墨尔本皇冠娱乐城和墨尔本会展中心。
往北400米可达旗杆公园Flagstaff Garden。
景色优美,漫步之中,宛若墨尔本的中央公园。项目楼下美食林立,超市繁多,生活极其便利。

墨尔本CBD位于整个大墨尔本地区的中心,成立于1835年,距今有180多年的历史。
根据2016年的人口普查,CBD的人口为47,285,占地约6.2平方公里。
墨尔本CBD是维多利亚的政治商业和文化中心,同时也是世界著名的旅游城市,每年接待8230万人次的国内外游客。

墨尔本下一个十年最受瞩目的项目之一,将通过CBD以西的Sunshine枢纽连接墨尔本和机场。
真正意义上将墨尔本转变成一个有铁路连接机场的国际化的大城市。

Victoria Market Redevelopment
140年历史的维多利亚女皇市场将迎来翻新,政府投资2.5亿澳元进行逐步升级重建。
提升“维妈”的承载能力并打造一个位于墨尔本CBD北部的综合生活中心。
作为整个大墨尔本的心脏,墨尔本CBD承载的墨尔本的发展和未来。
根据权威数据的预测,墨尔本CBD将在20年内,从5万翻倍跳涨到11万。

随着越来越多公寓建成完工,人口将随之增长。
但在2022年之后,CBD公寓供应量将急剧下降,并且不会再恢复至之前的供应水平,原因是中心已无可供开发大型住宅项目的土地。

楼下86路电车,可达Preston、Collingwood、Northcote。
步行1分钟到南十字星火车站,墨尔本最大的城际交通枢纽南十字星火车站,机场连线直达,是目前连接CBD和机场的唯一公共交通。

98分墨尔本顶尖公校学区
Melbourne University High墨大附中
96分超优质小学学区
North Melbourne Primary School
墨尔本顶尖私校
Hailleybury College City Campus
墨尔本皇家理工大学
墨尔本大学
莫纳什大学语言学校及预科

Southern Cross南十字星奥特莱斯卖场
Coles Market
Higher Ground Café
Flagstaff 旗杆公园
皇冠娱乐中心
墨尔本国际会展中心
雅拉河公园




Premier Tower是由澳大利亚顶尖设计事务所Elenberg Fraser打造,灵感源于Beyoncé碧昂丝的知名MV《Ghost》。
设计师们被极具艺术感的灰色画面所触动,他们从美学角度打破常规,设计出了违背地心引力的曲线,将女性的柔美于摩天大楼的设计完美结合,模糊了艺术与设计的边界,是当之无愧的大师之作。
建成以后,这栋78层的摩天大楼将成为墨尔本展示世界的新名片。

Vue De Monde
Elenberg Fraser于1998年成立于澳大利亚墨尔本,由两位业界顶尖设计师Zahava Elenberg和Callum Fraser主导。
经典作品囊括了我们熟悉的位于Collins Street的Rialto tower的澳洲顶级餐厅Vue De Monde,2016年的Ikebana、2017年的EQ TOWER和Light House等。

PDS集团作为澳大利亚最专业的项目管理方,成功为墨尔本缔造出了无数成功的项目。他们的项目多样化,涵盖从住宅到商业以及工业的所有类型。

Multiplex是澳大利亚T1级别的建筑商,在建筑业拥有统治地位。
总部位于澳大利亚悉尼,专门从事高层建筑、体育场、高端住宅、混合用途、教育、健康和民用基础设施。

五星级酒店般的住户大堂,酒店和住户分离

25米室内恒温泳池

仅供最尊贵住户使用的76楼
Premier Club顶级住户俱乐部

简约现代的室内设计

西南朝向的无遮挡海景

大楼分为3个部分,7层以下160套酒店,
48层以下普通住户,48层以上高层住户。

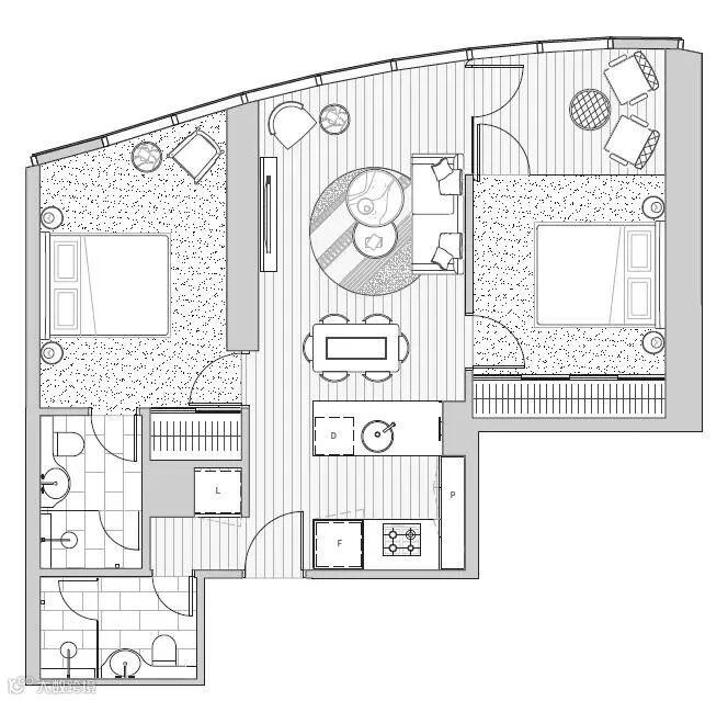
2房2卫、朝东北
室内69.6㎡、阳台6.9㎡、总面积76.5㎡
雅拉河景、皇家植物园
价格$923,060
开发商限时返现价$803,062

1房1卫、朝西南
室内44.3㎡、阳台6.8㎡、总面积55.1㎡
艾伯特公园、菲利普海湾、Docklands海港
价格$708,170
开发商限时返现价$616,108



