点击上方蓝色文字关注福蘭
位置:东京都台东区浅草,距离東武伊勢崎線・東京メトロ銀座線・都営浅草線「浅草」駅 徒歩7分,つくばエクスプレス「浅草」駅 徒歩10分;
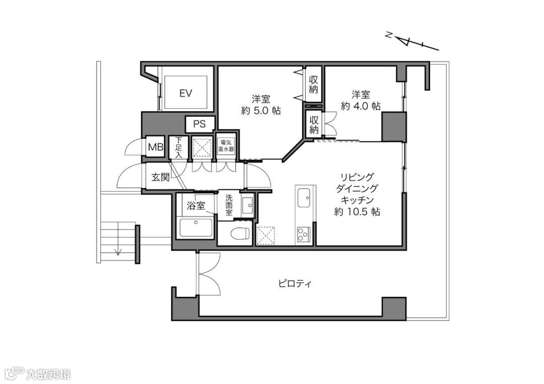
面积:1984年11月建,1层共9层,2LDK+WIC,房产面积46.61平米;
价格:3880万日元(约230万人民币);














日本房产需要缴纳的相关税费

通常在日本买房所要花费的资金=房子本身的价格+买房时所花的各项费用所组成,各项费用约为房款的6%-8%。如果你想买一栋2,000万日元(约120万元人民币)的房子,需要准备2,120万-2,160万日元(127万-129万元人民币)。

福蘭株式会社
—Start From FutureLand—

