点击上方蓝色文字关注福蘭
位置:东京都墨田区押上,距离東京メトロ半蔵門線・東武伊勢崎線・京成押上線・都営浅草線「押上」駅徒歩6分,JR総武線・総武線快速「錦糸町」駅徒歩14分;
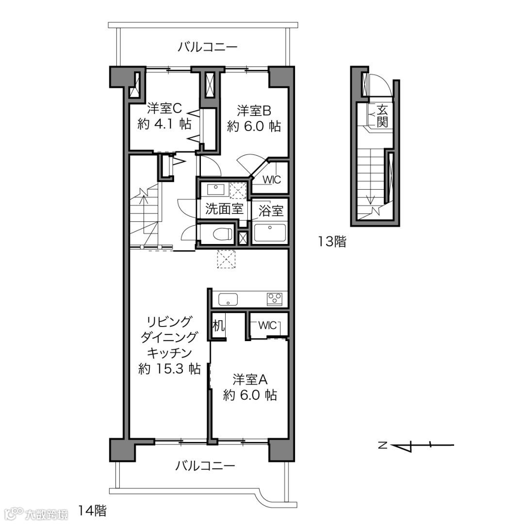
面积:1996年4月建,13、14层共14层,2LDK+WIC+2W+テレワークスペース,房产面积74.20平米,阳台面积17.41平米;
价格:6380万日元(约375万人民币);



















日本房产需要缴纳的相关税费

通常在日本买房所要花费的资金=房子本身的价格+买房时所花的各项费用所组成,各项费用约为房款的6%-8%。如果你想买一栋2,000万日元(约120万元人民币)的房子,需要准备2,120万-2,160万日元(127万-129万元人民币)。

福蘭株式会社
—Start From FutureLand—

