点击上方蓝色文字关注福蘭
位置:东京都练马区春日町,距离都営大江戸線「練馬春日町」駅 徒歩9分,都営大江戸線「光が丘」駅 徒歩12分;
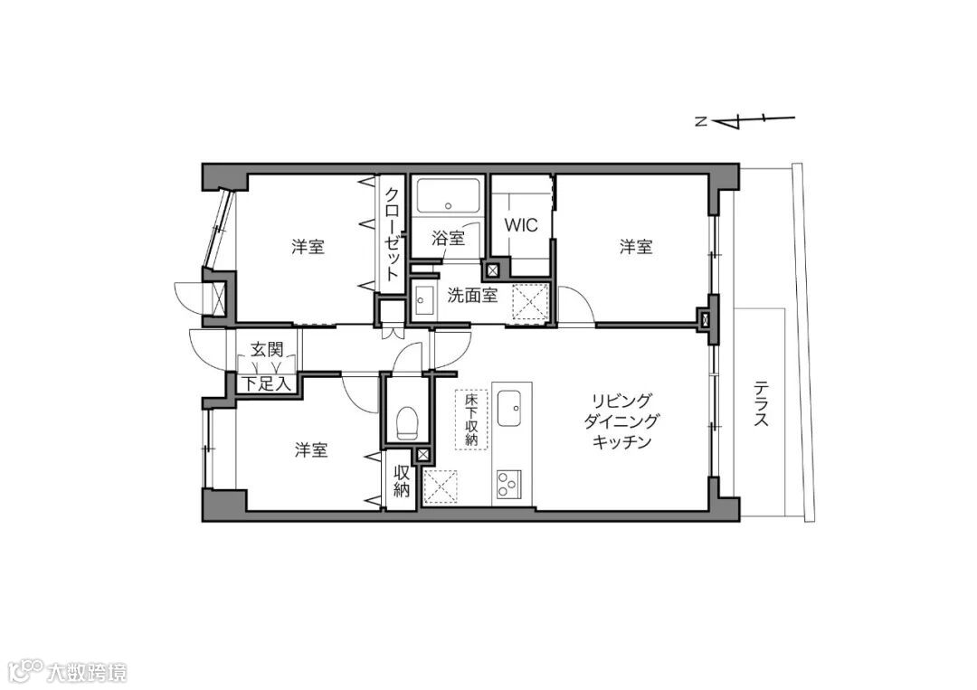
面积:1997年8月建,1层共7层,3LDK+WIC,房产面积64.60平米;
价格:4980万日元(约300万人民币);
















日本房产需要缴纳的相关税费

通常在日本买房所要花费的资金=房子本身的价格+买房时所花的各项费用所组成,各项费用约为房款的6%-8%。如果你想买一栋2,000万日元(约120万元人民币)的房子,需要准备2,120万-2,160万日元(127万-129万元人民币)。

福蘭株式会社
—Start From FutureLand—

