好消息!
人才公寓建设启动啦!
9月17日,一建集团人才公寓建设正式启动。建工集团党委副书记张立新,党委组织处副处长、人力资源部副总经理郑顺,一建集团党委副书记、总裁俞建强,副总裁、总经济师胡建华等领导出席,各基层单位分管领导、人力资源部、团组织负责人以及设计单位、施工单位、运营管理单位相关代表参加。启动仪式由一建集团党委副书记、纪委书记、工会主席黄琪主持。
现场集锦
<< 滑动查看下一张图片 >>
代表发言
装饰事业部党总支副书记、总经理
孙成农代表施工单位发言
物业公司党总支书记、总经理
陈建军代表运营管理单位发言
领导讲话
俞建强对施工以及运营管理单位的表态给予了肯定,并提出了三点要求:第一,要充分认识人才公寓建设重要性。第二,要把人才公寓作为精品工程完成,安居才能乐业。第三,要继续探索实施人才公寓建设的多种路径。
张立新对一建集团人才公寓建设启动表示祝贺,并提出了三点要求:一是要站在深化“不忘初心、牢记使命”主题教育,巩固主题教育成果的高度抓人才公寓建设。二是要着眼集聚优秀人才,打造建工人才高地的战略抓人才公寓建设。三是要坚持高标准、严要求,打造有品质、有温度的人才公寓。
人才公寓外立面
地理位置
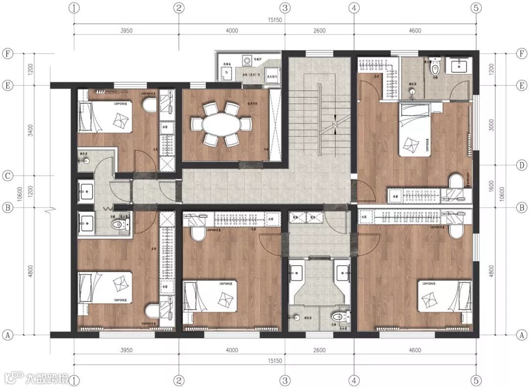
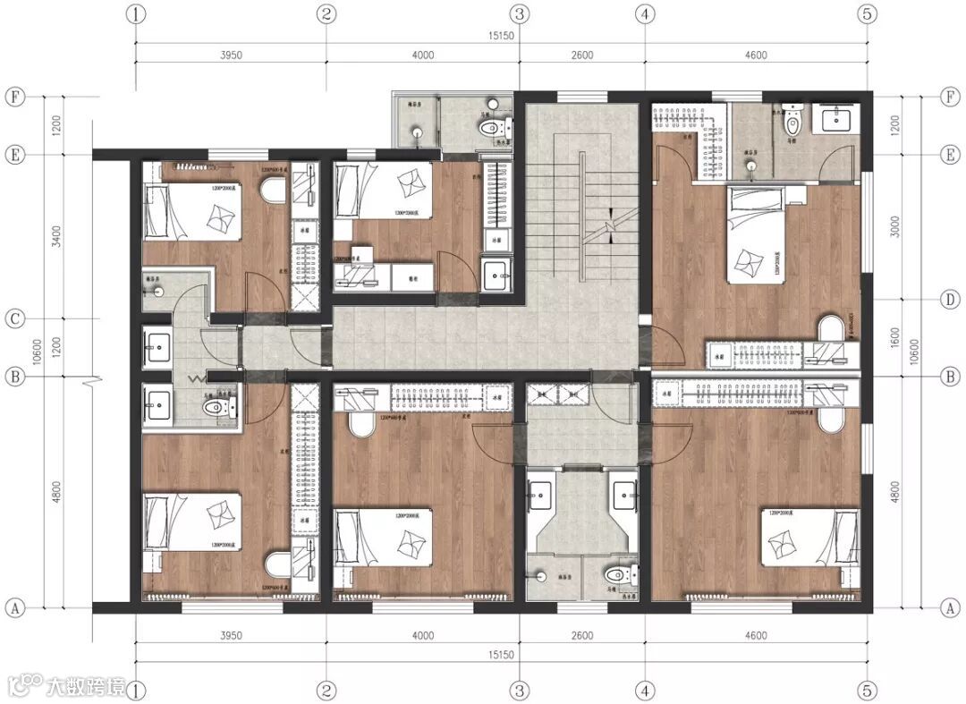
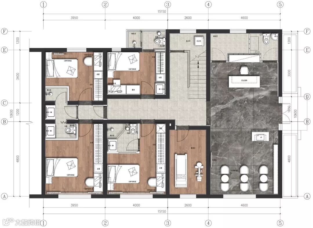
平面布置图
共享空间
温馨小窝
<< 滑动查看下一张图片 >>
一建集团党委把即知即改贯穿“不忘初心、牢记使命”主题教育始终,及时启动人才公寓建设,解决优秀人才的后顾之忧,营造人才干事有舞台、发展有目标、生活有保障的成长环境,并已人才公寓建设为契机,逐步构建多层面、多渠道、多形式的人才服务保障体系。
“栽得梧桐树,引得凤来栖”。人才公寓建设是一建集团加强人才队伍建设的重要措施,是吸引优秀人才的战略性手段,用于一建集团优秀人才的过渡性居住,具有现代化的生活配套设施,明朗、温馨、干净之美,带来真正朴实的生活,生活从此随“寓”而安。我们要以人才公寓建设启动为契机,以更加宽广的思路,更加有力的举措,更加扎实的作风,全力推进人才强企战略,齐心协力创造人尽其才、人才辈出的良好局面,为把一建集团加快建设成为“上海、西南、长三角、珠澳”多区域成熟运营的一流总承包企业提供有力的人才支撑!
资料来源:人力资源部
编辑:吴小勇、孙秋婵、张帆
摄影:于天沁、张志宇

