编者按
“与大师同行”专栏前六期《浦东美术馆的艺术之旅》《打开世界最高的“门”——东方之门》《隈研吾与“南上海之心”》《南京六朝博物馆的光影几何》《前滩中心的旖旎风光》《张江科学会堂的未来之旅》,从不同角度解读了大师的设计理念,展现了作品背后的一建故事。
今天是第七期,微来一建将带大家一同走进来自于福斯特建筑事务所的英国著名建筑师——马丁·卡斯尔的世界,欣赏他的建筑作品——苏河湾中心。
项目概况
由一建集团总承包的苏河湾项目位于静安区苏河湾地区,北临天潼路,天潼路下为正在运行的地铁12号线区间隧道,南临规划的三泰路及历史保护建筑新泰仓库,西临福建北路,东临山西北路,总建筑面积约16.2万平方米。项目包括一栋高200米的42层办公楼(苏河湾中心)、一栋地上4层的商业楼(万象天地)以及3层地下室。
作为苏河湾又一地标建筑,由塔楼眺望,苏州河与黄浦江交汇处、外滩建筑博览群和陆家嘴壮美天际线尽收眼底。其中,200米高的办公楼——苏河湾中心,正是由马丁·卡斯尔设计。
苏河湾项目全景
苏河湾中心
大师简介
马丁·卡斯尔,福斯特建筑事务所(Foster+Partners)合伙人,英国著名建筑设计师。代表作品有:上海世博会阿联酋馆、外滩金融中心等。
马丁·卡斯尔
上海世博会阿联酋馆
外滩金融中心
图片来源:百度
福斯特建筑事务所,世界知名建筑设计公司,由英国建筑设计大师诺曼·福斯特创立于1967年。诺曼·福斯特是第21届普利兹克建筑大奖得主,他特别强调人类与自然的共同存在,而不是互相抵触,强调要从过去的文化形态中吸取教训,提倡那些适合人类生活形态需要的建筑方式。
福斯特建筑事务所代表作品有:苹果总部大楼、大疆总部天空之城、伦敦市政厅等。
诺曼·福斯特
苹果总部大楼
大疆总部天空之城
伦敦市政厅
图片来源:百度
探索苏州河畔新地标的诞生
设计理念
苏河湾中心的设计秉承了建筑设计大师诺曼·福斯特一贯的设计理念,让苏河湾中心与周边滨河景观融为一体,为建筑注入了灵气。通过沉浸式商业、绿地公园与超高甲级写字楼交互交融,古建遗存与新潮商业的融合,苏河湾中心充分融合在城市和公园景观当中。使得“世界级滨水中央活动区”在苏河湾不仅仅是停留在纸上的规划,而成为一种碰触得到的美景。在苏河湾的整体规划中,生态共生不仅仅是一个理念,而是触手可及的一抹绿色。
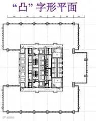
在200米主塔楼的设计上,设计师通过“凸”型体型设计从视觉上表达出双子塔那般独特的效果,其独特的造型象征着苏州河沿岸曾经由工业区和钢铁桥所塑造的视觉特质,也对结构平面布置提出了巨大的挑战。
挑战“偏心”结构,打造“无柱”空间
“无柱”空间是设计师赋予苏河湾中心的核心设计理念,同时也是这栋办公楼最大特色之一。为了实现“无柱”空间这一设计理念,设计师将外框架柱推至外框梁的外侧,形成了有别于常规做法的“偏心”的梁柱节点。
“偏心”结构示意图
针对“偏心”核心筒结构,项目部特别组建了技术攻坚团队,由集团技术专家领衔,与设计团队深入探讨交流,结合集团在超高层建设领域所拥有的先进建造技术,确立了最终的技术和施工方案,确保设计师的设计理念能够完美呈现。
不断深化修正方案
为了实现偏心柱的建造,项目部与专业单位联合组建了专门的钢结构深化设计团队,由资深钢结构专业深化设计人员主导,确保每个单体钢结构的深化设计进度。建造过程中,充分利用Tekla等三维钢结构详图设计软件,通过三维实体建模,并借助BIM技术进行多专业的碰撞检测、界面协调,提高钢结构深化设计效率和质量。
偏性柱构造上的加固设计
同时,考虑到偏心节点在自身形成的过程中,其受力体系更容易产生形变,故在加工制作中焊接的顺序、装车运输中堆放的朝向、设置承托的位置、现场卸车后堆放的位置、起吊安装时吊点的选择、多维度协调的矫正安装等实施过程中都进行了极其严格的控制,确保构件在安装完成前做到最小化的自身形变。
浇筑基础底板
结构封顶
楼层施工
以“匠心”构建“无界”办公空间
设计师想要在苏河湾中心上呈现最大化视觉体验的建筑语言,因而提出了“无界”办公这个概念。“无柱”空间是“无界”办公的前提,但仅凭“无柱”空间是无法达到“无界”办公的。只有注重每一个细节,使得建筑内部空间变得“通透”,才能够使达到“无界”办公。
室内办公空间效果图
楼宇大堂空间净高11米,宽阔明快,出入极具仪式感;办公区域、走廊、电梯厅净高一致,保证舒适尺度。整栋楼宇拥有一层一景的独特景观,高区办公可以眺望一江一河与陆家嘴构成的壮阔景致,低区可以俯瞰苏河湾绿地与苏州河滨、文化古建,能够充分释放空间布局的想象力。
苏河湾中心大堂
为了使环绕塔楼的景观视野最大化,达到全楼360度景观,在设计中留出了10个不设栏杆、从地面到天花板通高的玻璃转角,外立面不锈钢结构框架也特别为转角避让,使每个转角都能观赏到双面景观,最大限度扩大角落视野。
最大限度扩大角落视野
为了带来视线上最大角度的“通透”效果,项目立柱的间距相交与传统项目有所加大,同时得利于柱子向外偏心的设计,在视线范围内几乎不存在阴角面,使得空间感的“通透”上又上升了一个台阶。每一组柱间幕墙仅靠细窄的装饰条进行分割,柱间的相对距离可调节的误差非常小,同时架空底板紧贴直接连接在水平钢梁上幕墙底边,故在空间尺寸上对施工精度要求极高,毫米级的误差就会对整体呈现出的效果大打折扣。
为了最为极致的凸显出“通透”,项目团队在深化设计上花费了大量的心思。首先,在结构上采用了柱体外突偏心的形式,减少了外突的阴阳界对视线的阻断。其次,项目团队摒弃了楼板边缘上翻翻口作为栏杆立脚的设计,直接采用了落地玻璃的设计,凸显了视野的最大化。最后,幕墙单元采用了大面积的玻璃加细窄装饰条的组合方式,在确保使用安全前提下,减少幕墙分割对视野的阻碍。有别于传统幕墙体系在室内设置一排栏杆作为防撞措施,在幕墙设计过程中,项目团队直接将防撞栏杆融入了幕墙单元分割中,进一步减少了物体重叠造成的视觉阻碍。
玻璃不落地效果(左)、玻璃落地效果(右)
幕墙视觉效果
以“恒心”绘出苏州河畔的“那抹绿”
在设计师的蓝图中,虽然拥有钢筋铁骨的身体,但要有一颗与回归自然的心。因此,苏河湾中心从开工伊始便将绿色建筑的标准贯穿始终。作为全国建筑业首家通过EATNS碳管理体系认证的企业,一建集团以“恒心”打造绿色建筑。
首家通过EATNS碳管理体系认证的建筑企业
更优化的强电系统:项目团队采用了分区设置变电所的强电系统,使各区租户低压供电半径大大减少。变电所与其他专业机房布置冲突小,机房较分散,化整为零,便于协调落实,做到低压供电费用最少化。
变电所
更绿色的雨水回收:项目超高层塔楼地下室设置了200m³的雨水收集池和52m³的清水池,屋面雨水回收量达180.6m³/d,其屋面雨水收集量充分满足了车库、绿化道路浇洒以及冲厕的最高日用水量,在建设过程中践行绿色环保理念。
雨水回收装置
更智慧的整合管理平台构建:通过智慧物联网平台,苏河湾中心通过信息集成、远程控制,将消防报警系统、视频监控系统、防盗门禁系统、电子巡更系统等16项内容进行组态联动,达成了各子系统互联互通,统一管控,以更高的管理效率换取更少的能源消耗。
物联网平台
目前,苏河湾中心已获得LEED铂金级认证和绿色建筑二星评级。
LEED铂金级认证
微来一建对苏州河畔新地标的探索之旅在这里告一段落。未来,我们将结合一建集团与建筑大师及其创立的世界顶尖设计公司的强强合作,带大家一同深入了解更多的优秀建筑作品背后的建设故事。
资料来源:第三工程公司
编辑:吴小勇、徐婷婷、蔡文杰

