
走进西湖南邻里中心的施工现场,一抬头就能看到“大干一百天,建成邻里中心”醒目的标语横幅。
自2020开年以来,因为疫情的影响,西湖南邻里中心的工程进度有所延误,5月末又因天气恶劣,持续下雨,工程进度又面临着严峻的考验!
面对紧迫的工期、繁重的建设任务,市建投公司科学调度,统筹安排,组织施工队伍发扬“小雨当冒汗、大雨抢着干、连续阴雨赛着干”的工作精神,昼夜奋战抢工期,咬定目标保进度!
如今,邻里中心迎来了全面封顶的好消息!目前为止,西湖南邻里中心五栋楼全部封顶完毕,接下来将进行内部设施安装及装修工作和外立面施工工作。预计年底交付使用。
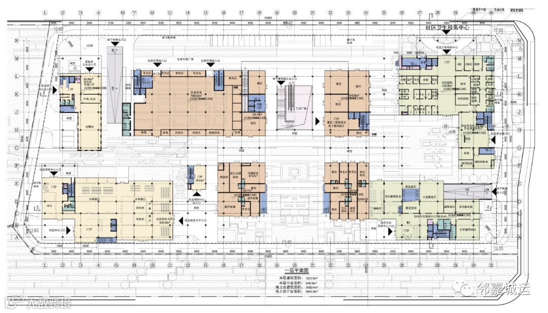
西湖南片区邻里中心项目总投资4亿元,是我市首个综合性邻里中心,建成后将提升西湖新区城市配套服务功能,集聚人气、促进创新创业。




*以上业态布局及面积仅供参考,具体根据招商需求调整。


