近日,由一建集团总承包建设的合肥先进光源国家重大科技基础设施项目迎来重要里程碑节点,周长480米的电子储存环隧道结构顺利“闭环”!
合肥先进光源项目占地约600亩,总建筑面积约9.8万平方米,包含主体建筑、能源中心,以及测试楼、服务楼等配套建筑,从空中俯瞰,犹如一只巨大的“灵眸”。其中,主体建筑是开展光学科学试验的重要载体,主要分为250米直线加速隧道、100米输运线隧道、周长480米的电子储存环隧道、线站大厅、内设备厅及环周裙房等部分。
一建集团项目团队充分发扬“奋斗者精神”,坚持创新引领、科学部署,先后攻克屏蔽混凝土高质量施工、多专业高精度建造控制、结构微振动监测及优化、双套夹层结构施工等难题,顺利完成储存环隧道、直线加速隧道、输运线隧道结构建造目标!
严丝合缝
达到辐射屏蔽要求
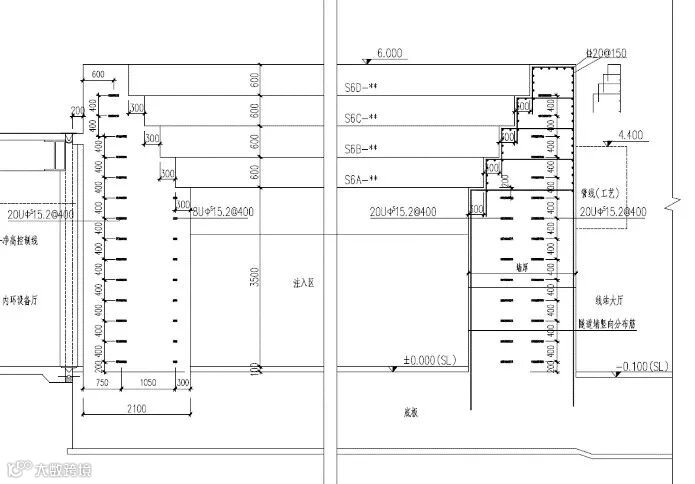
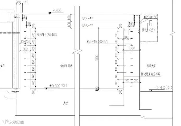
储存环隧道是容纳电子储存束流管及磁铁的核心区域,隧道矩形断面内净高3.5米、内净宽5.8-9.15米,底板厚度1.5米,顶板为多层可开启形式预制板,竖向结构为高度4.4-6米的超厚墙体,最大厚度达2.7米,隧道结构全部采用辐射屏蔽C30混凝土。
注入区(墙体高6米)
非注入区(墙体高4.4米)
储存环隧道墙体剖面图
在储存环的长期服役过程中,为确保产生的电子辐射不逸散至外部,起到辐射屏蔽功能,隧道结构不允许出现任何贯穿裂缝。为实现结构“无裂缝”的控制要求,项目部结合储存环隧道内外墙体形体特征,将内外墙体分成57个施工段,采取“内外反向递推、相向合拢”流水施工步序。
储存环隧道墙体结构施工节点
储存环隧道墙体递推相向合拢施工步序
同时,项目部采用后张法预应力施工,利用无粘结预应力钢筋提供的压应力平衡混凝土收缩产生的拉应力,并根据混凝土测温曲线及混凝土强度形成规律,进行两阶段预应力张拉施工;并充分考虑混凝土收缩及两阶段预应力张拉对超厚墙体变形稳定期的影响,严格执行相邻墙体之间施工间隔≥14天的管控措施,在有效控制混凝土裂缝产生的同时,实现了全环内外墙体不设任何后浇带的目标。
内弧墙内预应力钢筋设置形式
外侧锯齿墙内预应力钢筋设置形式
结合墙体超长、超厚的结构特性,项目部创新设计了钢框木模体系,可同时发挥出钢框体系的高刚度特性和木模体系的保水、保温优势,实现带模养护,有效确保了结构成型质量。
钢框木模体系
此外,针对合肥郊野地区冬季、早春严寒干燥的特性,设置了封闭式防护棚与蒸汽养护装置,确保棚内的温度恒定在15℃,湿度保持在65%,为结构质量保障提供了有力支撑。
养护棚等综合措施
基于多种技术措施的综合高效应用,储存环隧道墙体结构质量优良,未出现任何贯穿裂缝,达到了理想的结构质量控制目标。
储存环隧道墙体结构成型质量
精准无误
确保同步辐射光源实验路径准确
作为合肥先进光源的核心部位,储存环隧道墙体上设置了大量工艺预留套管,以满足高性能同步辐射光源沿储存环的切线方向透过储存环墙体上预留洞口射向实验线站进行科学实验。因此,这些预埋预留套管的精度要求极高,对标的是精密仪器的加工标准。
根据预留预埋套管的不同类型样式、安装高度,项目部对每一种套管都单独设计了型钢支架,全面考虑了混凝土浇捣前后的荷载及变形情况,采用预抬标高等措施,确保所有预留套管的最大绝对变形均≤5毫米。
工艺预留预埋套管及支架
稳如磐石
实现“纳米级”微振动控制
长期服役的大科学装置对微振动极为敏感,对此类建筑主体结构微振动控制提出了“在任意100s内的位移积分RMS值≤30纳米”的严苛要求。
项目部联合工程研究院集成应用最新的传感监测技术,合理布置微振动测点,搭建了微振动监测平台。利用夜间停工间歇,采用满载的渣土车模拟交通荷载,在大底板浇筑、后浇带形成、储存环墙体施工等多个重要节点开展了大量的监测工作,做到了施工全过程的结构振动监测。
微振动监测
依据施工以来各阶段的监测数据,经反复测算验证,项目部在储存环大底板内外采用2.5万立方C15素混凝土换填原软弱土层,以达到减振目的。现阶段,基于对换填后微振动监测数据的分析评估,主体建筑结构微振动已基本满足30纳米控制要求。
减振换填动力特性测试
开创先河
创新双套夹层结构施工技术
在前期直线加速、输运线隧道的施工过程中,项目部针对其特有的双套夹层结构特点,自主研发了模块化行走式顶升平台装备,提出了先梁板、后柱墙的逆作施工工艺,共投入6台装备,历时80天,顺利完成了27次顶升作业,对比传统工艺节约工期约50天。该技术为国内外首次提出,可推广应用至类似直线隧道的夹层结构施工,也为后续储存环隧道的顺利封闭提供了时间保障。
直线加速隧道双套夹层上衬板结构顶升
目前,合肥先进光源项目团队正向着“奋战200天,确保2026年春节前完成五方责任主体验收”的目标努力,全力冲刺幕墙工程、装饰装修等专业工程施工节点目标。
一砖一瓦皆用心,一毫一厘铸精品。项目团队将持续发挥集团总承包管理优势,为确保项目最终竣工而不懈追“光”前行。
7月1日项目开展立功竞赛表彰暨中途推进会
资料来源:第二工程公司
编辑:张艺彬、沈阳

