11月17日晚6:00,由一建集团总承包的东莞华润置地中心地标地块(T1塔楼)项目完成地下室顶板浇筑,成功跃出±0.000线,标志着450米高的T1塔楼正式进入上部结构施工阶段。
东莞华润置地中心位于东莞市南城区CBD国际商务区内核心区位,是集商业、办公、酒店、金融、购物、康体娱乐、服务型公寓于一体的超大型商业综合体项目,由三栋超高层塔楼和高层裙楼组成。由一建集团承建的东莞华润置地中心地标地块(T1塔楼)项目,地上建筑面积221047平方米,建筑高度为450米;地下三层,包括建筑面积8106.16平方米的塔楼区域和建筑面积约9200平方米的裙房区域。项目建成后,将是东莞未来最重要的地标性建筑,将成为勾勒东莞天际线的新景观。
项目效果图
分区分块交替翻浇
破解施工场地受限难题
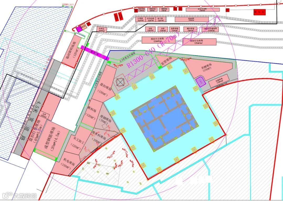
本工程基坑紧贴用地红线,场地北侧、西侧均为地铁换乘通道,东侧以及南侧均为相邻标段同步施工结构,使得本项目施工区域无法形成环通道路。针对本工程深基坑施工量大、场地受限的特点,项目团队依托集团在深基坑施工方面的技术优势和管理经验,坚持策划先行,确定了“裙房结构分区先行,塔楼结构后做,塔楼裙房分区分块交替翻浇”的施工方案,并积极开展材料进场计划推演,将材料堆场进行碎片化管理。
合理划分施工区域
一方面,优化施工顺序,最大程度上利用裙房结构作为材料堆场进行翻浇。将施工区域合理划分为裙房部分的A区、B区、1区、2区、3区和塔楼区,并确定了A、B区→1、2区→3区→塔楼区的施工顺序,巧妙地将前一分区N+1层完成的结构面作为后一分区N层施工的堆场。
另一方面,优化便行钢栈桥位置,待裙房地下室顶板完成达到设计强度后,利用顶板位置的消防车道作为临时道路进行切换,保证塔楼区后续施工的有序推进。
顶板浇筑施工中
此外,针对塔楼B1层层高7米且局部存在夹层区域的结构特点,项目团队先行施工夹层水平结构,为竖向结构施工提供支撑面,确保了7米层高竖向结构一次到顶施工的顺利完成。
通过合理分区分块优化施工,地下室裙房区域已于10月25日完全出±0.000,也使本工程顺利实现了全面出±0.000的节点目标。
1:1样柱试配浇筑
破解超大截面叠合巨柱施工难题
本工程塔楼区域外框分布有16根超大截面叠合巨柱,叠合巨柱截面尺寸为2.8m*2.8m,内部设置直径为1.8m、壁厚45mm的钢芯柱,混凝土等级为C60。此超大截面叠合巨柱在施工中极为罕见,也带来了混凝土质量控制难、全新模板体系、施工工艺要求高等施工控制难点。
叠合巨柱节点模型
对此,项目部联合材料工程公司,开展混凝土原材料来源考察,确定材料性质及外加剂等重要参数,并经过4轮小样试配,最终优选了两组C60配比方案。同时,项目部联合集团工程研究院,组织专家专项讨论混凝土配合比以及模板体系优化设计,经过三轮比选,最终确定用槽钢双拼替代传统钢管背楞,以增加模板围护体系刚度,并选取优质模板以确保混凝土外观成型质量。
全新模板体系
为确定适合现场施工的混凝土最优配合比,并进行模板体系强度验证,项目部在现场1:1还原巨柱结构,进行样柱浇筑,样柱实验结果达设计预期效果,最终顺利确定混凝土配合比以及符合强度要求的模板体系。
试浇样柱
借助BIM模拟推演
破解复杂结构施工难题
本项目钢结构劲性节点十分复杂,主要体现在叠合柱砼梁与钢柱连接节点、叠合柱箍筋与钢梁的连接节点,核心筒钢骨柱与砼连梁、墙体水平筋、箍筋之间的节点等部位。为此,项目部借助BIM建模进行施工模拟推演,反复碰撞一结构与钢结构施工矛盾点,一方面优化了劲性钢柱+梁筋节点,针对梁的不同特性,采用了“双节点(搭接板+接驳器)”的施工方案;另一方面,优化了劲性节点钢筋施工方案,加快了后续钢牛腿加工尺寸的确定,确保了图纸深化及审核进度,为施工生产保驾护航。
双节点施工
劲性钢柱+梁筋节点
本工程塔楼顶板与裙房顶板结构错层极大,错层高度为3.6米,2.5米、2.2米等,为此设计采用了加腋的方式改善水平力的传递,导致±0.000梁板加腋量陡增;同时,由于该项目外幕墙结构造型的特殊性,首层楼板多处设计成凹凸有序的锯齿形造型,导致首层楼板结构造型变化极大。
首层加腋区域
加腋节点
面对加腋截面变大、楼板异型数量变多的特点,项目部果断对加腋节点进行细部施工BIM建模,不断拆分加腋结构的施工分块,确定前后的施工顺序,最大程度上优化了施工方案,极大地减小了施工难度以及可能造成的安全隐患。同时,针对加腋区域大截面以及与室内外相连的因素,采取混凝土分层浇筑方式,在加腋区域优化止水钢板布置方式与位置,巧妙地解决了难度较高的止水构造措施,有效保证了加腋施工质量。
顶板浇筑完成航拍图
资料来源:第七工程公司
编辑:张艺彬、杨倩霞

