大数跨境
0
0

【851.12】移动破碎站UH312 and UH316

【851.12】移动破碎站UH312 and UH316 减速机破碎机图纸设计
2025-10-11
1
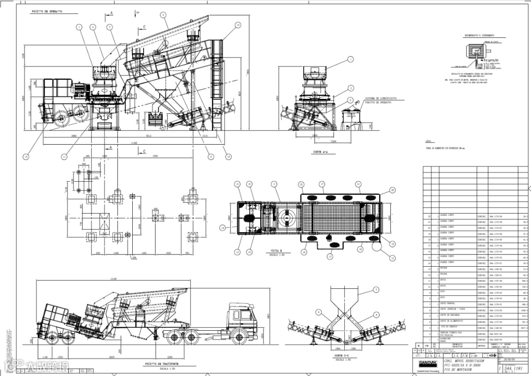
导读:UH312 and UH316

移动破碎站UH312 and UH316

UH312-CH440圆锥破碎机+SA1854四层振动筛

有需求请联系作者

更多详情,请点击http://rexrothreducer.com

或点击下面“阅读原文


【声明】内容源于网络
0
0
减速机破碎机图纸设计
专业提供工程机械上用的减速机图纸(主要针对力士乐、布雷维尼、邦飞利、欧开、ZF等国外品牌的减速机)及破碎机图纸(主要针对美卓、特雷克斯、山特等国外品牌破碎机)的技术图纸指导服务。http://rexrothreducer.com
内容 97
粉丝 0
减速机破碎机图纸设计 专业提供工程机械上用的减速机图纸(主要针对力士乐、布雷维尼、邦飞利、欧开、ZF等国外品牌的减速机)及破碎机图纸(主要针对美卓、特雷克斯、山特等国外品牌破碎机)的技术图纸指导服务。http://rexrothreducer.com
总阅读0
粉丝0
内容97