
双面发电组件的排布设计一般采用横向四排和竖向双排两种方案,本文针对这两种设计方案的差异性进行技经对比和分析。
以林洋光伏双面组件(QP60-TPG 295W)为参照样本,组件出线长度不同,定义两种组件名称,分别为双面组件A(1m线缆x2)和双面组件B(0.3m线缆x2)。以下简称组件A和组件B。

图1 不同出线长度的双面组件
一、单个组串内不同安装方案线缆用量对比
方案一:横向安装
双面组件横向安装两排使用组件A,其组件自带线缆长度为1m或者0.95m,本文按照1m考虑,布置见图2,因组件A出厂线缆较长,所以22块组件串联过程中无需加额外接线。

图2 横向布置的光伏阵列C字型串联接线
方案二:竖向安装
双面组件竖向安装两排时使用组件B,其组件自带线缆长度为0.3m,布置见图3,22块组件串联过程中,在第11块组件与第12块组件串联时,因为组件B自带线缆不够长,所以需要使用1.5m光伏线缆+1对MC4接头。同时工人需在现场制作,因此两个节点会在一定程度上增加系统的故障率和线损(暂不统计)。

图3 竖向布置的光伏阵列C字型串联接线
表1 组件A与组件B不同安装电缆用量对比

表1可以看出,使用组件A横向排布22块,需要电缆等费用合计127.6元,使用组件B竖向排布22块,需要电缆、MC4接头等费用合计47.63元,因此双面组件B竖向排布更经济。
但是仅仅参照1串组件来进行对比不够系统化,下面我们用1台50KW逆变器,按方案1(使用组件A横四安装)和方案2(使用组件B竖二安装)的线缆使用量进行比较。
二、单台逆变器内不同安装方案线缆用量和线损对比
以林洋光伏双面组件A和双面组件B,华为SUN 2000-50KTL-C1逆变器为
参照样本。每22块光伏组件串联接线,三类地区每台逆变器可满接8串光伏组件。
方案一:横向四排
采用8串,每串22块双面组件A,1台50KW华为逆变器,横向四排方案的光伏阵列与逆变器的相对位置关系见图4,图中红色线条为每个组串到逆变器的电缆路径。

图4 横向布置光伏阵列与逆变器位置关系图
方案二:竖向双排
采用8串,每串22块双面组件B,1台50KW华为逆变器,竖向双排方案的光伏阵列与逆变器的相对位置关系见图5,图中红色线条为每个组串到逆变器的电缆路径。

图5 竖向布置光伏阵列与逆变器位置关系图
以上两种组件排布形式对应的光伏专用电缆用量与电压降损失情况见表2:
表2 电缆用量和电压降损失明细表

备注:电缆长度、电压降与光伏阵列和逆变器相对位置条件有关。本表数据为图4和图5布置情况下的理论值。
表3 电缆用量和电压降损失对比表

表3可以看出,使用双面组件A横向四排设计的50KW系统,所需光伏电缆材料费为1960.40元,使用双面组件B竖向二排设计的50KW系统,所需光伏电缆材料费为1216.24元。由此可见,使用双面组件B的竖二方案在线缆方面优势明显。另外,以上两种不同的方案排布,与电缆用量的差异相比,电压降损耗值均在可接受的范围之内。
但是仅仅参照线缆成本是不全面的,我们需要考虑组件横向安装和竖向安装分别使用的支架用钢量,全面分析哪种方案更经济合理,下面按照以上两种方案以1兆瓦电站容量设计,分别对比横向安装和竖向安装的支架用钢量。
三、1MW双面电站不同安装方案支架用钢量对比
方案一:横向四排
采用20台50KW华为逆变器,3520块双面组件A,横向排布,见图6。檩条沿着光伏组件长边横向布置,见图7。
以泗洪地区为例,结合当地的风压及雪压条件计算,该方案支架用钢量为44t/MW。

图6 方案1支架平面布置图

图7 方案1支架详图
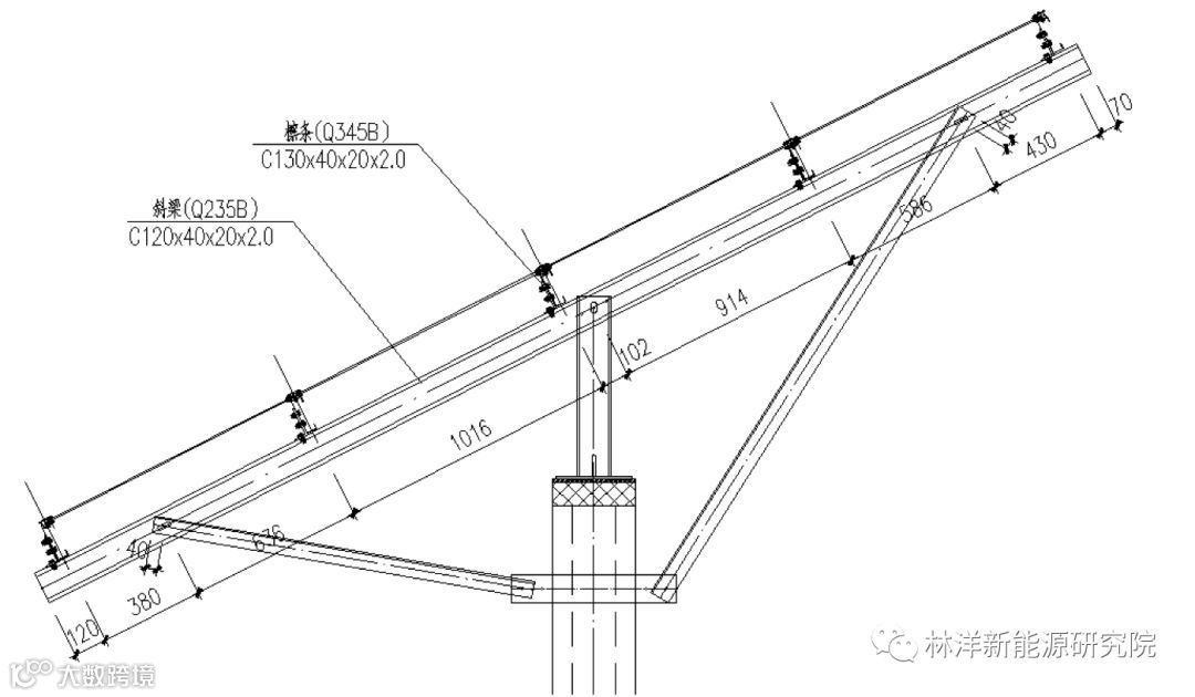
方案二:竖向双排
采用20台50KW华为逆变器,3520块双面组件B,竖向排布,见图8。因双面双玻组件自身无边框,故组件竖向布置时,为避免组件挠度过大,在已有横向檩条的基础上,需沿着组件长边多设置一层竖向檩条,即此形式支架需设置“双层檩条”,见图9。
同样以泗洪地区为例,结合当地的风压及雪压条件计算,该方案支架用钢量为52t/MW。

图8 方案2支架平面布置图

图9 方案2支架详图
四、1MW双面电站不同安装方案线缆用量和支架用钢量综合比较
汇总以上各项差异,将横向布置与竖向布置的光伏系统逆变器之前的线缆和支架材料用量和安装费对比如下:
表4 组件A横排/组件B竖排方案技术经济性对比表

从表4中可以看出,使用组件A(组件出线1m)横向四排1MW电站线缆和支架用钢量合计为49.217万元,使用组件B(组件出线0.3m)竖向双排1MW电站线缆和支架用钢量合计为55.584万元。竖向方案比横向方案居然多出了6.367万元成本,其主要原因是光伏电缆费用在整体系统造价中占比较小,支架用钢量费用在系统造价中占比较大。
结论:采用双面组件A(组件出线1m)横向方案支架用钢量更少,成本更低,更具经济性。建议使用双面组件设计电站时,采用横向排布方案。
内容来源:林洋新能源研究院




