Caulfield Village大型综合项目
由拥有70年开发经验的本土实力开发商所打造的CAULFIELD下一个10年。
继大获成功的Caulfield Heath之后,二区规划Caulfield Village Building D 本周强势登场。
预计投入10个亿打造Caulfield中心,打造完成后,现在Monash大学的连锁超市,餐馆,邮局,银行都会搬到这个10年的项目。同时,为了家庭居住考虑,还会修建幼儿园,康乐中心等。

墨尔本东南边传统富人区,学校资源精良,环境优美,投资自住两相宜,由拥有70年历史的澳洲著名顶级开发商Beck,南半球最大购物中心Chadstone购物中心的建造者Probuild以及墨尔本赛马协会强强联手,倾力打造。

二区规划的Caulfield Village第二棟D盛大开盘,少量户型海外人士可购买,先到先得。


项目特色
2017年,Monash Caulfield校区学生已经扩招至18000人,同时成立全澳洲最大的商业及法律学院。
原来的shopping centre将让位于这项发展,新的Shopping centre将在Caulfield Village的中心拔地而起,新的购物中心将不止囊获现在所有的项目,同时还将吸收更多的实力品牌加入。

配套与教育
步行2分钟有Tram 3和3a,直达City、墨尔本大学和墨尔本皇家理工大学
步行2分钟到Caulfield 火车站,15分钟到达city。
步行2分钟至公交站,7分钟到达南半球最大的Chadstone购物中心,15分钟到达莫纳什大学Clayton总校区
步行5分钟至莫纳什大学Caulfield校区,学校内部有公车往返于Caulfield和Clayton校区之间,方便学生出行
开车5分钟即到达Chadstone Shopping Centre南半球最大的购物娱乐休闲中心
开车约20分钟即达city
开车20分钟到达宜人的St Kilda和Brighton海滩
莫纳什大学 (300米)步行5分钟
Caulfield Grammar (3.9公里)驾车8分钟
Lauriston Girls’ College (3.8公里)驾车7分钟
Melbourne Grammar School (3.1公里)驾车6分钟
Scotch College(6.2公里)驾车12分钟
Wesley College – Elsternwick (4.8公里)驾车9分钟

十大不可错过的自住、投资理由
1、政策支持。由政府,莫纳什大学,赛马场联手澳洲老牌开发商打造的墨尔本东南区稀缺大型综合性居住社区,项目品质一流,紧跟时代步伐。
2、智能及贴心服务。每栋楼的大厅都有大厅经理,负责接受包裹等,大厅门口有大屏幕,显示每套公寓号码,如果那一套公寓有包裹或者朋友留下信息,都会在屏幕上显示,非常智能和贴心。
3、交通便利。1分钟内达到火车站、公交站、电车站。交通网通往墨尔本任何重要商业城区,15分钟到达CBD。
4、教育资源。澳洲八大名校之一,拥有最多海外生源的莫纳什大学,步行3分钟即可到达。周围还有40多所知名小学高中。
5、购物便利。除了小区内部购物中心,距离Caulfield农贸市场仅1分钟车程,南半球最大的购物中心Chadstone仅8分钟车程,生活极其便利。
6、低碳环保。多处绿茵环绕的休闲公园,Caulfield公园、跑马场自然保护区皆近在咫尺,环境首屈一指,6.5星级环保配套设施体现着该项目巨大的升值潜力。
7、社区商业。银行、超市、邮局、咖啡馆、酒吧、精品店将近在咫尺,坐电梯下楼即可到达。
8、巨大的升值潜力。过去12个月该地区房屋价格增幅12.4%, 房屋中价位为176万澳币,与此相对应的是,该区空置率为1.96%。低于澳洲空置率均值2.2%。
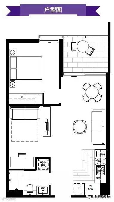
9、价格优势。45.2万澳币起,一房带一小书房,可变小两房。

内饰装修



最新D棟发售👇

公寓设施:健身房,电影院,酒窖,泳池,会议室,厨房,桑拿。




天津冠桥移民

天津冠桥海外

